Перепланировка | тема просьб и советов по конкретным ситуациям
Alisa_Bu
Если в нише только пеналы в потолок, можно оставить ступенькой. Если же там начало столешницы, то зашивать придется однозначно
Да, в нише только пеналыдо потолка, да и все кухня до потолка. Спасибо за ваши советы. Смотрю ваши советы по квартирам и они просто шикарны! Спасибо еще раз!
sc_creator
Всем привет. Есть один строящийся ЖК, в котором хочу купить квартиру для сдачи в аренду. В нем у всех квартир свободные планировки, не зависимо от площади. Ниже приведена планировка 1к-квартиры площадью 38.14 кв. м. Подскажите, как лучше ее разделить на кухню и комнату? Может кому-то не лень будет нарисовать...Или может в ней вообще поменять местами кухню и комнату?
Добрый день. Здесь квартира студия, поэтому можно поиграть перегородками из гипсокартона. Как вариант, поставить раздвижную систему, которая позволит по ситуации то разделять помещения, то объединять, например когда гости пришли. Не рекомендуем менять кухню с комнатой местами, так как для кухни необходимы выводы вентиляции и канализации. А перенесение канализации не всегда возможно из-за необходимых уклонов.

Alexxxa
Здравствуйте.
Можно получить вашу помощь, совет?) Какая на ваш взгляд будет в этой квартире самая лучшая перепланировка? хотелось бы отдельно спальню и в кухне куда-то диван поставить и гардеробную + чтоб в ней можно было хранить швабру, порошки и тд.
Буду рада любой помощи)
Я набросала более-менее универсальный вариант, включая ваши пожелания. Однако возможны вариации)
Приветствую!
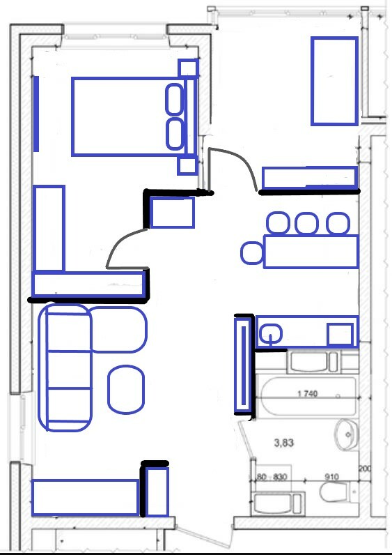
Квартира со "свободной" планировкой и газовым котлом, наличие которого очень ограничивает, т.к. по нормам его нельзя объединять с жилой зоной. В связи с чем ломаю голову над планировкой и буду благодарна за дельные советы/идеи и критику моего варианта.
От чего отталкивалась:
- В квартире будет проживать 2 человека.
- Спальня должна быть изолированная.
- Гостинная зона с диваном у окна.
- Рабочая зона (не в спальне).
- Гардеробная.
- Много зон хранения.
- Хотя бы частично хотелось бы объединить пространство кухни с зоной гостинной. Возвести часть стены, в проем поставить раздвижную перегородку. В идеале хотелось бы ничего не ставтиь между кухней и гостиной. Возможно кто-то знает, можно ли эту зону назвать кухней-столовой и оставить без перегородки?
Планировка от застройщика и мой вариант.

Dejavu
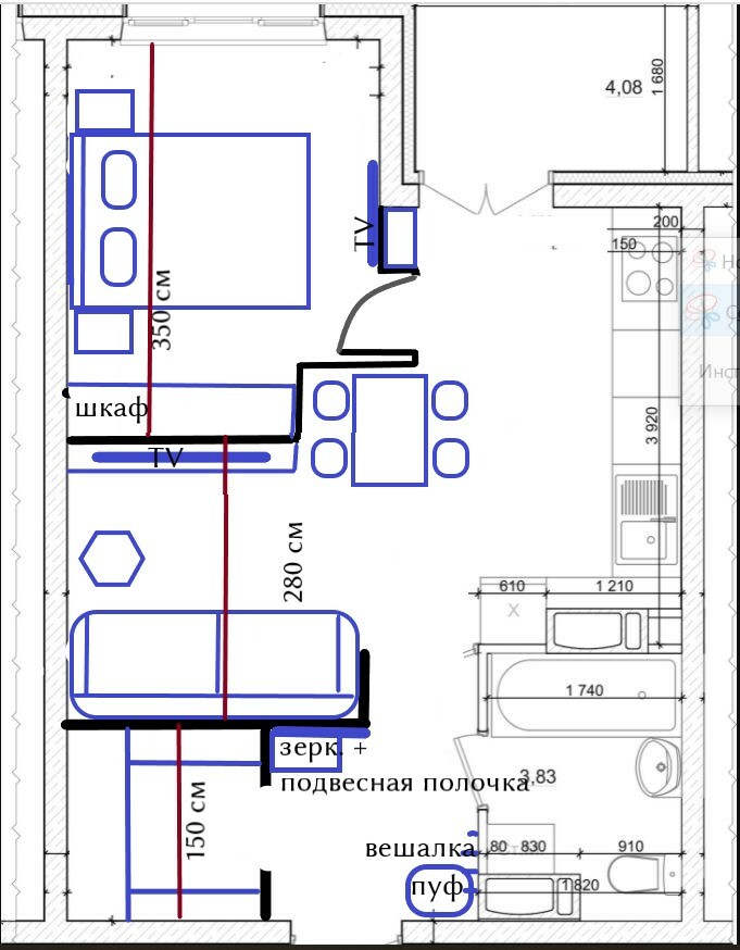
Привет! Мне например очень понравилась ваша задумка. Это просто супер! Единственно, я бы обратила внимание на сторону открывания дверей в санузел и спальню - их надо поменять на противоположную, так удобнее. Иначе дверное полотно, открытое в санузел, рискует кого-то ударить, кто идет по коридору в ванну, а дверное полотно в спальне, если его открыть, перекрывает проход между кроватью и шкафом.
Что бы улучшила я? Мне не совсем нравится, что рабочее кресло из-за угла дивана не может полноценно подъехать к правому краю стола (там надо протискиваться). Далее, я не совсем вижу смысл сужать зону гостиной только ради того, чтобы ровно поставить длинную тв-тумбу. И еще я бы переделала компоновку гардероба при спальне. А кухню предлагаю отделить от гостиной амбарной дверью, откатной к балкону, чтобы в открытом состоянии она никому не мешала. Можно сделать глухую, но я бы поставила стеклянную в тонкой металлической раме. А вот гардероб при спальне я бы прикрыла красивой шторой)
Я набросала свой вариант:
а) оставила ширину гостиной;
б) развернула угловой диван, освободив место для прохода из спальни в гостиную;
в) поменяла местами рабочую зону справа налево, чтобы был доступ ко всей рабочей поверхности;
г) выиграла место для стеллажа/бара справа за диваном.
Alisa_Bu
Я Вам очень благодарна. Дельные советы! Спасибо!

Здравствуйте!
Если сможете и нам помочь советом буду очень благодарна.
В квартире будет проживать 3 чел (2 взрослых и ребенок)
В идеале хотелось бы:
-отделить маленькую комнату для ребенка(будет кровать чердак, под ней возможна установка стола )
-2 х спальная кровать для взрослых(1,4-1,6м)
-зона с ТВ и диваном
-зона для приема пищи(может быть барная или столик)
Понимаю, что скорее всего это на грани фантастики, но всё же надежда умирает последней)))

Марина Гелядова
Здравствуйте!
Если сможете и нам помочь советом буду очень благодарна.
В квартире будет проживать 3 чел (2 взрослых и ребенок)
В идеале хотелось бы:
-отделить маленькую комнату для ребенка(будет кровать чердак, под ней возможна установка стола )
-2 х спальная кровать для взрослых(1,4-1,6м)
-зона с ТВ и диваном
-зона для приема пищи(может быть барная или столик)
Понимаю, что скорее всего это на грани фантастики, но всё же надежда умирает последней)))
Приветствую, буду рада помочь идеями. Вам повезло, что у вас 3 окна. Что необходимо сделать в вашем случае:
1. Полностью присоединить лоджию, поменять остекление на трех-камерное, решить вопрос с отоплением и кондиционированием, если сторона южная. В зоне лоджии спасет теплый пол и ребенку играть будет комфортно.
2. Отрезать от большой комнаты примерно 4 метра длины, начиная отсчет от окна - это будет взрослая спальня, а от кухни - 3 метра, начиная от остекления лоджии - это будет детская.
3. Размещением проходов и расстановкой мебели можно играться.
Я предлагаю всего лишь набросок с оптимальной, на мой взгляд, планировкой. Кухня как таковая получается маленькая, но между проходами можно установить отдельно стоящий большой холодильник, а в полуострове сделать системы хранения глубиной 40 см по всей его длине. С обратной стороны будет углубление для ног сидящих, а со стороны кухонного гарнитура - дополнительная рабочая поверхность. В гостиной встанет 2-х метровый шкаф, в спальне - примерно 3,5 м хранения, в детской - 1,5 м, в прихожей - небольшая вешалка с пуфом либо шкафчик. Дверь в детскую лучше поставить с матовым стеклом, чтобы дневной свет проникал на кухню.

Alisa_Bu
Приветствую, буду рада помочь идеями. Вам повезло, что у вас 3 окна. Что необходимо сделать в вашем случае:
1. Полностью присоединить лоджию, поменять остекление на трех-камерное, решить вопрос с отоплением и кондиционированием, если сторона южная. В зоне лоджии спасет теплый пол и ребенку играть будет комфортно.
2. Отрезать от большой комнаты примерно 4 метра длины, начиная отсчет от окна - это будет взрослая спальня, а от кухни - 3 метра, начиная от остекления лоджии - это будет детская.
3. Размещением проходов и расстановкой мебели можно играться.
Я предлагаю всего лишь набросок с оптимальной, на мой взгляд, планировкой. Кухня как таковая получается маленькая, но между проходами можно установить отдельно стоящий большой холодильник, а в полуострове сделать системы хранения глубиной 40 см по всей его длине. С обратной стороны будет углубление для ног сидящих, а со стороны кухонного гарнитура - дополнительная рабочая поверхность. В гостиной встанет 2-х метровый шкаф, в спальне - примерно 3,5 м хранения, в детской - 1,5 м, в прихожей - небольшая вешалка с пуфом либо шкафчик. Дверь в детскую лучше поставить с матовым стеклом, чтобы дневной свет проникал на кухню.
Очень понравился этот вариант
Не ожидала что это возможно.
Есть только один момент с лоджий там несущая стена.
Можно ли как-то это обыграть, чтоб не касаться стены?
Возможно переместить спальню взрослых, кровать туда в нишу или просто подвигать мебель детской?

Марина Гелядова
Очень понравился этот вариант
Не ожидала что это возможно.
Есть только один момент с лоджий там несущая стена.
Можно ли как-то это обыграть, чтоб не касаться стены?
Возможно переместить спальню взрослых, кровать туда в нишу или просто подвигать мебель детской?
Ага, несущая стена, значит... Просто по плану этого не видно. Значит этот вариант не подходит. Тогда пойдем другим путем: разделим большую комнату на 2 - спальню и детскую. Там в сумме длина продольной стены почти 8 метров (без 8 см), отдадим под детскую и спальню пополам, по 4 м. На зону лоджии вынесем обеденный стол, кухню сделаем буквой П для большей вместительности. Есть и минусы - маловато мест хранения, диванчик будет 2-х местный, зато столовая у окна и нормальные отдельные комнаты.

Alisa_Bu
Ага, несущая стена, значит... Просто по плану этого не видно. Значит этот вариант не подходит. Тогда пойдем другим путем: разделим большую комнату на 2 - спальню и детскую. Там в сумме длина продольной стены почти 8 метров (без 8 см), отдадим под детскую и спальню пополам, по 4 м. На зону лоджии вынесем обеденный стол, кухню сделаем буквой П для большей вместительности. Есть и минусы - маловато мест хранения, диванчик будет 2-х местный, зато столовая у окна и нормальные отдельные комнаты.
Спасибо вам огромнейшее!
Очень помогли!!!

Марина Гелядова
Спасибо вам огромнейшее!
Очень помогли!!!
Пожалуйста! Желаю свить счастливое и уютное семейное гнездышко!) Я переделала 1-й вариант, вернув детскую в зону кухни и лоджии. Для кухни отвела П-образную нишу, она получилась чисто рабочей, а обеденную зону и гостиную вынесла ближе ко входу. Детская получится разделенной на 2 части - спальную и игровую (туда я вместила даже шведскую стенку с турником), во взрослой спальне поместился полноценный гардероб. Я бы двери в обе комнаты оформила красивым остеклением, поскольку со входа видишь именно их. И еще, не ставила бы обеденные стулья с высокими спинками - сидящим на диване они загородят обзор экрана тв. Уверена, теперь вам есть над чем подумать!))

Подскажите пожалуйста, какая оптимальная расстановка мебели и перепланировка для данной квартиры. Буду очень благодарен.

Марина Гелядова
Спасибо вам огромнейшее!
Очень помогли!!!
Немного поигралась мебелью и кусочком перегородки во 2-м варианте. Большой диван разместила на лоджии, около него небольшой кофейный столик. Телевизор повесила на поворотный кронштейн, чтобы смотреть из кухни и с дивана. В спальне получилась небольшая ниша под стеллаж, рядом - тв на стене. Кстати, если надумаете присоединять лоджию, есть хорошая идея по ее обогреву: теплый пол завести на стены. Не будут "плакать" стекла, от стен и пола будет идти приятное тепло.

8Rus88
Подскажите пожалуйста, какая оптимальная расстановка мебели и перепланировка для данной квартиры. Буду очень благодарен.
А что в итоге хотите получить?

Alisa_Bu
А что в итоге хотите получить?
Хотелось бы угол для кровати и поставить где-то диван)

8Rus88
Хотелось бы угол для кровати и поставить где-то диван)
Сколько человек будет проживать? Есть ли дети?

Alisa_Bu
Сколько человек будет проживать? Есть ли дети?
2 человека, детей нет.
Алиса, просто в восторге от того что вы бескорыстно предлагаете такие классные планировки на форуме. Спасибо вам огромное!
Мы сейчас тоже в раздумьях. Семья: двое взрослых и дочка 6 лет. Есть квартира около 50 квадратных метров. Из минусов - только два окна. Что нам хочется: отдельная спальня с рабочим местом, детская и кухня-гостиная. Возле квартиры есть кладовка с отдельным входом (не помню точно метраж, метров 10, кажется), так что вопрос хранения велосипедов, санок и т.п. решен.
Нашу идею прикрепляю. Детскую и кухню-гостиную планируем разделить раздвижными прозрачными дверями (плотная штора со стороны детской). Возле окна в детской стол, переходящий в подоконник и места для хранения справа и слева от окна.
Во взрослой спальне на балконе рабочее место. В виде коричневого стола на балконе изображен тренажер :-)
Один санузел в квартире планируем переделать под кладовку-гардеробную.
P.S. Сожалению, что рисуем мы не очень, так что наш план так себе по "качеству и понятности".

8Rus88
2 человека, детей нет.
Помещение вытянутое и узкое, поэтому пришлось "поколдовать")). Предлагаю 3 идеи на выбор. Останутся вопросы - спрашивайте, разъясню. Первый вариант предполагает общее пространство, а спальная зона отгорожена двухсторонним стеллажом и шкафом, обращенным к спальне. Но задняя часть должна имитировать красивый фасад. Второй вариант - спальня в нише с дополнительным выходом к санузлу. Третий вариант - отдельная спальня, но боковую часть стены и дверь я бы сделала из матового стекла в тонкой темной раме из металла. Спать можно как лицом к окну, так и лицом от окна.

- ЖК "Захисник", ул. Бориспольская, 1916.107
- ЖК Wood Park 1,2 | Вуд Парк| Киев, ул. Радистов, 18, 2416.1039
- ЖК Poetica, 1-я коллекция | Поэтика | ENSO | ул. Дегтяревская, 25а15.103 099
- ЖК на пр. Отрадный 2, Киев | Житлоінвестбуд-УКБ13.1010 304
- ЖК "ObolonSKY", пр. Оболонский, 1 - МЖК "Оболонь"12.10552
- ЖК "Гранд Парк", Бровары, ул. Фельдмана, 112.10105
- ЖК Трояндовий | Бровари, вул. Фельдмана, вул. Спортивна12.10736
- Отзывы о застройщике MS12.104
- ЖК Урловский-1 | Киевгорстрой, bUdCapital | Киев, ул. Причальная, 1110.103 791
- ЖК Синергія Сіті | Ірпінь, вул. О. Кобилянської (Достоєвського), пров. Озерний08.10224
- Стоит ли сейчас покупать недвижимость?10.104 714
- Чи варто купити будинок в спокійному регіоні, в Вінниці?17.092
- Завышеные тарифы на отопление. Как обжаловать и куда писать?19.082
- Ипотека от Банков с лучшими условиями | Обсуждение кредитов под залог недвижимости13.08192
- Краудфандинг - типы группового инвестирования01.083
- Планирую аренду квартиры в районе Подола30.073
- Про агентство Атлант-А23.0722
- Допоможіть розібратись з податками08.053
- Дно рынка недвижимости и влияющие факторы31.0315 244
- Где найти качественные полотенца?04.092
- Орхидеи. Как ухаживать за орхидеями29.0818
- Выбор пылесоса. Отзывы о ваших пылесосах26.0866
- Отзывы об ортопедических матрацах. Матрасы для комфортного сна22.0891
- Болит спина07.0873
- Какую выбрать мебель на террасу?04.084
- Стоит ли покупать кофе-машину13.07154
- Декоративные элементы в интерьере. Советы и отзывы о их сочетании12.0716
- Декор окна без штор, варианты и советы12.0746
- ЖК Kandinsky Odessa Residence | Кандинский | Одесса, Французский бульвар, 63/6515.10182
- ЖК Дом у моря | Югінвест | Южный, ул. Иванова10.1017
- ЖК Sakura | Свалява, пров. Достоєвського, 404.105
- ЖК Імперіал Парк Авеню | Імперіал Буд | Чернівці, вул. Рівненська, 718.084
- ЖК Manhattan | Blago developer | Івано-Франківськ, вул. Романа Левицького, вул. Ленкавського04.0815
- ЖК Зелений двір | Спілка забудівників | Івано-Франківськ, вул. Тисменицька04.089
- Яка реальна ціна чорнових робіт в 2025 для будинку08.101
- Хто планує поїхати на будівельний форум у Львові цього вересня?01.093
- Тёплый пол, отзывы и советы28.08205
- Крыша потекла, что делать?25.0818
- Перепланировка | тема просьб и советов по конкретным ситуациям19.082 216
- Материал многоквартирного дома новостройки. Какой лучше?13.0812
- Климатическое оборудование норвежской ТМ Bergen07.082
- Как можно прочистить или улучшить вентиляцию в квартире?06.086
- Пол на кухне – ламинат или плитка?30.0720
- Как отвечать на How are You?04.102
- Что подарить мужчине?24.09351
- Мій сайт не з'являється в результатах пошуку20.093
- Домик для кота26.085
- Тренажер в доме. Какой выбрать24.0817
- Мебель под заказ | Объявления об изготовлении мебели18.0899
- Как уберечь холодильник от перепадов напряжения09.0810
- Пол, тёплый пол, паркет, ламинат, плитка. Продажа напольных покрытий26.0728
- Кто как развлекается в свободное время?19.071
