Коттеджный городок "Набережный", Софиевская Борщаговка, ул. Набережная, 1а
Ваше общее впечатление об Объекте и Компании:
Можно выбрать 1 вариант ответа. Можно менять ответы. Всего голосов: 2.
| 0/0% | ||
| 0/0% | ||
| 1/50% | ||
| 0/0% | ||
| 1/50% |
1
2Serzh 3D
S3
Постоянный пользователь
129
23 мая 2016
11 дек 2016 12:01
Отзывы о жилом комплексе



Коттеджный городок "Набережный"
Софиевская Борщаговка, ул. Набережная, 1а
В с. Софиевская Борщаговка, начал свое строительство новый жилой комплекс "Набережный", по ул. Набережная 1а, с выходом на озеро, рядом еще одно озеро, респектабельные соседи и красивый вид на Киев. Комплекс находиться всего в 1 км. от окружной дороги, будет построено 32 квартиры (таунхауса), у некоторых будет свой личный гараж и задний дворик, у некоторых будет личное паркоместо. Территория комплекса будет закрытого типа, рядом детская площадка, в 5 минутной доступности школа, садик, магазины, остановки.
Квартиры по 2, 3, 4 комнаты, от 80 м.кв. и до 130 м.кв., 2 этажа + мансардный.
Коттеджный городок "Набережный"
Софиевская Борщаговка, ул. Набережная, 1а
В с. Софиевская Борщаговка, начал свое строительство новый жилой комплекс "Набережный", по ул. Набережная 1а, с выходом на озеро, рядом еще одно озеро, респектабельные соседи и красивый вид на Киев. Комплекс находиться всего в 1 км. от окружной дороги, будет построено 32 квартиры (таунхауса), у некоторых будет свой личный гараж и задний дворик, у некоторых будет личное паркоместо. Территория комплекса будет закрытого типа, рядом детская площадка, в 5 минутной доступности школа, садик, магазины, остановки.
Квартиры по 2, 3, 4 комнаты, от 80 м.кв. и до 130 м.кв., 2 этажа + мансардный.
Serzh 3D
S3
Постоянный пользователь
129
23 мая 2016
11 дек 2016 12:03
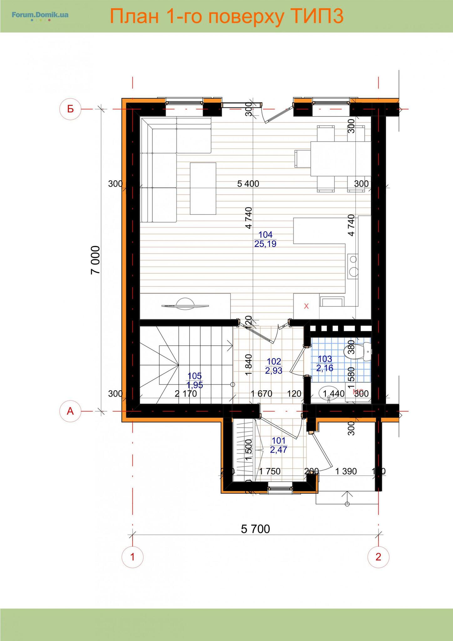
Планировки
Serzh 3D
S3
Постоянный пользователь
129
23 мая 2016
21 дек 2016 14:52
Изменение в генплане + новая планировка дуплекса
Serzh 3D
S3
Постоянный пользователь
129
23 мая 2016
21 дек 2016 14:53
Цены от 403 у.е. за 1 м.кв.
Есть таунхаусы от 370 у.е. за 1 м.кв.
Есть таунхаусы от 370 у.е. за 1 м.кв.
Serzh 3D
S3
Постоянный пользователь
129
23 мая 2016
27 янв 2017 13:59
Мы - Бюро малоэтажной застройки, рады презентовать полный концепт КГ "Набережный". Скоро будут добавлены новые визуализации с вечерним видом, с подсветкой всего комплекса, добавленными парковочными местами др., осталось несколько дней, ждите ))
Serzh 3D
S3
Постоянный пользователь
129
23 мая 2016
27 янв 2017 14:04
Наши архитекторы творят чудеса )
Serzh 3D
S3
Постоянный пользователь
129
23 мая 2016
30 янв 2017 11:26
Новые визуализации с изменениями, а именно добавили освещение, добавили парковочные мета которых катастрофически нигде не хватает, они крытые, добавили шлагбаумы при въезде, добавили окна в дуплексе, несколько новых ракурсов и др.


elgatito
e
Ветеран
1 470
07 октября 2013
31 янв 2017 06:11
На 32 таунхауса 8 парковочных мест?
Serzh 3D
S3
Постоянный пользователь
129
23 мая 2016
31 янв 2017 07:50
Цитата "elgatito":На 32 таунхауса 8 парковочных мест?
Добрый день! Пожалуйста внимательно присмотритесь к проекту, у каждого есть парковочное место или гараж, 8 - это дополнительные места.
Мерил Стрип
МС
Гость
2
02 февраля 2017
02 фев 2017 22:09
Посмотрела рекламу Бюро малоэтажной застройки в с. Софиевская Борщаговка и поехала посмотрела на месте. Что я увидела.
1. Озеро под Киевом может быть когда-то и было озером, но сейчас это не озеро, а уличные и канализационные стоки с "милым" дополнением: комары весной,летом и осенью.
2. На весьма ограниченном клочке земли впритык один к одному лепятся конурки (другое слово трудно подобрать). Похоже, что на одной сотке земли будет стоять и ваш домик, и машина, и ребенок будет играть на 2 кв.м земли, и соседи будут заглядывать со всех сторон.
Возникают вопросы: А где будет собираться мусор при такой скученности? Кто его будет вывозить?
3. Сама улица Набережная на этом участке очень узкая. Две машины сейчас с трудом на ней разъезжаются. А что будет, когда здесь появятся 30-40 машин новых "счастливых" владельцев этих конурок? Будут пробки как в центре Киева?
4. А как дела обстоят с водой и канализацией на этой улице? Разговаривала с жителями этой улицы, говорят, что вся канализация на улице это всего лишь узкая труба диаметром 5-6 см. И как эта труба "потянет" все. что мы сливаем в унитаз?
С водой тоже не все гладко: бывают перебои на сутки и более. Хотя, конечно, можно воду ведрами носить с т.н. "озера" чтобы смыть в унитазе.
5. Электричество. Зимой в холода напряжение очень слабое, газовые котлы не работают при таком. Кроме того, газовое отопление очень дорогое. В частных домах сейчас топят чем-угодно. Запах (точнее вонь дыма) я оценила сама, когда общалась с жителями. Думаю, что форточку, чтобы проветрить комнату, вы не откроете.
А какая красивая картинка на рекламе этого БМЗ! Прямо какой-то рай на земле.
1. Озеро под Киевом может быть когда-то и было озером, но сейчас это не озеро, а уличные и канализационные стоки с "милым" дополнением: комары весной,летом и осенью.
2. На весьма ограниченном клочке земли впритык один к одному лепятся конурки (другое слово трудно подобрать). Похоже, что на одной сотке земли будет стоять и ваш домик, и машина, и ребенок будет играть на 2 кв.м земли, и соседи будут заглядывать со всех сторон.
Возникают вопросы: А где будет собираться мусор при такой скученности? Кто его будет вывозить?
3. Сама улица Набережная на этом участке очень узкая. Две машины сейчас с трудом на ней разъезжаются. А что будет, когда здесь появятся 30-40 машин новых "счастливых" владельцев этих конурок? Будут пробки как в центре Киева?
4. А как дела обстоят с водой и канализацией на этой улице? Разговаривала с жителями этой улицы, говорят, что вся канализация на улице это всего лишь узкая труба диаметром 5-6 см. И как эта труба "потянет" все. что мы сливаем в унитаз?
С водой тоже не все гладко: бывают перебои на сутки и более. Хотя, конечно, можно воду ведрами носить с т.н. "озера" чтобы смыть в унитазе.
5. Электричество. Зимой в холода напряжение очень слабое, газовые котлы не работают при таком. Кроме того, газовое отопление очень дорогое. В частных домах сейчас топят чем-угодно. Запах (точнее вонь дыма) я оценила сама, когда общалась с жителями. Думаю, что форточку, чтобы проветрить комнату, вы не откроете.
А какая красивая картинка на рекламе этого БМЗ! Прямо какой-то рай на земле.
Serzh 3D
S3
Постоянный пользователь
129
23 мая 2016
03 фев 2017 10:28
1. Если бы вы действительно приехали, то увидели бы только лед и каток по которым точно не смогли бы сделать такие выводы... Как выглядит озеро в летнее время смотрите фотографии.
2. У нас сейчас строятся 1-я и 2-я очереди, между ними расстояние примерно 30-40 м. Как вы на сей раз смогли сделать очередные выводы, не понятно.
3. На улице можно разъехаться если вы конечно умеете водить машину, и этот узкий участок занимает всего 50 м. примерно, дальше дорога выходит на ул. Соборная. Комплекс из 32 таунхаусов вообще априори не может создавать такого движения транспорта как вы описали.
4. Удивляюсь как вообщем можно писать такой бред. Там хорошая полноценная канализация.
5. Даже смешно читать такое... )))
Из всего перечисленного вами, описанного в негативном варианте для застройщика, могу сделать выводы:
1. Вы не были на объекте, соответственно трубу вы не видели, и все остальное тоже.
2. Вы даже не общались с нашими менеджерами, потому, как бы о таком клиенте, я бы уже знал сразу. Большинство кто приезжал, остаются довольными, люди уже бронируют на перед те таунхаусы, которые мы пока не продаем. Это говорит, что наши картинки соответствуют нашим построенным объектам.
3. Я думаю, вы негативно настроенный конкурент или оплаченный специалист писать разное г... Заметно, что вы специально зарегистрировались для того, что бы написать один единственный пост.
Хотите высказать свое недовольство, можете позвонить мне лично и сказать, что вас не устраивает, послушаю вас, пообщаемся )
Ищенко Сергей ( руководитель отдела продаж)
2. У нас сейчас строятся 1-я и 2-я очереди, между ними расстояние примерно 30-40 м. Как вы на сей раз смогли сделать очередные выводы, не понятно.
3. На улице можно разъехаться если вы конечно умеете водить машину, и этот узкий участок занимает всего 50 м. примерно, дальше дорога выходит на ул. Соборная. Комплекс из 32 таунхаусов вообще априори не может создавать такого движения транспорта как вы описали.
4. Удивляюсь как вообщем можно писать такой бред. Там хорошая полноценная канализация.
5. Даже смешно читать такое... )))
Из всего перечисленного вами, описанного в негативном варианте для застройщика, могу сделать выводы:
1. Вы не были на объекте, соответственно трубу вы не видели, и все остальное тоже.
2. Вы даже не общались с нашими менеджерами, потому, как бы о таком клиенте, я бы уже знал сразу. Большинство кто приезжал, остаются довольными, люди уже бронируют на перед те таунхаусы, которые мы пока не продаем. Это говорит, что наши картинки соответствуют нашим построенным объектам.
3. Я думаю, вы негативно настроенный конкурент или оплаченный специалист писать разное г... Заметно, что вы специально зарегистрировались для того, что бы написать один единственный пост.
Хотите высказать свое недовольство, можете позвонить мне лично и сказать, что вас не устраивает, послушаю вас, пообщаемся )
Ищенко Сергей ( руководитель отдела продаж)
Serzh 3D
S3
Постоянный пользователь
129
23 мая 2016
03 фев 2017 10:37
Добавили новую визуализацию дуплекса.
В продажу поступит только одна половина, потому звоните нашим агентам и бронируйте.
В продажу поступит только одна половина, потому звоните нашим агентам и бронируйте.
Serzh 3D
S3
Постоянный пользователь
129
23 мая 2016
04 фев 2017 19:03
Цитата "Sofi_Schmidt":Привет всем. Мы тоже смотрим за этим комплексом, хотим там покупать, вообще рассматриваем разные варианты, но этот самый подходящий, если дадут хорошие условия))
С 06.02.2017 г. даем без % рассрочку на 18 мес., без справки о доходах, без поручителей, без залогового имущества и без скрытых платежей, также даем рассрочку на 24 мес. с удорожанием всего лишь 2% на остаток.
Так же у нас заработала Программа замены жилья, узнавайте подробности!
Мерил Стрип
МС
Гость
2
02 февраля 2017
05 фев 2017 11:09
Сергей и прочие!
Вынуждена продублировать свой комментарий, поскольку не вижу его.
Только весьма назойливая реклама вашего БМЗ на всех сайтах заставила меня вновь взяться за "перо".
1. В вашем т.н. "озере" ни купаться, ни ловить рыбу нельзя, потому что вода в нем загрязнена уличными и канализационными стоками. Это сказал житель ул. Набережная, который живет здесь уже почти 30 лет. Я ему верю больше, чем вам.
2. На торце ваших 1-й и 2-й очереди висят два рекламных постера, на которых отлично видно, что будет дальше на этом в общем-то крошечном участке, как для такого строительства. Я уже молчу о том, что буквально впритык к вашим конуркам стоят строения владельцев частных домов, а не зеленые лужайки и насаждения, как это выглядит на ваших картинках.
3.Ширина дороги там на 1,5 машины. Чтобы разъехаться машины должны просто прижиматься к обочине дороги. А если кто-то оставит машину или три на дороге, чтобы "полюбоваться" пейзажами т.н. озера или посмотреть ваши конурки, то улица автоматически превращается в дорогу с односторонним движением. И это не 50 метров как пишете вы.
Вынуждена продублировать свой комментарий, поскольку не вижу его.
Только весьма назойливая реклама вашего БМЗ на всех сайтах заставила меня вновь взяться за "перо".
1. В вашем т.н. "озере" ни купаться, ни ловить рыбу нельзя, потому что вода в нем загрязнена уличными и канализационными стоками. Это сказал житель ул. Набережная, который живет здесь уже почти 30 лет. Я ему верю больше, чем вам.
2. На торце ваших 1-й и 2-й очереди висят два рекламных постера, на которых отлично видно, что будет дальше на этом в общем-то крошечном участке, как для такого строительства. Я уже молчу о том, что буквально впритык к вашим конуркам стоят строения владельцев частных домов, а не зеленые лужайки и насаждения, как это выглядит на ваших картинках.
3.Ширина дороги там на 1,5 машины. Чтобы разъехаться машины должны просто прижиматься к обочине дороги. А если кто-то оставит машину или три на дороге, чтобы "полюбоваться" пейзажами т.н. озера или посмотреть ваши конурки, то улица автоматически превращается в дорогу с односторонним движением. И это не 50 метров как пишете вы.
Serzh 3D
S3
Постоянный пользователь
129
23 мая 2016
05 фев 2017 15:12
Просто не понравилось? А все остальные понравились? Я не верю. А ведь если взвешенно сопоставить + и - с другими таунхаусами большинство из которых не может похвастаться ни таким удачным расположением, закрытой территорией, то скажу, что наш комплекс один из лучших и с очень хорошим и удачным расположением.
Вы можете думать, что хотите, хоть 1000 раз мы вам можем не нравится, у меня всегда будет что ответить на такую бездарную дискриминацию КГ "Набережного" и БМЗ в целом.
А вообще хочу сказать вам спасибо за дискуссию )) Спасибо, что даете возможность написать здесь больше аргументов, это будут видеть все, и чем больше мы будем об этом писать, тем больше людей о нас узнают. Спасибо. )
Вы можете думать, что хотите, хоть 1000 раз мы вам можем не нравится, у меня всегда будет что ответить на такую бездарную дискриминацию КГ "Набережного" и БМЗ в целом.
А вообще хочу сказать вам спасибо за дискуссию )) Спасибо, что даете возможность написать здесь больше аргументов, это будут видеть все, и чем больше мы будем об этом писать, тем больше людей о нас узнают. Спасибо. )
elgatito
e
Ветеран
1 470
07 октября 2013
06 фев 2017 06:38
Цитата "Serzh 3D":у меня всегда будет что ответить на такую бездарную дискриминацию КГ "Набережного" и БМЗ в целом
Сергей, чем чаще вы будете переходить на личности и хамить тем, чьё мнение вам не нравится - тем больше шанс, что администрация форума лишит вас возможности это делать.
Serzh 3D
S3
Постоянный пользователь
129
23 мая 2016
06 фев 2017 09:02
Цитата "elgatito":
Сергей, чем чаще вы будете переходить на личности и хамить тем, чьё мнение вам не нравится - тем больше шанс, что администрация форума лишит вас возможности это делать.
Вы ничего не перепутали по поводу хамства? Высказывания некой Мерил Стрип -"конурки" "Похоже, что на одной сотке земли" "труба диаметром 5-6 см", "уличные и канализационные стоки" и т.д. - это не переход на личности? А я вам скажу - это и есть прямые оскорбления которые не соответствуют действительности. Если вы мне сделали замечание, то постарайтесь справедливо их высказать в обе стороны.
elgatito
e
Ветеран
1 470
07 октября 2013
07 фев 2017 07:57
Цитата "Serzh 3D":
Вы ничего не перепутали по поводу хамства? Высказывания некой Мерил Стрип -"конурки" "Похоже, что на одной сотке земли" "труба диаметром 5-6 см", "уличные и канализационные стоки" и т.д. - это не переход на личности? А я вам скажу - это и есть прямые оскорбления которые не соответствуют действительности. Если вы мне сделали замечание, то постарайтесь справедливо их высказать в обе стороны.
Сергей, я вас прекрасно понимаю, что вам "за державу обидно" и всё такое. Но человек пишет о стройке, а вы в ответ пишете о человеке. Это и есть переход на личности. А попытка оскорбить - это и есть хамство.
Цитата:
На улице можно разъехаться если вы конечно умеете водить машину
Вы даже не общались с нашими менеджерами, потому, как бы о таком клиенте, я бы уже знал сразу.
Я думаю, вы негативно настроенный конкурент или оплаченный специалист писать разное г...
Недовольные клиенты будут всегда, это нормально.
Serzh 3D
S3
Постоянный пользователь
129
23 мая 2016
07 фев 2017 08:40
Цитата "elgatito":
Сергей, я вас прекрасно понимаю, что вам "за державу обидно" и всё такое. Но человек пишет о стройке, а вы в ответ пишете о человеке. Это и есть переход на личности. А попытка оскорбить - это и есть хамство.
Сколько людей столько и мнений... Если вы про то ужасное слово которое я написал, то он было направленно не в сторону личности, а в сторону высказанных слов, не правдивого, дискриминирующего текста...
Дарья 83
Д8
Гость
2
09 февраля 2017
09 фев 2017 13:29
Підскажіть будь-ласка, хто є забудовником даного ЖК?
Авторський канал ріелтора в Іспанії
Знайомтесь з Бенідормом, нерухомістю та стилем життя. Новобудови регіону, аналітика, інвестиції
Подробнее
1
2
- ЖК Паркове місто | KAN Development, UDP | Київ, вул. Вишгородська, 4514.11510
- ЖК Utlandia-2,3 | Tomin Family | Ирпень, ул. Украинская, 1-а,б13.1196
- ЖК Silver House | Спецжитлофонд | Киев, пр. Голосеевский, 7413.112 272
- ЖК Star City | Стар Сити | bUdCapital, Київміськбуд | Киев, ул. Каунасcкая, 2712.11460
- ЖК Sanville Park | Санвиль Групп | Святопетровское, ул. Богдана Хмельницкого, 25а12.1143
- ЖК Smart Residence | Святопетрівське, бул. Лесі Українки12.116
- ЖК Family and Friends | 2 очередь | GEOS | Киев, ул. Новополевая, 212.11533
- ЖК Kvartal Soborna | Kvartal Development | Ірпінь вул. Соборна, 31-3512.111
- ЖК Абрикосовий | Київміськбуд | Київ, вул. Абрикосова, вул. Жулянська11.112 046
- ЖК Отрада | Київміськбуд, bUdCapital | Київ, просп. Відрадний, 93/211.112 751
- Стоит ли сейчас покупать недвижимость?14.114 751
- Дно рынка недвижимости и влияющие факторы14.1115 262
- Різонність ціни за оренду квартири (12 тисяч гривень)13.111
- Додаткові розрахунки між орендодавцями та орендарями06.1127
- Чи варто купити будинок в спокійному регіоні, в Вінниці?17.092
- Завышеные тарифы на отопление. Как обжаловать и куда писать?19.082
- Ипотека от Банков с лучшими условиями | Обсуждение кредитов под залог недвижимости13.08192
- Краудфандинг - типы группового инвестирования01.083
- Планирую аренду квартиры в районе Подола30.073
- Кухонные столешницы. Отзывы о практичных и неубиваемых вариантах13.11111
- Отзывы о кондиционерах. Какой кондиционер лучше08.11278
- Где найти качественные полотенца?04.092
- Орхидеи. Как ухаживать за орхидеями29.0818
- Выбор пылесоса. Отзывы о ваших пылесосах26.0866
- Отзывы об ортопедических матрацах. Матрасы для комфортного сна22.0891
- Болит спина07.0873
- Какую выбрать мебель на террасу?04.084
- Стоит ли покупать кофе-машину13.07154
- ЖК ARTVILLE | ZEZMAN | Одеса, Овідіопольська дорога11.1128
- Харьков, Проект "Consol Green City" - "Консоль"11.113
- ЖК Стандарт | Стандарт Буд | Полтава, вул. Великотирнівська, 9а06.116
- ЖК Kandinsky Odessa Residence | Кандинский | Одесса, Французский бульвар, 63/6515.10182
- ЖК Дом у моря | Югінвест | Южный, ул. Иванова10.1017
- ЖК Sakura | Свалява, пров. Достоєвського, 404.105
- Пол на кухне – ламинат или плитка?13.1121
- Пластиковые окна, какие лучше - поделитесь отзывами09.11241
- Кварц виниловая плитка LG Decotile или Berry Alloc29.106
- Напольные покрытия - чтобы было тепло, красиво и недорого29.1018
- Яка реальна ціна чорнових робіт в 2025 для будинку08.101
- Хто планує поїхати на будівельний форум у Львові цього вересня?01.093
- Тёплый пол, отзывы и советы28.08205
- Крыша потекла, что делать?25.0818
- Перепланировка | тема просьб и советов по конкретным ситуациям19.082 216
- Продам фонарик шокер ОСА 928 Power plus04.111
- Пошук обладнання для магазину21.101
- Как отвечать на How are You?04.102
- Что подарить мужчине?24.09351
- Мій сайт не з'являється в результатах пошуку20.093
- Домик для кота26.085
- Тренажер в доме. Какой выбрать24.0817
- Мебель под заказ | Объявления об изготовлении мебели18.0899
- Как уберечь холодильник от перепадов напряжения09.0810
Авторський канал ріелтора в Іспанії
Знайомтесь з Бенідормом, нерухомістю та стилем життя. Новобудови регіону, аналітика, інвестиції
Подробнее