Перепланування | прохання та поради щодо конкретних ситуацій
Alisa_Bu
Чому ні? Цікавий варіант теж. Єдине що - спальня буде в ніші, без вікна. Тому або скляні розсувні перегородки, або просто красива штора. І ще - щоб розмістити обідню зону, доведеться робити кутову кухню. Зате зі всіх куточків буде видно тв-зону, навіть із ліжка.
Ще таке питання,підскажіть будь ласка скільки метрів залишаємо під спальню? Вхід в гардероб з спальні краще робити? І який вхідний пройом робим для входу в кухню?

Vika_bez
Ще таке питання,підскажіть будь ласка скільки метрів залишаємо під спальню? Вхід в гардероб з спальні краще робити? І який вхідний пройом робим для входу в кухню?
1. Гадаю, трьох метрів буде достатньо.
2. При вході поміститься шафа 1,5 м, а в спальні буде своя гардеробна.
3. Пройом залишиться завширшки як від забудовника.
Alisa_Bu
1. Гадаю, трьох метрів буде достатньо.
2. При вході поміститься шафа 1,5 м, а в спальні буде своя гардеробна.
3. Пройом залишиться завширшки як від забудовника.
Дуже Вам дякую за поради!!))
Добрий день, підкажіть будь ласка що ви думаєте про такий дизайн (самі придумали), планування квартири Вудлайн 49,7 (ви вже таке планування коментували). Я думаю знести стіну щоб зробити кухню коридор; з‘єднати санвузол та підвинути стіну спальні щоб вмістити систему зберігання одягу з дверцятами в спальні (це не окрема шафа). Для верхнього одягу приб’єм вішалки в коридорі на стіні, що межує з санвузлом. Також думали зробити застінок між кухнею і другою кімнатою, щоб зробити або широкий прохід (без дверей), або якісь прозорі розсувні двері, щоб вдень світло було на кухні. Ми молода пара, яка працює з дому дуже часто і тому тут є 2 робочі місця. Для зберігання речей є також кладова на 2 метри (в неї окремий вхід з сходовоі клітини). Можливо ви бачите недоліки цього планування ? Підкажіть нам.

Daria1994
Добрий день, підкажіть будь ласка що ви думаєте про такий дизайн (самі придумали), планування квартири Вудлайн 49,7 (ви вже таке планування коментували). Я думаю знести стіну щоб зробити кухню коридор; з‘єднати санвузол та підвинути стіну спальні щоб вмістити систему зберігання одягу з дверцятами в спальні (це не окрема шафа). Для верхнього одягу приб’єм вішалки в коридорі на стіні, що межує з санвузлом. Також думали зробити застінок між кухнею і другою кімнатою, щоб зробити або широкий прохід (без дверей), або якісь прозорі розсувні двері, щоб вдень світло було на кухні. Ми молода пара, яка працює з дому дуже часто і тому тут є 2 робочі місця. Для зберігання речей є також кладова на 2 метри (в неї окремий вхід з сходовоі клітини). Можливо ви бачите недоліки цього планування ? Підкажіть нам.
Вітаю! Гарний варіант - це той, що подобається саме вам!)) Що мене трохи бентежить? Обідати поруч з дверима в санвузол якось ніяково. Входити і впиратись у обідній стіл теж не зовсім зручно. Я пропоную трошки змінити розташування меблів, тоді
а) буде повноцінний передпокій, в якому знайдеться місце під вішалку, поличку для взуття, шафу під побутові речі,
б) в обідній зоні поміститься вітрина-бар,
в) тв-зона відкриється взору зі всіх куточків столової-вітальні,
г) вхід до туалета не буде видно ані з дивану, ані зі столу.
Ще я перекроїла санвузол, може вам буде так зручніше?
Alisa_Bu
Вітаю! Гарний варіант - це той, що подобається саме вам!)) Що мене трохи бентежить? Обідати поруч з дверима в санвузол якось ніяково. Входити і впиратись у обідній стіл теж не зовсім зручно. Я пропоную трошки змінити розташування меблів, тоді
а) буде повноцінний передпокій, в якому знайдеться місце під вішалку, поличку для взуття, шафу під побутові речі,
б) в обідній зоні поміститься вітрина-бар,
в) тв-зона відкриється взору зі всіх куточків столової-вітальні,
г) вхід до туалета не буде видно ані з дивану, ані зі столу.
Ще я перекроїла санвузол, може вам буде так зручніше?
Аліса, дякую за слушні поради. Тепер є над чим подумати. Дійсно, про двері туалету я навіть не подумала. Є деякі нюанси щодо вентканалу в санвузлі, на який нічого не можна вішати (тільки плитку наклеіти) тому таке розміщення душу було вимушеним. Але можливо і розгляну цей варіант.

Daria1994
Аліса, дякую за слушні поради. Тепер є над чим подумати. Дійсно, про двері туалету я навіть не подумала. Є деякі нюанси щодо вентканалу в санвузлі, на який нічого не можна вішати (тільки плитку наклеіти) тому таке розміщення душу було вимушеним. Але можливо і розгляну цей варіант.
Може я не так щось зрозуміла, але я до вентканалу приставила тумбу з умивальником. Вона стоятиме на підлозі, типу комода, а зверху раковина із змішувачем. Нічого до стіни прибивати не треба. А душова вже за вентканалом.
Alisa_Bu
Привіт! Накидала швидкоруч 3 варіанти. 1 - відкусити від вітальні 3 метри на спальню, все інше залишити під вітальню. 2 - зробити спальню в ніші. 3 - перенести зону кухні, залишивши мокрі точки в зоні кухні та передпокою. Кухня таким чином вийде прохідною, з одного боку будуть мийка, плита, посудомийка на 45 см та верхні шафи з витяжкою. З протилежного боку - пенали до стелі з вбудованою технікою. холодильником та місцями зберігання. Спальня опиниться на місці кухні. Якщо будуть питання - звертайтесь.
Останній варіант класний, а чи можливо так кухню виносити по кону квартири, не буде потім проблем в БТІ?

Cherednich
Останній варіант класний, а чи можливо так кухню виносити по кону квартири, не буде потім проблем в БТІ?
Проблем не має бути, бо мокрі точки на потрібному місці, тобто в зоні, яку забудовник обозначив як кухню. З 19-го року можна облаштовувати кухню-нішу та приєднувати її до жилої кімнати без дозволів. І взагалі можна багато чого, аби не переносити мокрі точки та не чіпати несучі конструкції і не влізати в загальні комунікації. Єдине що - не можна кухню зробити жилою кімнатою. Тому варто її на плані для БТІ обозначити як кабінет або гардеробну кімнату. Вони ж не дивляться, які там у вас стоять меблі - це лише план стін та перегородок.
Друзі всім привіт, підкажіть будь ласка з переплануванням . Як на вашу думку, чи можна перепланувати ось таку квартиру(65 кв.м) в 2 окремих невеликих спальні + кухня вітальня ( + невевликй гардероб в ідеалі, проте не обов'язково) . Є 2 однакових планування 56. та 65 кв від забудовника , проте з'явилась ідея що з 65 кв. можна зрибити 2 окремих-спальні + кухня вітальня і ця думка мене не покидає, чи не паритись , обирати 56. кв , об'єднати кухню з 1 кімнатою у велику кухню вітальню + 1 спальня (56 кв) . Жити убду з дружиною + в переспективі плануємо дитину та кота,але вже після війни)))Дякую за витрачений час )))
По моему, 65 всегда лучше чем 56.
Смотрите в перспективу. Можно например гардеробную сделать или кабинет.

Дмитро Зінь
Друзі всім привіт, підкажіть будь ласка з переплануванням . Як на вашу думку, чи можна перепланувати ось таку квартиру(65 кв.м) в 2 окремих невеликих спальні + кухня вітальня ( + невевликй гардероб в ідеалі, проте не обов'язково) . Є 2 однакових планування 56. та 65 кв від забудовника , проте з'явилась ідея що з 65 кв. можна зрибити 2 окремих-спальні + кухня вітальня і ця думка мене не покидає, чи не паритись , обирати 56. кв , об'єднати кухню з 1 кімнатою у велику кухню вітальню + 1 спальня (56 кв) . Жити убду з дружиною + в переспективі плануємо дитину та кота,але вже після війни)))
Дякую за витрачений час )))
Привіт! Звісно, 65 м краще, бо родите дитинку або дві. Буде де їм жити. Я тут дещо змінила - зробила один великий санвузол, а інший перетворила на гардеробну для верхнього одягу та взуття. Там ще є місце під побутовий інвентар накшталт швабри, щітки, віника, пилососа та іншого.
Для повноцінної кухні-вітальні площа замала, але все необхідне наче вмістилось. Якщо ж приєднати лоджію, вийде класний простір. Передпокій задекоруйте дзеркалами, буде зручно та красиво
Alisa_Bu
Привіт! Звісно, 65 м краще, бо родите дитинку або дві. Буде де їм жити. Я тут дещо змінила - зробила один великий санвузол, а інший перетворила на гардеробну для верхнього одягу та взуття. Там ще є місце під побутовий інвентар накшталт швабри, щітки, віника, пилососа та іншого.
Для повноцінної кухні-вітальні площа замала, але все необхідне наче вмістилось. Якщо ж приєднати лоджію, вийде класний простір. Передпокій задекоруйте дзеркалами, буде зручно та красиво
kitchen-living room

Дмитро Зінь
Alisa_Bu, дуже дякую за відповідь та ідею, так і будемо робити , все ж атки зупинились нра 65.квв.м. , у вас дуже гарно з уявою в плануваннях ))) Чи немає у вас ідей з приводу планування у випадку об'єднання в одне приміщення Кухні+вітальні + спальні, я щось пробую малювати, але ,якщоч есно стає воно не дуже , не розумію чи потрібно так багато простору
Дякую. Ідей безліч!)) Але! Чи уявляєте ви сценарій життя з дитиною? Спальня повинна бути окремою, і це має бути віддалена кімната. Дитяча теж повинна бути окремою. Але загальний простір краще планувати зручним, щоб кожному знайшлось там місце та заняття.
Можна зробити, наприклад, ось так - від гепотетичної вітальні відкусити 3 метри на дитячу, а на площі, що залишилась, зробити затишну обідню зону з окремою шафкою накшталт бару. В нижній базі облаштувати висувні шухляди під ложки, веделки та інше для серверування.
Кухня виходить прямою та прикритою від сторонніх очей. Передпокій вмістить багато систем зберігання - там оселиться все ваше взуття та верхній одяг, ще й для госпблоку знайдеться шафа.
У вітальні розміститься диван довжиною 240 - 250 см, навпроти - тв зона, посеред - кавовий столик.
Двері в дитячу краще робити розсувними, або зовнішніми, або прихованого монтажу, бо полотно заважатиме.
Успіхів у ремонті та побудові затишного простору. Але насамперед Перемоги!

Дмитро Зінь
Alisa_Bu, дуже дякую за відповідь та ідею, так і будемо робити , все ж атки зупинились нра 65.квв.м. , у вас дуже гарно з уявою в плануваннях ))) Чи немає у вас ідей з приводу планування у випадку об'єднання в одне приміщення Кухні+вітальні + спальні, я щось пробую малювати, але ,якщоч есно стає воно не дуже , не розумію чи потрібно так багато простору
Якщо
ж ви наважитесь приєднати лоджію (а це
можливо в даному випадку), то взагалі
вийде суперово. 2 санвузли - один загальний
із ванною (бо дитина з'явиться), зі
стиралкою та сушилкою, а другий, приватний,
із душовою - при вашій спальні. Для цього
потрібно видвинути стіну в зону передпокою
на 20 см, а двері, що ведуть в кімнати,
зробити прихованого монтажу без
налічників.
Дитяча
матиме свій гардероб, великий стелаж
ліворуч, за ним письмовий стіл. Праворуч
- тахта та місткий комод.
При
вході погляд упиратиметься на красиву
консоль із дзеркалом над нею і бра по
боках. Ліворуч - велика вішалка відкритого
типу та пуф, щоб присісти. Праворуч -
шафи для взуття, верхнього одягу,
побутових речей.
Поруч
із дверима в дитячу теж має сенс поставити
вмісткий комод, зверху - гарний постер
та якесь окреме освітлення.
У
дорослій спальні кожен матиме свою
власну шафу, робочий стіл з кріслом,
тв-зону та стелаж десь на 40 - 50 см
завширшки.
Alisa_Bu
Дякую! Це дуже класна порада, проте ми також розглядаємо зробити кухню-вітальню великою та просторою, оскільки проводимо найбільше часу саме в такому місці, а коли прийде час до діточок і котів - зробити ремонт з переплануванням в перший варінт( як ви рекомендували) з окремою кімнатою -дитячою . Бо виходить що зараз 1 кімната просто лишня -пуста, максимум в ній буде кабінет-гостьова спальня. -
Alisa_Bu
Якщож ви наважитесь приєднати лоджію (а цеможливо в даному випадку), то взагалівийде суперово. 2 санвузли - один загальнийіз ванною (бо дитина з'явиться), зістиралкою та сушилкою, а другий, приватний,із душовою - при вашій спальні. Для цьогопотрібно видвинути стіну в зону передпокоюна 20 см, а двері, що ведуть в кімнати,зробити прихованого монтажу безналічників.
Дитячаматиме свій гардероб, великий стелажліворуч, за ним письмовий стіл. Праворуч- тахта та місткий комод.
Привході погляд упиратиметься на красивуконсоль із дзеркалом над нею і бра побоках. Ліворуч - велика вішалка відкритоготипу та пуф, щоб присісти. Праворуч -шафи для взуття, верхнього одягу,побутових речей.
Поручіз дверима в дитячу теж має сенс поставитивмісткий комод, зверху - гарний постерта якесь окреме освітлення.
Удорослій спальні кожен матиме своювласну шафу, робочий стіл з кріслом,тв-зону та стелаж десь на 40 - 50 смзавширшки.
Таке планування ТОП, якось так я це бачив у своїй голові але не міг намалювати)) Дякую ! Підкажіть будь ласка, до кого ви б рекомендували звернутись за розробкою такого дизайн проекту ?

Дмитро Зінь
Таке планування ТОП, якось так я це бачив у своїй голові але не міг намалювати)) Дякую ! Підкажіть будь ласка, до кого ви б рекомендували звернутись за розробкою такого дизайн проекту ?
Я не маю конкретної людини або агенції, кого можу рекомендувати. Наприклад я особисто розглядаю поміж знаних архітектурних бюро, бо помилки в проекті дорого коштуватимуть. Шукайте в Інстаграмі, на Ютубі - вони публічні, можна подивитись приклади їх робіт. Нащо потрібен проект, зроблений "на колінці"?
Могу порекомендовать отличного дизайнера интерьеров. Марданова Катя
+380 50 569 6155 . https://mardanovadesign.com

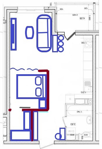
Добрый день. Чи Можна прибрати цю частину стіни що порушує правильну форму спальні? У документах в плануванні не було а потім виявилося таке. Купувалася квартира на ранній стадії і рендерів на сайті ЖК ще не було. Якихось примх до планування немає. Можливо щось можна покращити в плануванні за мінімальних зусиль, дякую!

- ЖК Poetica, 1-я коллекция | Поэтика | ENSO | ул. Дегтяревская, 25а15.103 099
- ЖК на пр. Отрадний 2, Київ | Житлоінвестбуд-УКБ13.1010 304
- ЖК "ObolonSKY", пр. Оболонский, 1 - МЖК "Оболонь"12.10552
- ЖК "Гранд Парк", Бровары, ул. Фельдмана, 112.10105
- ЖК Трояндовий | Бровари, вул. Фельдмана, вул. Спортивна12.10736
- Отзывы о застройщике MS12.104
- ЖК Урлівський-1 | Київміськбуд, BudCapital | Київ, вул. Причальна, 1110.103 791
- ЖК Синергія Сіті | Ірпінь, вул. О. Кобилянської (Достоєвського), пров. Озерний08.10224
- ЖК Рідний | Гатне, вул. Покровська, 207.1062
- ЖК Sanville Park | Санвиль Групп | Святопетрівське, вул. Богдана07.1036
- Чи варто зараз купувати нерухомість?10.104 714
- Чи варто купити будинок в спокійному регіоні, в Вінниці?17.092
- Завышеные тарифы на отопление. Как обжаловать и куда писать?19.082
- Іпотека від Банків із найкращими умовами | Обговорення кредитів під заставу нерухомості13.08192
- Краудфандинг - типы группового инвестирования01.083
- Планую оренду квартири в районі Подолу30.073
- Про агентство Атлант-А23.0722
- Допоможіть розібратись з податками08.053
- Дно рынка недвижимости и влияющие факторы31.0315 244
- Где найти качественные полотенца?04.092
- Орхидеи. Как ухаживать за орхидеями29.0818
- Выбор пылесоса. Отзывы о ваших пылесосах26.0866
- Відгуки про ортопедичні матраци. Матраци для комфортного сну22.0891
- Болит спина07.0873
- Какую выбрать мебель на террасу?04.084
- Стоит ли покупать кофе-машину13.07154
- Декоративные элементы в интерьере. Советы и отзывы о их сочетании12.0716
- Декор окна без штор, варианты и советы12.0746
- ЖК Дом у моря | Югінвест | Южный, ул. Иванова10.1017
- ЖК Sakura | Свалява, пров. Достоєвського, 404.105
- ЖК Імперіал Парк Авеню | Імперіал Буд | Чернівці, вул. Рівненська, 718.084
- ЖК Manhattan | Blago developer | Івано-Франківськ, вул. Романа Левицького, вул. Ленкавського04.0815
- ЖК Зелений двір | Спілка забудівників | Івано-Франківськ, вул. Тисменицька04.089
- Одесса, ул. Еврейская, 3 | Будова04.084
- Яка реальна ціна чорнових робіт в 2025 для будинку08.101
- Хто планує поїхати на будівельний форум у Львові цього вересня?01.093
- Тепла підлога, відгуки та поради28.08205
- Крыша потекла, что делать?25.0818
- Перепланування | прохання та поради щодо конкретних ситуацій19.082 216
- Матеріал багатоквартирного будинку. Який найкращий?13.0812
- Кліматичне обладнання норвезької ТМ Bergen07.082
- Як можна прочистити або покращити вентиляцію в квартирі?06.086
- Підлога на кухні - ламінат або плитка?30.0720
- Как отвечать на How are You?04.102
- Что подарить мужчине?24.09351
- Мій сайт не з'являється в результатах пошуку20.093
- Домик для кота26.085
- Тренажер в доме. Какой выбрать24.0817
- Меблі на замовлення | Оголошення про виготовлення меблів18.0899
- Как уберечь холодильник от перепадов напряжения09.0810
- Пол, тёплый пол, паркет, ламинат, плитка. Продажа напольных покрытий26.0728
- Кто как развлекается в свободное время?19.071
