Перепланування – питання юридичного характеру
Цитата "Romson":gt-4200, а стоит? Может убрать часть стены (если она не несущая), сделав кухню совмещённой с комнатой, и зонировать? Главное ничего не нужно согласовывать.
зонирование не привлекает, т.к. зонирование не защищает от звука.
Хочу сделать перепланировку в трешке: объединить туалет и ванну с коридором, вход в кухню сделать через залу. Подскажите, с чего нужно начинать, куда и какие документы готовить и подавать?


Цитата "R.Jester":Я правильно понимаю, что в соответствии из Законом Украины "О внесении изменений в некоторые законодательные акты Украины относительно упрощения условий ведения бизнеса (дерегуляция)" (от 12 февраля 2015 № 191-VIII) уже можно не узаконивать перепланировку в квартирах, которая "не предусматривает вмешательства в несущие конструкции и / или инженерные системы общего пользования"? Иными словами, можно уже переносить кухню и увеличивать санузлы за счет других помещений?
Эти изменения внесены в ЖК УССР 1983 года:
«Статья 152. Порядок переоборудования и перепланировки помещений частного жилищного фонда
Выполнение владельцами работ по переоборудованию и перепланировке жилого дома и жилого помещения частного жилищного фонда, которые не предусматривают вмешательства в несущие конструкции и / или инженерные системы общего пользования, не требует получения документов, дающих право на их выполнение. После завершения указанных работ ввод объекта в эксплуатацию не требуется»
Что можно делать я писал на предыдущей странице (указанную инструкцию не изменили).

И еще, ваша ссылка на п.3.2 - это на "Порядок проведення обмірювальних робіт", я правильно понял?

Цитата "R.Jester":Romson, вы имеете ввиду ваш пост от 30.12.2013 18:44? Изменения ведь внесли законом от 12 февраля 2015. Разве в 2013 году эти правила уже действовали?
И еще, ваша ссылка на п.3.2 - это на "Порядок проведення обмірювальних робіт", я правильно понял?
Инструкция о проведении технической инвентаризации с 2001г., но в неё периодически вносились изменения в т.ч. по поводу перепланировки.
Я не занимаюсь этим, просто пришлось несколько раз спорить с Застройщиками об проведённых обмерах. Когда у меня возникают сомнения, я иду в БТИ на консультацию (1 парадное 2 эт.)
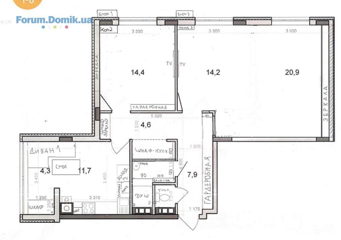
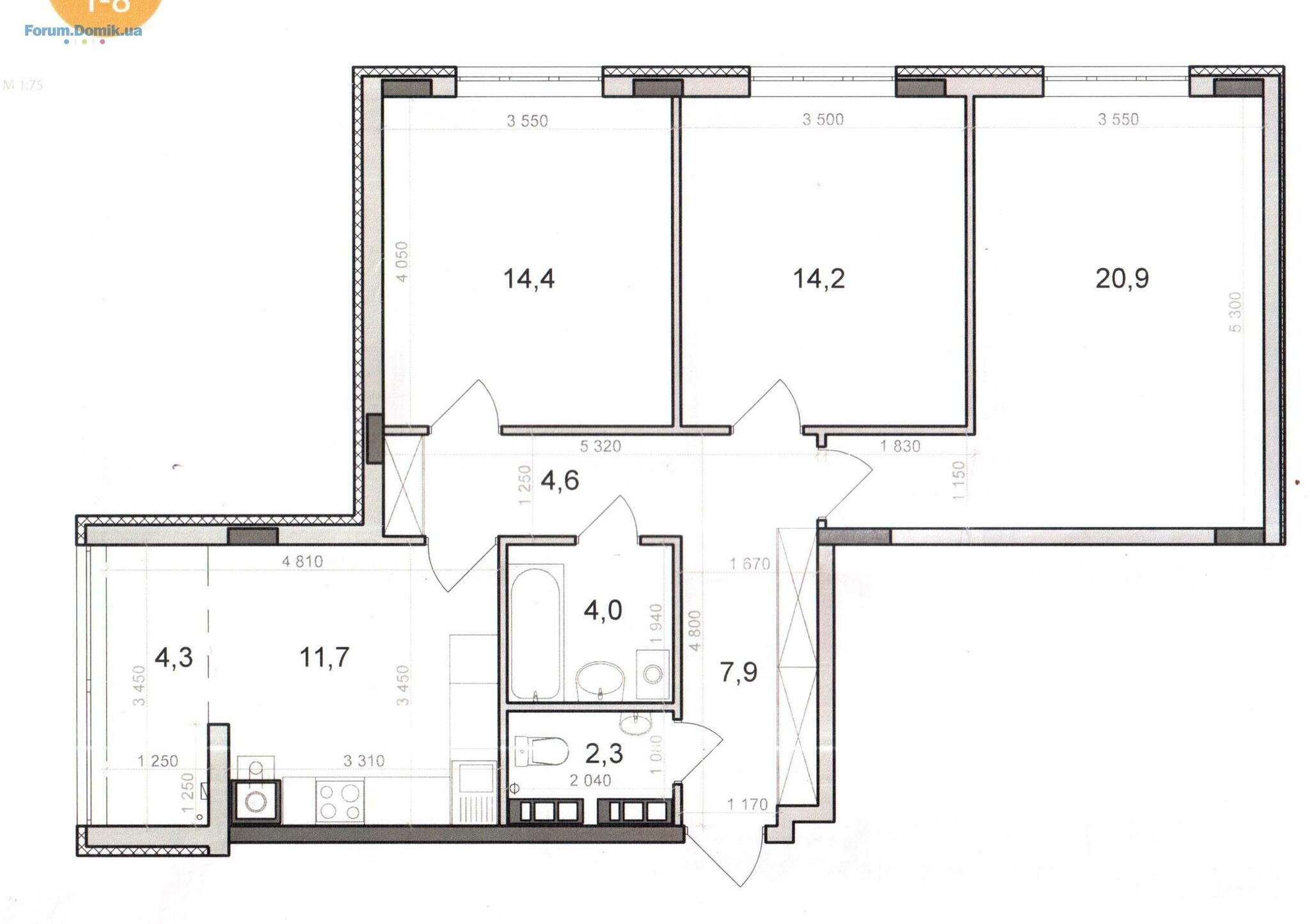
З.Ы. площади туалета и ванны будут соответствовать нормам (1,2 и 3,3 соответственно)

Цитата "kwon":Здравствуйте! Планируем объединить две комнаты в 3-х комнатной квартире (стены не несущие), а также изменить площади санузлов (уменьшить туалет за счет ванной и сделать кладовую). В новом туалете нужно будет пробить вентиляционное отверстие в шахту. Фото до и после прилагаю. Надо ли разрешение на такие работы на сегодняшний день, или можно приступать самостоятельно?
З.Ы. площади туалета и ванны будут соответствовать нормам (1,2 и 3,3 соответственно)
Разрешения брать не нужно, вентиляцию с туалета необходимо вывести трубой в существующее отверстие, пробив новое вы на 99% попадете в кухонный канал, пробивать центральный канал шахты запрещено.
Цитата "kc-design":
Разрешения брать не нужно, вентиляцию с туалета необходимо вывести трубой в существующее отверстие, пробив новое вы на 99% попадете в кухонный канал, пробивать центральный канал шахты запрещено.
Спасибо! Не совсем понял с шахтами... т.е. ту, что ближе к коридору пробивать нельзя? Я планировал, что старое туалетное отверстие будет вентилировать ванную, а в туалете пробить новое (ближе к коридору)... или можно вывести два в одно (туалет+ванная)? А кухонная где? Разве она не над котлом находится?

Цитата "kwon":
Спасибо! Не совсем понял с шахтами... т.е. ту, что ближе к коридору пробивать нельзя? Я планировал, что старое туалетное отверстие будет вентилировать ванную, а в туалете пробить новое (ближе к коридору)... или можно вывести два в одно (туалет+ванная)? А кухонная где? Разве она не над котлом находится?
На кухне у вас должно быть два вентканала, один для котла и один для вытяжки, туалет и ванную выводите вместе в одно отверстие.
Цитата "kc-design":
На кухне у вас должно быть два вентканала, один для котла и один для вытяжки, туалет и ванную выводите вместе в одно отверстие.
Большое спасибо!
Думаем насчет покупки 2к квартиры, в ней хозяева сделали перепланировку, несущие стены не затронуты, внутренние перегородки изменены, балконы в обеих комнатах совмещены с комнатами (несущие стены на затронуты), изменены размеры кухни и ванной. На одном балконе на внешней стороне несущей стены установлена батарея. Хозяева говорят, что такие изменения узаконивать по новым правилам не нужно.
Можно ли покупать такую квартиру и какие возможны дальнейшие проблемы?
Должны ли были хозяева после перепланировки переоформить техпаспорт?
Заранее спасибо за ответ.
{ Стаття 152 із змінами, внесеними згідно із Законом N 3187-12 від
06.05.93; в редакції Закону N 191-VIII ( 191-19 ) від 12.02.2015 }
"Стаття 152. Порядок проведення переобладнання і перепланування приміщень приватного житлового фонду
Виконання власниками робіт з переобладнання та перепланування жилого будинку і жилого приміщення приватного житлового фонду, які не передбачають втручання в несучі конструкції та/або інженерні системи загального користування, не потребує отримання документів, що дають право на їх виконання. Після завершення зазначених робіт введення об’єкта в експлуатацію не потребується";
https://zakon5.rada.gov.ua/laws/show/5464-10/page4
https://zakon5.rada.gov.ua/laws/show/191-19
https://news.finance.ua/ua/news/-/352659/yak-provesty-i-uzakonyty-pereplanuvannya-kvartyry
Обов’язково узаконювати потрібно «об’єднання» квартир, розташованих на одному або на різних поверхах, влаштування дверних прорізів у несучих стінах, приєднання мансарди, об’єднання кімнати і лоджії, облаштування кухні-ніші та інші види перепланування, які порушують капітальні конструкції. Щоб узаконити таке перепланування, необхідно отримати дозвіл на проведення будівельних робіт.
Менш значимі зміни – об’єднання санвузла, засклення балконів і лоджій, збільшення площі за рахунок демонтажу некапітальних стін – узаконювати непотрібно. Достатньо замовити новий технічний паспорт, де будуть відзначені всі зміни.
Згідно з українським законодавством не можна узаконити винесення батарей на лоджію, об’єднану з кімнатою, облаштування житлової кімнати над або під санвузлом та кухнею.
Щоб отримати дозвіл на проведення робіт з перепланування, необхідно подати декларацію (заяву), правовстановлюючі документи і проект перепланування в Дозвільний центр.
Після закінчення робіт необхідно повідомити про завершення перепланування в Дозвільний орган, щоб підтвердити відповідність виконаних робіт проекту. Протягом 7 днів орган має прийняти об’єкт в експлуатацію.
Уважаемые форумчане, подскажите пожалуйста!! по действующим правилам/законам нужно ли разрешение(узаконивание) , если совмещать кухню с лоджией???
По сути демонтируется только окно и балконная дверь, подоконный блок остается на своем месте и радиатор тоже.
Цитата "AVY":Доброго времени суток.
Уважаемые форумчане, подскажите пожалуйста!! по действующим правилам/законам нужно ли разрешение(узаконивание) , если совмещать кухню с лоджией???
По сути демонтируется только окно и балконная дверь, подоконный блок остается на своем месте и радиатор тоже.
если стены и батареи не трогаете, то ничего не надо
Цитата "kwon":
если стены и батареи не трогаете, то ничего не надо
Спасибо за ответ, но он неправильный

Сама теперь отвечу на свой вопрос.После общения с техником бти- Такой вариант указанивать нужно 100% (( , т.к. это ,оказывается, влияет на теплоресурс дома


Цитата "AVY":
Спасибо за ответ, но он неправильный![]()
Сама теперь отвечу на свой вопрос.После общения с техником бти- Такой вариант указанивать нужно 100% (( , т.к. это ,оказывается, влияет на теплоресурс дома. Вот такие дела. Не все так просто
Ну а какой еще ответ Вы хотели услышать от техника БТИ? Их же не интересует, что балкон/лоджия утеплен вашими силами лучше чем основная часть помещения, там пол с электроподогревом и батарею/стены вы не трогаете- а теплоресурс дома все равно существенно меняется. Но, конечно, же - вам обязательно нужно сходить к ним и занести денег. Желательно немало. Перепланировка все же.

Подскажите пожалуйста, хотим продать квартиру, чтоб продать надо внести ее в реестр, подали документы, пришел отказ - не узаконена перепланировка. У нас была перепланировка, сделали перегородку из дерева, несущие стены не трогали! В старом техническом паспорте стоит печать что - перепланировка без соглашения с БТИ, не узаконена. В БТИ сказали - мы нового закона не знаем (от 2015г https://zakon5.rada.gov.ua/laws/show/5464-10/page4), инженер придет и нарисует техпаспорт как есть (тоесть снова скажет что перепланировка не узаконена), хотите узаконить - идите в ГАСК Вот и как быть? как всегда издадут закон, а как его выполнять никто не знает.
И можно ли обратиться в частное БТИ, если наше дело в государственном БТИ?

- ЖК Poetica, 1-я коллекция | Поэтика | ENSO | ул. Дегтяревская, 25а15.103 099
- ЖК на пр. Отрадний 2, Київ | Житлоінвестбуд-УКБ13.1010 304
- ЖК "ObolonSKY", пр. Оболонский, 1 - МЖК "Оболонь"12.10552
- ЖК "Гранд Парк", Бровары, ул. Фельдмана, 112.10105
- ЖК Трояндовий | Бровари, вул. Фельдмана, вул. Спортивна12.10736
- Отзывы о застройщике MS12.104
- ЖК Урлівський-1 | Київміськбуд, BudCapital | Київ, вул. Причальна, 1110.103 791
- ЖК Синергія Сіті | Ірпінь, вул. О. Кобилянської (Достоєвського), пров. Озерний08.10224
- ЖК Рідний | Гатне, вул. Покровська, 207.1062
- ЖК Sanville Park | Санвиль Групп | Святопетрівське, вул. Богдана07.1036
- Чи варто зараз купувати нерухомість?10.104 714
- Чи варто купити будинок в спокійному регіоні, в Вінниці?17.092
- Завышеные тарифы на отопление. Как обжаловать и куда писать?19.082
- Іпотека від Банків із найкращими умовами | Обговорення кредитів під заставу нерухомості13.08192
- Краудфандинг - типы группового инвестирования01.083
- Планую оренду квартири в районі Подолу30.073
- Про агентство Атлант-А23.0722
- Допоможіть розібратись з податками08.053
- Дно рынка недвижимости и влияющие факторы31.0315 244
- Где найти качественные полотенца?04.092
- Орхидеи. Как ухаживать за орхидеями29.0818
- Выбор пылесоса. Отзывы о ваших пылесосах26.0866
- Відгуки про ортопедичні матраци. Матраци для комфортного сну22.0891
- Болит спина07.0873
- Какую выбрать мебель на террасу?04.084
- Стоит ли покупать кофе-машину13.07154
- Декоративные элементы в интерьере. Советы и отзывы о их сочетании12.0716
- Декор окна без штор, варианты и советы12.0746
- ЖК Дом у моря | Югінвест | Южный, ул. Иванова10.1017
- ЖК Sakura | Свалява, пров. Достоєвського, 404.105
- ЖК Імперіал Парк Авеню | Імперіал Буд | Чернівці, вул. Рівненська, 718.084
- ЖК Manhattan | Blago developer | Івано-Франківськ, вул. Романа Левицького, вул. Ленкавського04.0815
- ЖК Зелений двір | Спілка забудівників | Івано-Франківськ, вул. Тисменицька04.089
- Одесса, ул. Еврейская, 3 | Будова04.084
- Яка реальна ціна чорнових робіт в 2025 для будинку08.101
- Хто планує поїхати на будівельний форум у Львові цього вересня?01.093
- Тепла підлога, відгуки та поради28.08205
- Крыша потекла, что делать?25.0818
- Перепланування | прохання та поради щодо конкретних ситуацій19.082 216
- Матеріал багатоквартирного будинку. Який найкращий?13.0812
- Кліматичне обладнання норвезької ТМ Bergen07.082
- Як можна прочистити або покращити вентиляцію в квартирі?06.086
- Підлога на кухні - ламінат або плитка?30.0720
- Как отвечать на How are You?04.102
- Что подарить мужчине?24.09351
- Мій сайт не з'являється в результатах пошуку20.093
- Домик для кота26.085
- Тренажер в доме. Какой выбрать24.0817
- Меблі на замовлення | Оголошення про виготовлення меблів18.0899
- Как уберечь холодильник от перепадов напряжения09.0810
- Пол, тёплый пол, паркет, ламинат, плитка. Продажа напольных покрытий26.0728
- Кто как развлекается в свободное время?19.071
