Перепланировка | тема просьб и советов по конкретным ситуациям
Arna
A
Новичок
16
12 ноября 2018
06 дек 2018 06:18
Цитата "Karinakodi":
Спасибо большое за предложение, но буду думать дальше: кухня спиной к окну или комната без окон - не самый лучший вариант... Но,все равно,благодарю )
Не знаючи, складу сім‘ї та звичок важко щось радити. Я розглядала ваше планування «під себе», а мені потрібні 2 ізольовані спальні
Vodan23
V
Новичок
12
19 августа 2017
06 дек 2018 08:12
Цитата "Echoofmemories":
Выглядит хорошо.
Благодарю
Echo of memories
Eo
Постоянный пользователь
229
23 октября 2017
06 дек 2018 10:02
Цитата "Vodan23":
Благодарю
Это Урловский или Медовый?
Immmortal
I
Постоянный пользователь
164
14 февраля 2012
06 дек 2018 11:27
Цитата "Vodan23":Добрый день.
Мы молодая семья. Всего нас двое, планируем третьего
Квартира 3-х комнатная в новостройке. Хотим оставить нам спальню с большим окном, ребенку - детскую, а еще одну комнату объединить с кухней. Из нашего здоровенного коридора сделать гардеробную. Также хотим расширить кухню за счет лоджии.
Примерно есть видение, как и что будет. Это отражено на картинках, которые во вложении. Правда, картинки с мебелью делались без привязки к размерам комнат. Простая визуализация.
Хочется услышать ваши рекомендации по поводу переделки нашей квартиры а также по поводу расстановки мебели в кухне-гостинной. Основную часть времени будем проводить здесь. Хочется, чтобы было уютно, красиво и просторно. Спасибо!
По мебели, я бы разделил зону кухни и гостинной, например барной стойкой, под которую с одной стороны придвинул диван, а с другой (со стороны кухни) барные стулья. Итого, есть разделение, плюс удобно сидеть за стойкой и смотреть тв (я так понял тв будет висеть на стене между входами в жилую зону?), а сидящие на диване всегда могут поставить что то на барную стойку над диваном..
Vodan23
V
Новичок
12
19 августа 2017
06 дек 2018 13:58
Цитата "Echoofmemories":
Это Урловский или Медовый?
Это Каховская,60
Vodan23
V
Новичок
12
19 августа 2017
06 дек 2018 13:59
Цитата "Immmortal":
По мебели, я бы разделил зону кухни и гостинной, например барной стойкой, под которую с одной стороны придвинул диван, а с другой (со стороны кухни) барные стулья. Итого, есть разделение, плюс удобно сидеть за стойкой и смотреть тв (я так понял тв будет висеть на стене между входами в жилую зону?), а сидящие на диване всегда могут поставить что то на барную стойку над диваном..
Согласна, это хорошая идея. Спасибо!
Arna
A
Новичок
16
12 ноября 2018
06 дек 2018 22:23
Цитата "Vodan23":Добрый день.
Мы молодая семья. Всего нас двое, планируем третьего
Як варіант, вхід у велику спальню зробити “нижче», щоб при вході по праву руку була велика шафа у вздовж всієї стіни 4,15 м
Також, можливо розділити на гардеробну на 2 частини - 2й вхід з меншої спальні, щоб не робити там окремої шафи.
І розгляньте можливість збільшити ванну кімнату, хоч за рахунок кухні. Площа 3,82 кв.м, як на мене, «знущання» забудовника для такої квартири.
Vodan23
V
Новичок
12
19 августа 2017
07 дек 2018 14:03
Цитата "Immmortal":
По мебели, я бы разделил зону кухни и гостинной, например барной стойкой, под которую с одной стороны придвинул диван, а с другой (со стороны кухни) барные стулья. Итого, есть разделение, плюс удобно сидеть за стойкой и смотреть тв (я так понял тв будет висеть на стене между входами в жилую зону?), а сидящие на диване всегда могут поставить что то на барную стойку над диваном..
Да, вы правы. В большой комнате хочется сделать камин, над ним ТВ. По бокам будут 2 двери. Как думаете, двери лучше под цвет стен сделать, чтобы они были незаметными или все-таки контрастные купить?
kievlyanin33
k
Новичок
18
19 апреля 2018
09 дек 2018 13:42
Цитата "Vodan23":
Да, вы правы. В большой комнате хочется сделать камин, над ним ТВ. По бокам будут 2 двери. Как думаете, двери лучше под цвет стен сделать, чтобы они были незаметными или все-таки контрастные купить?
Скажу по собственному опыту. Барная стойка хороша на стадии дизайна и круто смотрится в мечтах. Потом за ней никто не сидит. За столом все равно удобнее. В результате при наличии барной стойки, все равно кушаешь за журнальным столиком...
Aleks89
A
Гость
4
23 июня 2018
10 дек 2018 19:55
Всем добрый вечер!
Купил квартиру 2-ух комнатную:

Хочу большую кухню-студию и думаю сделать так:

Подскажите пожалуйста как лучше по Вашему мнению.
Спасибо.
Купил квартиру 2-ух комнатную:
Хочу большую кухню-студию и думаю сделать так:
Подскажите пожалуйста как лучше по Вашему мнению.
Спасибо.
кикер
Постоянный пользователь
254
29 июня 2016
11 дек 2018 12:58
у кого какие есть замечания по поводу планировки? 

Styonya
S
Гость
2
12 декабря 2018
12 дек 2018 11:44
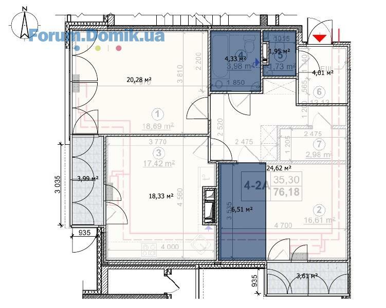
Добрый день, уважаемые форумчане. Нужна помощь по планировке квартиры в новострое. Есть план от застройщика - несущие стены только по периметру квартиры, мокрые зоны примерно обозначены, но можно немного их "подвигать", вентканалы тоже указаны. Сама набросала пару вариантов, хотелось бы услышать ваше мнение и конструктивную критику. Квартира 58.9 м.кв. предполагалась двухкомнатная, но я попыталась "нарезать" трешку, потому что нас много 😁: двое взрослых, двое детей одного пола младшего школьного возраста, бабуля весьма почтенного возраста и мой взрослый брат. Поэтому нужны два санузла, три отдельные комнаты и кухня-гостинная. Гардеробные или кладовки в квартире не нужны, достаточно в каждой комнате небольшого шкафа с комодом для повседневной одежды. Газа в доме нет, все электро. Вобщем, гляньте, что мне придумалось или может возникнут другие идеи...



Styonya
S
Гость
2
12 декабря 2018
13 дек 2018 14:25
Еще вариант созрел...
гандзя
г
Новичок
11
18 июня 2018
13 дек 2018 15:54
Цитата "Karinakodi":Форумчане, мой мозг уже почти взорвался. Подскажите, пожалуйста,как обыграть такой большой коридор. В идеале его бы уменьшить. Не знаю как, это сделать, и на гардеробную место никак не получается найти.
3 -дитяча,1-спальня,2 зєднується з 5 ванною і частиною коридора (гостинна з кухньою)
SecurityBorodaCH
Постоянный пользователь
147
16 февраля 2018
14 дек 2018 09:26
Добрый день, форумчане. Помогите советом- как здесь разместить душевно семью из 4 человек-муж, жена, сын 14 лет, дочь 10 лет. Заранее спасибо. Ато мозг уже закипает
SecurityBorodaCH
Постоянный пользователь
147
16 февраля 2018
14 дек 2018 13:44
есть пара вариантов
Osher
O
Прохожий
1
19 декабря 2018
19 дек 2018 17:45
Форумчане,помогите)) возможно ли из этой сталинки перепланировать жильё для семьи с двумя разнополыми детьми? Так чтобы у каждого была спальня и при этом осталась хоть небольшая общая зона для отдыха
Safronushka
S
Пользователь
39
16 октября 2018
30 дек 2018 12:55
Добрый день. Помогите выделить детскую зону и спальню для мамы:) Планировка следующая:
Safronushka
S
Пользователь
39
16 октября 2018
30 дек 2018 12:59
Вот планировка ) Спасибо!
Беркана
Ветеран
1 228
13 июля 2017
01 янв 2019 15:54
Цитата "Safronushka":[attachment=0]Capture.JPG[/attachment]
Ничего тут не сделать,всего 2 окна, типовая планировка однушки.Только купить другую квартиру.Не будет же кто-то из вас спать без окна, задохнетесь.
Авторський канал ріелтора в Іспанії
Знайомтесь з Бенідормом, нерухомістю та стилем життя. Новобудови регіону, аналітика, інвестиції
Подробнее
- ЖК Дніпровська Мрія | Галжитлобуд | ул. Сосюры, 605.11797
- ЖК Трояндовий | Бровари, вул. Фельдмана, вул. Спортивна04.11737
- ЖК Chalet | Standard Development | Київ, вул. Львівська, 18-б04.11117
- ЖК Урловский-1 | Киевгорстрой, bUdCapital | Киев, ул. Причальная, 1104.113 799
- Киев, ул. Кудряшова, 14а - "Киевгорстрой" (отменён)04.1126
- ЖК Sanville Park | Санвиль Групп | Святопетровское, ул. Богдана Хмельницкого, 25а04.1141
- ЖК Family and Friends | 2 очередь | GEOS | Киев, ул. Новополевая, 203.11531
- Власники квартир з ЖК Крона парк 2 в будинку 3 (Соборна 23, м. Бровари) - відгукніться!03.111
- ЖК Урловский-2 | Киевгорстрой | Киев, ул. Сортировочная, Канальная, Клеманская02.112 066
- ЖК Заречный | bUd development | пр-т Н. Бажана, ул. Заречная02.1111 515
- Дно рынка недвижимости и влияющие факторы04.1115 253
- Стоит ли сейчас покупать недвижимость?29.104 723
- Чи варто купити будинок в спокійному регіоні, в Вінниці?17.092
- Завышеные тарифы на отопление. Как обжаловать и куда писать?19.082
- Ипотека от Банков с лучшими условиями | Обсуждение кредитов под залог недвижимости13.08192
- Краудфандинг - типы группового инвестирования01.083
- Планирую аренду квартиры в районе Подола30.073
- Про агентство Атлант-А23.0722
- Допоможіть розібратись з податками08.053
- Где найти качественные полотенца?04.092
- Орхидеи. Как ухаживать за орхидеями29.0818
- Выбор пылесоса. Отзывы о ваших пылесосах26.0866
- Отзывы об ортопедических матрацах. Матрасы для комфортного сна22.0891
- Болит спина07.0873
- Какую выбрать мебель на террасу?04.084
- Стоит ли покупать кофе-машину13.07154
- Декоративные элементы в интерьере. Советы и отзывы о их сочетании12.0716
- Декор окна без штор, варианты и советы12.0746
- ЖК Kandinsky Odessa Residence | Кандинский | Одесса, Французский бульвар, 63/6515.10182
- ЖК Дом у моря | Югінвест | Южный, ул. Иванова10.1017
- ЖК Sakura | Свалява, пров. Достоєвського, 404.105
- ЖК Імперіал Парк Авеню | Імперіал Буд | Чернівці, вул. Рівненська, 718.084
- ЖК Manhattan | Blago developer | Івано-Франківськ, вул. Романа Левицького, вул. Ленкавського04.0815
- ЖК Зелений двір | Спілка забудівників | Івано-Франківськ, вул. Тисменицька04.089
- Кварц виниловая плитка LG Decotile или Berry Alloc29.106
- Напольные покрытия - чтобы было тепло, красиво и недорого29.1018
- Яка реальна ціна чорнових робіт в 2025 для будинку08.101
- Хто планує поїхати на будівельний форум у Львові цього вересня?01.093
- Тёплый пол, отзывы и советы28.08205
- Крыша потекла, что делать?25.0818
- Перепланировка | тема просьб и советов по конкретным ситуациям19.082 216
- Материал многоквартирного дома новостройки. Какой лучше?13.0812
- Климатическое оборудование норвежской ТМ Bergen07.082
- Продам фонарик шокер ОСА 928 Power plus04.111
- Пошук обладнання для магазину21.101
- Как отвечать на How are You?04.102
- Что подарить мужчине?24.09351
- Мій сайт не з'являється в результатах пошуку20.093
- Домик для кота26.085
- Тренажер в доме. Какой выбрать24.0817
- Мебель под заказ | Объявления об изготовлении мебели18.0899
- Как уберечь холодильник от перепадов напряжения09.0810
Авторський канал ріелтора в Іспанії
Знайомтесь з Бенідормом, нерухомістю та стилем життя. Новобудови регіону, аналітика, інвестиції
Подробнее