ЖК "Династия", ул. Василия Липковского, 37г - "Ковальская"
| Застройщик | КОВАЛЬСКАЯ |
| Сдача ЖК | 2018 г. |
| Планировки | от 25 890 Грн/м² |
Ваше общее впечатление об Объекте и Компании:
Можно выбрать 1 вариант ответа. Можно менять ответы. Всего голосов: 108.
| 7/6% | ||
| 13/12% | ||
| 24/22% | ||
| 34/31% | ||
| 30/28% |
kc-design
Ветеран
1 644
22 сентября 2015
28 июнь 2017 21:16
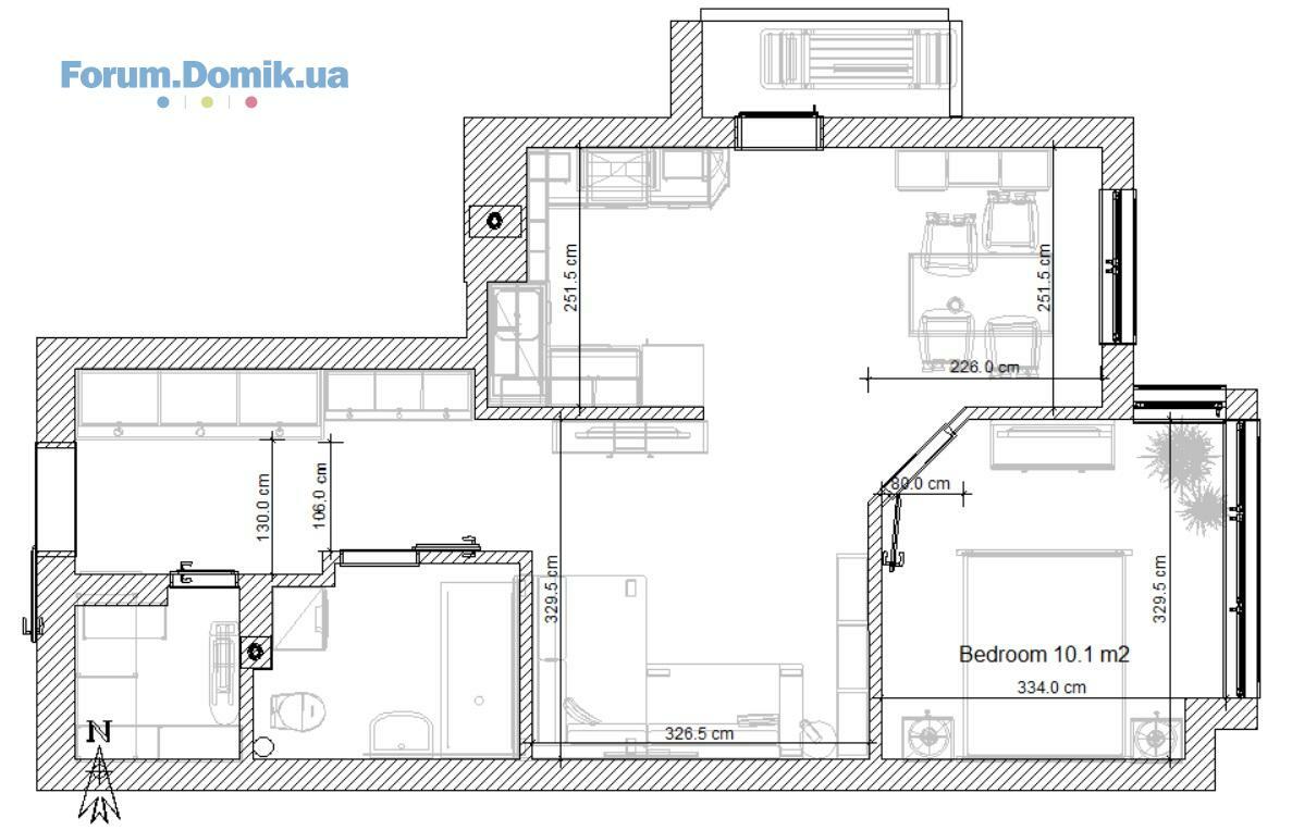
Цитата "Ksyuuu":Кто себе приобрел такую планировку: 1-1М, 1 корпус, 1 Дом?
Делитесь идеями по планировкам. Я пока остановилась на варианте: Из части кухни сделать спальню, арку на балкон, балкон застеклить. Гостиную и вторую часть кухни возле окна объединить в студию. Спальню из части коридора сделать квадратной.
Возможно еще у кого-то есть идеи какие-то поинтереснее?
//dynastija.com.ua/upload/iblock/3d7/3d7 a5676c25ff5f06a70f1eba4d144b5.jpg
Арка так просто не получится, стена монолитная, проем под дверь сантиметров 70-75. Расширить есть возможность, но необходимо будет делать экспертизу, проект на вмешательство в несущие конструкции, собирать разрешения.
На кухне вы будете вынуждены использовать канализационный насос, трубу проводить через спальню под потолком, так же резать стяжку, прокладывать дополнительные трубы ХВ/ГВ и отопления.
Гораздо правильней будет отрезать 10-11 м2 от большой комнаты, остальное присоединить к кухне и добавить часть коридора.
Ksyuuu
K
Новичок
19
18 июня 2017
29 июнь 2017 09:10
Цитата "kc-design":
Арка так просто не получится, стена монолитная, проем под дверь сантиметров 70-75. Расширить есть возможность, но необходимо будет делать экспертизу, проект на вмешательство в несущие конструкции, собирать разрешения.
На кухне вы будете вынуждены использовать канализационный насос, трубу проводить через спальню под потолком, так же резать стяжку, прокладывать дополнительные трубы ХВ/ГВ и отопления.
Гораздо правильней будет отрезать 10-11 м2 от большой комнаты, остальное присоединить к кухне и добавить часть коридора.
Идея была такая: На кухне дверь с выходом на балкон, убрать дверь и по ширине двери сделать арку не трогая монолит (балкон утеплить и застеклить). Трубы провести поверх пола по краю стены и спрятать под короб красивый с лампами (декор), на балконе по высоте короба поднять пол. Будет на балкон ступенька.
Вашу идею тоже рассматриваем, но тут минус, что вход в спальню будет через гостиную, будет сдельная квартира. А так отдельно комната получиться 10 кв.м.
Еще посоветуюсь, выберу какой-то из этих вариантов. Спасибо за ответ.
p_maxus
p
Новичок
16
21 ноября 2015
29 июнь 2017 10:15
Доброго дня,
в нас схожа квартира в п'ятій секціі. Зараз обговорюємо два варіанти перепланування. Поки не домоволись, як відокремлювати спальню. Є за і проти у кожного з варіантів.
Дивіться перепланування.
До речі, моя дружина любить робити різні перепланування, може продумати і візуалізувати альтернативні варіанти.

в нас схожа квартира в п'ятій секціі. Зараз обговорюємо два варіанти перепланування. Поки не домоволись, як відокремлювати спальню. Є за і проти у кожного з варіантів.
Дивіться перепланування.
До речі, моя дружина любить робити різні перепланування, може продумати і візуалізувати альтернативні варіанти.
Ksyuuu
K
Новичок
19
18 июня 2017
29 июнь 2017 13:56
Цитата "p_maxus":Доброго дня,
в нас схожа квартира в п'ятій секціі. Зараз обговорюємо два варіанти перепланування. Поки не домоволись, як відокремлювати спальню. Є за і проти у кожного з варіантів.
Дивіться перепланування.
До речі, моя дружина любить робити різні перепланування, може продумати і візуалізувати альтернативні варіанти.
[attachment=1]v3.jpg[/attachment] [attachment=2]v2.jpg[/attachment] [attachment=0]v1.jpg[/attachment]
Спасибо. Не плохие варианты. Но для меня важно оставить большую гостиную с большим окном. Так как это будет основное место обитания. У меня есть еще одна идея, сделаю - Вам тоже скину картинку, посмотрите. Может и Вам подойдет)
Ksyuuu
K
Новичок
19
18 июня 2017
29 июнь 2017 13:58
Цитата "p_maxus":Доброго дня,
в нас схожа квартира в п'ятій секціі. Зараз обговорюємо два варіанти перепланування. Поки не домоволись, як відокремлювати спальню. Є за і проти у кожного з варіантів.
Дивіться перепланування.
До речі, моя дружина любить робити різні перепланування, може продумати і візуалізувати альтернативні варіанти.
[attachment=1]v3.jpg[/attachment] [attachment=2]v2.jpg[/attachment] [attachment=0]v1.jpg[/attachment]
1 вариант мне нравиться и удобное расположение.
a_a
a
Пользователь
50
28 марта 2017
29 июнь 2017 14:26
Цитата "O_O_O":Кто-то спрашивал по поводу посещения квартир на стройке, странно, что не пускают, дом 70-80% готовности.... Практически все застройщики практикуют просмотры, так легче определится....
глупости какие. Стройка - это режимный объект
, туда не пускают всех желающих. Пусть эти желающие даже инвесторы.nik_123
n
Пользователь
40
15 мая 2017
30 июнь 2017 14:32
Цитата "Ksyuuu":Кто себе приобрел такую планировку: 1-1М, 1 корпус, 1 Дом?
Делитесь идеями по планировкам. Я пока остановилась на варианте: Из части кухни сделать спальню, арку на балкон, балкон застеклить. Гостиную и вторую часть кухни возле окна объединить в студию. Спальню из части коридора сделать квадратной.
Возможно еще у кого-то есть идеи какие-то поинтереснее?
//dynastija.com.ua/upload/iblock/3d7/3d7 a5676c25ff5f06a70f1eba4d144b5.jpg
Приклад перепланування
https://3m2.kiev.ua/stati/planirovki/effektivnie_metri_pereplanirovka_50-metroy_odnokomnatnoy_kvartiri_v_zhk_dinastiya
a_a
a
Пользователь
50
28 марта 2017
30 июнь 2017 15:05
Цитата "nik_123":
Приклад перепланування![]()
https://3m2.kiev.ua/stati/planirovki/effektivnie_metri_pereplanirovka_50-metroy_odnokomnatnoy_kvartiri_v_zhk_dinastiya
А еще варианты?
там есть еще однушки с балконом из кухни, который идет в продолжение кухни (т.е. на ту же сторону, что и окна спальни).
atemi
a
Пользователь
39
11 сентября 2016
04 июль 2017 20:16
Солом’янські забудови: обережно: небезпека
//www.hronograf.kiev.ua/kyiv/108-solomia nka/2782-solom-ianski-zabudovy-oberezhno -nebezpeka
мысли?
fordok
f
Новичок
12
29 июля 2016
04 июль 2017 20:24
Цитата "atemi"://www.hronograf.kiev.ua/kyiv/108-solomianka/2782-solom-ianski-zabudovy-oberezhno-nebezpeka
мысли?
Какие мысли? )) те же яйца только в профиль. Гражданин живет в частном секторе возле комплекса - вот и пригорает периодически.
atemi - вы так своевременно и оперативно сливаете посты и линки вышеозначенного лица, что можно только поаплодировать.
atemi
a
Пользователь
39
11 сентября 2016
04 июль 2017 21:10
Цитата "fordok":
Какие мысли? )) те же яйца только в профиль. Гражданин живет в частном секторе возле комплекса - вот и пригорает периодически.
atemi - вы так своевременно и оперативно сливаете посты и линки вышеозначенного лица, что можно только поаплодировать.
Слежу за всем, за чем могу, я ведь материально заинтересован.
А какой у него адрес проживания?
atemi
a
Пользователь
39
11 сентября 2016
04 июль 2017 21:28
Цитата "fordok":
Какие мысли? )) те же яйца только в профиль. Гражданин живет в частном секторе возле комплекса - вот и пригорает периодически.
atemi - вы так своевременно и оперативно сливаете посты и линки вышеозначенного лица, что можно только поаплодировать.
По фамилии и инициалам на проулке Рощинском проживает один из 4-х истцов судебного дела. Руденко там не засвечен (ну, я пока не нашел), а по самому району с такой фамилией людей много.
В общем, факты давайте, нечего голословить.
auroka
a
Новичок
10
05 июля 2017
04 июль 2017 23:15
Цитата "atemi"://www.hronograf.kiev.ua/kyiv/108-solomia nka/2782-solom-ianski-zabudovy-oberezhno -nebezpeka
мысли?
Я посмотрел часть доводов в статье, толи я чего-то не понимаю, толи автор местами нагло врет и искажает факты:
Цитата:
З нього витікала річка «Мокра», яка йшла з північної сторони пагорба, на якому зараз знаходиться стадіон і комбінат театрального реквізиту. На всьому протязі русла річки били джерела.
Нижче будинку № 13 по вулиці Кавказькій, в низині, була вулиця «Мокра», - тому вона так і називалася. І йшла ця вулиця паралельно існуючій зараз вулиці «Механізаторів».
Пізніше річка була взята в бетонний колектор.
Вот вам из статьи википедии:
https://ru.wikipedia.org/wiki/%D0%9A%D1%83%D1%87%D0%BC%D0%B8%D0%BD_%D1%8F%D1%80
Цитата:
Финальная часть яра проходит по улице Кудряшова, которая когда-то называлась Мокрой. Устье яра заканчивается под Железнодорожным мостом.
Мало того что везде на картах река мокрая:
//www.tools.wmflabs.org/geohack/geohack. php?language=uk&pagename=%D0%9C%D0%BE%D0 %BA%D1%80%D0%B0_(%D0%BF%D1%80%D0%B8%D1%8 2%D0%BE%D0%BA%D0%B0_%D0%9B%D0%B8%D0%B1%D 0%B5%D0%B4%D1%96)¶ms=50_26_17.000052000011_N_30_29_4 8.000048000002_E_globe:
Блоги в которых она затрагивается:
//vzr-acis.livejournal.com/2689.html
//levk-777.livejournal.com/22518.html
То выходит, каким боком "Мокрая" к этой территории?
atemi
a
Пользователь
39
11 сентября 2016
05 июль 2017 06:34
Цитата "auroka":
То выходит, каким боком "Мокрая" к этой территории?
Сам задаюсь этим вопросом.
Вот еще один блог: //fere-expertt.livejournal.com/9797.html
tyrd
t
Постоянный пользователь
265
19 ноября 2013
05 июль 2017 06:39
Еще перед инвестицией интересовались часным сектором, сразу предупредили что там неадекват живет который постоянно всем недоволен и продает свою землю за миллионы)
fordok
f
Новичок
12
29 июля 2016
05 июль 2017 08:30
Цитата "atemi":
По фамилии и инициалам на проулке Рощинском проживает один из 4-х истцов судебного дела. Руденко там не засвечен (ну, я пока не нашел), а по самому району с такой фамилией людей много.
В общем, факты давайте, нечего голословить.
да е-мое, больше заняться нечем как выискивать адреса) что он из частного сектора было сказано здесь же на форуме. Плюс если зайти на fb страницу - то есть фото из частного сектора. По большому счету не суть - из частного сектора или из многоэтажек поблизости. В любом случае человек недоволен стройкой и всячески пытается помешать ей. В данном случае строча героические опусы о спасении всех жителей. atemi - а вы регулярно выступаете его рупором здесь на форуме. Я уверен, что вышеобозначенный гражданин довольно потирает свои руденковские рученки при этом )
Недовольные стройкой всегда будут. Никуда от этого не деться
atemi
a
Пользователь
39
11 сентября 2016
05 июль 2017 21:30
Цитата "fordok":Я уверен, что вышеобозначенный гражданин довольно потирает свои руденковские рученки при этом )
Ну конечно, такой вот коварный сидит и радеет. Не хочу так относиться к людям - и так много плохого о людях думал. Не чувствую злобы к этим активистам. Просто хочу знать реальное положение дел с этим строительством, коллекторами, болотистостью, организацией водостоков в этой, относительно, "яме" и т.д. Истории получения разрешительной документации для меня на втором плане (ну конечно, если они не станут камнем преткновения успешного завершения проекта для всех финансово учавствующих лиц).
Rellenna
R
Новичок
6
31 января 2017
08 июль 2017 21:17
Я вот тоже немного волнуюсь по поводу такой информации. Мы уже инвестировали. А в плесени жить не хочется( хотелось бы официального опровержения все таки...
Круглякова
К
Гость
2
09 июля 2017
09 июль 2017 18:35
По этой стройке возбуждено уголовное дело в городской прокуратуре, в двух судах два "позова" на нарушения с тем чтобы запретить ввод в эксплуатацию. Да и невооруженным глазом видно, что госты по осветлению и расстоянию между домами нарушены.Жильцам близлежащих домов по Рощинскому пер.и ул.Кубанськой ничего не предлагается, так что где будут парковаться жители 917 квартир? Построили на коллекторе,который собрал русло реки Мокрой,нарушили его и теперь жители на Липковского 37 а уже жалуются на сырость, а куда пойдет вода дальше? Спрашивайте у жителей близлежащих домов,они организовали инициативную группу.
DinHome
D
Пользователь
49
09 июля 2017
09 июль 2017 20:45
вот непонятно зачем вам запретить ввод в эксплуатацию? лишь бы погадить? дом то уже стоит.Цитата "Круглякова":По этой стройке возбуждено уголовное дело в городской прокуратуре, в двух судах два "позова" на нарушения с тем чтобы запретить ввод в эксплуатацию. Да и невооруженным глазом видно, что госты по осветлению и расстоянию между домами нарушены.Жильцам близлежащих домов по Рощинскому пер.и ул.Кубанськой ничего не предлагается, так что где будут парковаться жители 917 квартир? Построили на коллекторе,который собрал русло реки Мокрой,нарушили его и теперь жители на Липковского 37 а уже жалуются на сырость, а куда пойдет вода дальше? Спрашивайте у жителей близлежащих домов,они организовали инициативную группу.
Люди купили там квартиры, и уже много купили. Вам лучше договориться с Ковальской как благоустроить окружающий район по максимуму, а не заниматься вредительством, которое похоже на тупое вымогалово
Авторський канал ріелтора в Іспанії
Знайомтесь з Бенідормом, нерухомістю та стилем життя. Новобудови регіону, аналітика, інвестиції
Подробнее
- ЖК Family and Friends | 2 очередь | GEOS | Киев, ул. Новополевая, 225.03538
- ЖК Maxima Residence | РіЕЛ, Bosphorus Development | Київ, вул. Євгена Коновальця, 3025.032
- ЖК Урловский-1 | Киевгорстрой, bUdCapital | Киев, ул. Причальная, 1125.033 813
- ЖК Mirax | Київміськбуд, BudCapital | Київ, вул. Глубочицька, 4324.034 427
- ЖК Utlandia 2,3 | Tomin Family | Ирпень, ул. Украинская, 1-а,б24.03100
- ЖК Янтарный | Ирпень, ул. Соборная, 1г24.03100
- ЖК Irpin City | Molodist | Ирпень, ул. Университетская, 124.035 276
- ЖК Новопечерские Липки | City One Development, UDP | Киев, ул. Андрея Верхогляда (Драгомирова)24.03263
- ЖК Синергія Сіті | Ірпінь, вул. О. Кобилянської, пров. Озерний21.03227
- ЖК Star City | Стар Сити | bUdCapital, Київміськбуд | Киев, ул. Каунасcкая, 2721.03486
- Стоит ли сейчас покупать недвижимость?15.035 027
- Rivne Invest Forum у Рівному — дводенна подія04.031
- Нужны или не нужны риэлторы? Не понимаю!03.021 503
- Lviv Build Forum | Декілька слів з власного досвіду30.011
- Планирую аренду квартиры в районе Подола27.014
- Купівля квартири в новобудові коли сусудні квартири не будуть заселені16.012
- Двоповерхові квартири в новобудовах, переваги та недоліки, враження?30.1213
- Походження грошей на купівлю квартири при її продажу27.126
- Застройщик предлагает только дарственную вместо купли-продажи. Насколько это популярно?23.1210
- Пруд на даче20.0221
- Отзывы о кондиционерах. Какой кондиционер лучше19.02281
- Болит спина11.0274
- Выбор ноутбука. Отзывы о ноутбуках24.0180
- Постройка бани20.1218
- Кухонные столешницы. Отзывы о практичных и неубиваемых вариантах13.11111
- Где найти качественные полотенца?04.092
- Орхидеи. Как ухаживать за орхидеями29.0818
- Выбор пылесоса. Отзывы о ваших пылесосах26.0866
- Апарт-комплекс Тиса Renovation | Ужгород. вул. Сергія Мартина, 429.013
- Львів, вул. Бережанська, 54 | Інтергал-Буд26.0133
- ЖК Grand Palace | Хмельницький, вул. Подільська, 11521.0116
- ЖК Sakura | Свалява, пров. Достоєвського, 418.016
- Львів, вул. Трускавецька | Галжитлобуд11.016
- ЖК Lazur Sky | Львів, вул. Зелена, 115д02.013
- Как не снимая старую эмаль покрасить сверху акриловой (латексной) краской?17.033
- Выбираю акриловую краску17.0320
- Выбираю краску по металлу. Поделитесь советом и опытом17.032
- Какую выбрать грунтовку и шпатлевку17.0314
- Диммерний блок для сценічних софітів постійно вимикається14.033
- Установка насоса для решения проблем с водой07.039
- Отклеилась краска вместе с малярной лентой. В чем проблема?25.0215
- Шпаклевка трескается под обоями25.022
- Плесень на стене - как с этим бороться25.0264
- Продаж 1-кімнатна Квартира Ірпінь , ЖК Молодість, вул. Соборна 2К/2525.032
- Клиника урологии в Николаеве02.031
- Мебельная фурнитура, скидки производителям мебели18.021
- Мебель под заказ | Объявления об изготовлении мебели18.02100
- Клінінг Київ: професійне прибирання від Partner Clean (20+ років досвіду)10.021
- Как можно избавиться от запаха сигарет в квартире?01.025
- Как удалить различные пятна с пола из ламината23.0115
- Как вернуть хороший вид деревянной посуде14.014
- Уборка квартиры при помощи натуральных средств07.0145
Купуй квартиру на Domik.ua
Широкий вибір квартир від власників, забудовників та ріелторів
Подробнее