ЖК Грюнвальд | УСК | ул. Клавдиевская, 40
Застройщик | Украинская строительная компания |
Сдача ЖК | 2012 - 2022 г. |
Планировки | от 25 550 Грн/м² |
Ваше общее впечатление об Объекте и Компании:
Можно выбрать 1 вариант ответа. Можно менять ответы. Всего голосов: 240.
47/20% | ||
32/13% | ||
78/33% | ||
47/20% | ||
36/15% |
alt402
a
Старожил
516
12 декабря 2015
08 июль 2016 12:44
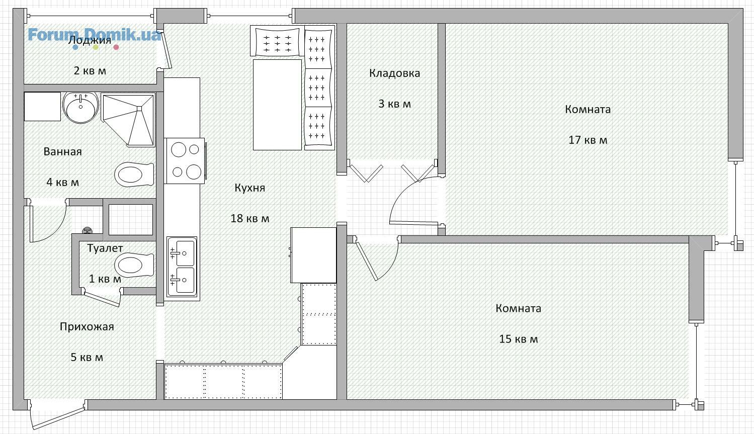
Цитата "Vpoiske920186":В большой комнате при входе слева отделяете гардеробную (шириной мин. 1,2 м), дверь в большую комнату переносите вперед. Получаете коридорчик, из которого организуете три двери - прямо в большую комнату, налево в гардеробную, направо в маленькую комнату. Гардеробная там, где на плане квартиры 67 кв. м на сайте Грю стоит кроватьПри желании вход в гардеробную можно сделать и из большой комнаты.
Я так понимаю, что речь примерно о таком варианте?
Olga инвестор 7-33
Oи
Пользователь
90
13 августа 2015
08 июль 2016 13:31
Цитата "Alexandr-one":
Для кого интересно. 14000 грн/м2 это на квартиры на 2-м этажей в 9 очереди (этаж над коммерческими помещениями). Единственный недостаток - это возможно в первое время холодный пол, пока коммерческие снизу не выкупят. Предложение реально очень выгодное, сейчас каждый бронирует и ищет деньги так как эта цена при 100% оплате. Квартиры метраж 37, 46, 67м2.
Есть аналогичные предложения немного подороже в 7 очереди. Звоните Лилии Викторовне для консультаций.
Добрый день! Александр, вы не ответили на мой вопрос! Откуда информация, что уже пускают на ремонты? Спасибо!
wipe007

Ветеран
1 946
18 сентября 2014
08 июль 2016 13:42
Лилия викторовне дозвониться не могу.Дозвонилась по какому-то номеру.вот предложили 46м.Хотели 37м.вроде нет уже.46м получается 644т.а в 7 очереди предложили 37 м за 647т.Єто вообще-то и недешево.Предложения такие по городу есть.Но так хотелось здесь...Цитата "Alexandr-one":
Для кого интересно. 14000 грн/м2 это на квартиры на 2-м этажей в 9 очереди (этаж над коммерческими помещениями). Единственный недостаток - это возможно в первое время холодный пол, пока коммерческие снизу не выкупят. Предложение реально очень выгодное, сейчас каждый бронирует и ищет деньги так как эта цена при 100% оплате. Квартиры метраж 37, 46, 67м2.
Есть аналогичные предложения немного подороже в 7 очереди. Звоните Лилии Викторовне для консультаций.
Vpoiske920186
V
Постоянный пользователь
160
28 апреля 2016
08 июль 2016 13:48
Я так понимаю, что речь примерно о таком варианте?[/quote]
Да, только лоджия присоединяется, ванна делается уже и длиннее, вдоль стены с ванной в нишу 30 см ставится рабочая линейка кухни, под окном - столик, в углу при входе в "студию" диван, на стене между "студией" и туалетом - телевизор.
Да, только лоджия присоединяется, ванна делается уже и длиннее, вдоль стены с ванной в нишу 30 см ставится рабочая линейка кухни, под окном - столик, в углу при входе в "студию" диван, на стене между "студией" и туалетом - телевизор.
Хоп
Х
Постоянный пользователь
400
15 сентября 2015
08 июль 2016 14:05
у вас есть чертеж или набросок, а-то углубления в ванную комнату мне непонятны, там вентиляционная шахта + канализация = не вижу профита. Кроме того, слишком маленькая кухонная рабочая панель ну и главный вопрос куда холодильник пихать?
Sergey-7-31
S
Постоянный пользователь
495
26 марта 2016
08 июль 2016 14:10
Цитата "wipe007":Лилия викторовне дозвониться не могу.Дозвонилась по какому-то номеру.вот предложили 46м.Хотели 37м.вроде нет уже.46м получается 644т.а в 7 очереди предложили 37 м за 647т.Єто вообще-то и недешево.Предложения такие по городу есть.Но так хотелось здесь...
46 м сильно интереснее чем 37. Вы когда вживую зайдете в эти квартиры, то разницу почувствуете сильнее чем на плане. Так что я бы, будь на Вашем месте, смотрел бы на 9 очередь а не на 7-ю. Но что касается аналогичных предложений, то толковых предложений за эти деньги в практически готовом доме не так и много. Но другое дело, что разница с квартирами на более высоких этажах не такая и большая - если это Вы назвали цену за 2 этаж.
wipe007

Ветеран
1 946
18 сентября 2014
08 июль 2016 14:27
46м на 1ом эт. а 37м за 647т нна 10м
alt402
a
Старожил
516
12 декабря 2015
08 июль 2016 14:46
Цитата "Vpoiske920186":Да, только лоджия присоединяется, ванна делается уже и длиннее, вдоль стены с ванной в нишу 30 см ставится рабочая линейка кухни, под окном - столик, в углу при входе в "студию" диван, на стене между "студией" и туалетом - телевизор.
Не понял, куда именно телевизор девать. Состряпал так. Поправляйте, сейчас чего-нибудь нарисуем

AlexUnder

Старожил
794
20 октября 2014
08 июль 2016 15:06
Цитата "alt402":
Не понял, куда именно телевизор девать. Состряпал так. Поправляйте, сейчас чего-нибудь нарисуем
Моё мнение по поводу данной схемы:
1. Телевизоры должны быть в каждой комнате и на кухне (или в гостевой зоне).
2. Проходная кухня - это не совсем удобно. Запахи будут разноситься по всем закуткам квартиры.
3. Странный узкий коридорчик в ванную окажется пустой тратой пространства.
4. Я бы расширил комнату за счёт кладовки. Также увеличил бы прихожую за счёт нефункциональной "зоны отдыха" на кухне, добавив туда небольшую кладовку.
Хоп
Х
Постоянный пользователь
400
15 сентября 2015
08 июль 2016 15:15
AlexUnder, фуфуфу, телевизоры - зло
Так что одного чуть более чем достаточно. Запахи на самом деле не сильно волнуют, все таки вытяжка + двери в комнаты + окно, скорее всего решат данную проблему. Но в таком варианте все еще слишком маленькая рабочая зона на кухне, и отсутствие балкона... так как в свзязи с гардеробной, отрезать кусок большой комнаты под лоджию не представляется возможным.

Alexandr-one
A
Ветеран
1 545
11 июня 2014
08 июль 2016 16:18
Цитата "Olga инвестор 7-33":
Добрый день! Александр, вы не ответили на мой вопрос! Откуда информация, что уже пускают на ремонты? Спасибо!
Контакты Наиальи Васильевны на официальном сайте. Звоните, записывайтесь.
Alexandr-one
A
Ветеран
1 545
11 июня 2014
08 июль 2016 16:38
Работы по благоустройству
sonar4ik

Постоянный пользователь
308
09 апреля 2014
08 июль 2016 16:43
Добрый день, Александр.Цитата "Alexandr-one":
Контакты Наиальи Васильевны на официальном сайте. Звоните, записывайтесь.
Был сегодня на 7й очереди - печалька ((
Когда фасад доделаете? Ждете осени, дождей?
Подход со стороны леса перекопали - снова допуск к ремонтам будет откладываться?
При таком состоянии дома весьма сомнительно, что выдадут сертификат о вводе дома в эксплуатацию. Просьба предоставить фото копию документа о том, что документы на ввод дома в эксплуатацию поданы в соответствующие органы.
Есть подозрение, что это очередная дата переноса сдачи дома. Подкрепите ваши слова какой то бумажкой, будьте так любезны.
wipe007

Ветеран
1 946
18 сентября 2014
08 июль 2016 16:47
Александр.а случайно нет фото куда выходит 46 м и на сколько далеко там паркинг от окон.Я понимаю так.что за 2-3 метра от окон начинается крыша паркинга?а в промежутке будет проход?
alt402
a
Старожил
516
12 декабря 2015
08 июль 2016 17:07
Цитата "sonar4ik":При таком состоянии дома весьма сомнительно, что выдадут сертификат о вводе дома в эксплуатацию. Просьба предоставить фото копию документа о том, что документы на ввод дома в эксплуатацию поданы в соответствующие органы.
А смысл? Подать можно что угодно, но это же никак не гарантирует, что дом примут в эксплуатацию

ЗЫ. На сайте 7-я очередь все еще "сдается" в 1 квартале, хотя 8-ю обновили. Странный сайт какой-то, вернее отношение застройщика к сайту.
sonar4ik

Постоянный пользователь
308
09 апреля 2014
08 июль 2016 17:11
Цитата "alt402":
А смысл? Подать можно что угодно, но это же никак не гарантирует, что дом примут в эксплуатацию
ЗЫ. На сайте 7-я очередь все еще "сдается" в 1 квартале, хотя 8-ю обновили. Странный сайт какой-то, вернее отношение застройщика к сайту.
На сайте информация обновляется руками, а не автоматически, основываясь по состоянию стройки.
Забили просто.
Olga инвестор 7-33
Oи
Пользователь
90
13 августа 2015
08 июль 2016 19:11
Цитата "Alexandr-one":
Контакты Наиальи Васильевны на официальном сайте. Звоните, записывайтесь.
Я уже записывалась и ключи на руках. Но "пускают на ремонты", как вы написали, и получить ключи - это разные вещи.
wipe007

Ветеран
1 946
18 сентября 2014
09 июль 2016 07:54
до скольки сегодня отдел продаж?И пустят ли в субботу посмотреть?
Sergey-7-31
S
Постоянный пользователь
495
26 марта 2016
09 июль 2016 09:51
Цитата "wipe007":до скольки сегодня отдел продаж?И пустят ли в субботу посмотреть?
Сегодня семья из 3-х человек ходила смотреть какую-то квартиру, значит пускают.
Falkor
F
Ветеран
1 463
29 марта 2014
09 июль 2016 09:56
Пускают и ремонт уже делают пару квартир )

Авторський канал ріелтора в Іспанії
Знайомтесь з Бенідормом, нерухомістю та стилем життя. Новобудови регіону, аналітика, інвестиції
Подробнее
- ЖК Урловский-1 | Киевгорстрой, bUdCapital | Киев, ул. Причальная, 1121.103 797
- Будинок на Вавилових | Ковальська | Київ, вул. Вавилових, 9-1120.10116
- ЖК Київські Зорі 2 | Оникс Билд | Вышгород, ул. Кургузова, 1-б20.105
- Житловий квартал Еврика | Київ, вул. Академика Глушкова19.1022 491
- ЖК Chehov Парк Квартал | Чехов | Орлан Инвест | Ирпень, ул. Чехова, 2718.103 429
- ЖК "Захисник", ул. Бориспольская, 1916.107
- ЖК Wood Park 1,2 | Вуд Парк| Киев, ул. Радистов, 18, 2416.1039
- ЖК Poetica, 1-я коллекция | Поэтика | ENSO | ул. Дегтяревская, 25а15.103 099
- ЖК на пр. Отрадный 2, Киев | Житлоінвестбуд-УКБ13.1010 304
- ЖК "ObolonSKY", пр. Оболонский, 1 - МЖК "Оболонь"12.10552
- Стоит ли сейчас покупать недвижимость?10.104 714
- Чи варто купити будинок в спокійному регіоні, в Вінниці?17.092
- Завышеные тарифы на отопление. Как обжаловать и куда писать?19.082
- Ипотека от Банков с лучшими условиями | Обсуждение кредитов под залог недвижимости13.08192
- Краудфандинг - типы группового инвестирования01.083
- Планирую аренду квартиры в районе Подола30.073
- Про агентство Атлант-А23.0722
- Допоможіть розібратись з податками08.053
- Дно рынка недвижимости и влияющие факторы31.0315 244
- Где найти качественные полотенца?04.092
- Орхидеи. Как ухаживать за орхидеями29.0818
- Выбор пылесоса. Отзывы о ваших пылесосах26.0866
- Отзывы об ортопедических матрацах. Матрасы для комфортного сна22.0891
- Болит спина07.0873
- Какую выбрать мебель на террасу?04.084
- Стоит ли покупать кофе-машину13.07154
- Декоративные элементы в интерьере. Советы и отзывы о их сочетании12.0716
- Декор окна без штор, варианты и советы12.0746
- ЖК Kandinsky Odessa Residence | Кандинский | Одесса, Французский бульвар, 63/6515.10182
- ЖК Дом у моря | Югінвест | Южный, ул. Иванова10.1017
- ЖК Sakura | Свалява, пров. Достоєвського, 404.105
- ЖК Імперіал Парк Авеню | Імперіал Буд | Чернівці, вул. Рівненська, 718.084
- ЖК Manhattan | Blago developer | Івано-Франківськ, вул. Романа Левицького, вул. Ленкавського04.0815
- ЖК Зелений двір | Спілка забудівників | Івано-Франківськ, вул. Тисменицька04.089
- Яка реальна ціна чорнових робіт в 2025 для будинку08.101
- Хто планує поїхати на будівельний форум у Львові цього вересня?01.093
- Тёплый пол, отзывы и советы28.08205
- Крыша потекла, что делать?25.0818
- Перепланировка | тема просьб и советов по конкретным ситуациям19.082 216
- Материал многоквартирного дома новостройки. Какой лучше?13.0812
- Климатическое оборудование норвежской ТМ Bergen07.082
- Как можно прочистить или улучшить вентиляцию в квартире?06.086
- Пол на кухне – ламинат или плитка?30.0720
- Пошук обладнання для магазину21.101
- Как отвечать на How are You?04.102
- Что подарить мужчине?24.09351
- Мій сайт не з'являється в результатах пошуку20.093
- Домик для кота26.085
- Тренажер в доме. Какой выбрать24.0817
- Мебель под заказ | Объявления об изготовлении мебели18.0899
- Как уберечь холодильник от перепадов напряжения09.0810
- Пол, тёплый пол, паркет, ламинат, плитка. Продажа напольных покрытий26.0728

Купуй квартиру на Domik.ua
Широкий вибір квартир від власників, забудовників та ріелторів
Подробнее