Перепланування | прохання та поради щодо конкретних ситуацій
Paln
P
Новачок
20
01 липня 2018
25 лип 2018 18:01
Ребята, помогите с перепланировкой. Хотим из большой гостинной сделать отдельно спальню и кухню-студию. Но как-то не очень лепится.
Blagon
B
Гість
3
29 квітня 2018
26 лип 2018 13:08
День добрый, двушка в кирпичном доме,хотим увеличить комнату за счет балкона т.к. спальня маленькая, вот пришла идея выбить стену оставив по метру с обоих сторон.Разрешают ли сейчас такие перепланировки ?И можно ли будет поставить дополнительную секцию батерии?
Может у вас есть какие идеи еще что можно придумать с таким большим балконом.
Может у вас есть какие идеи еще что можно придумать с таким большим балконом.
demon_new
d
Гість
3
13 червня 2018
26 лип 2018 13:34
Цитата "yalynka":
ви можете прибрати стіну біля кухні та поставити шкаф на дві сторони, як на фото)) функціональна річ дуже)) розмір кімнат у вас чудовий, я б не робила з ним нічого))
Дякую )
nata1701
n
Новачок
6
24 квітня 2018
01 серп 2018 05:55
Даборый день.
Очень нужен совет. Собираемся обьеденить кухную с комнатой. Есть очень большой нюанс: на кухне установлен двухконтурный газовый котел и газовая плита, что запращает обьеденения кухни с жилой комнатой.
Но если между комнатой и кухней поставить стеклянные раздвежные двери, это поможет ситуации? можно ли в аком случае делать обьеденение?
Спасибо
Очень нужен совет. Собираемся обьеденить кухную с комнатой. Есть очень большой нюанс: на кухне установлен двухконтурный газовый котел и газовая плита, что запращает обьеденения кухни с жилой комнатой.
Но если между комнатой и кухней поставить стеклянные раздвежные двери, это поможет ситуации? можно ли в аком случае делать обьеденение?
Спасибо
TOA1204
T
Гість
5
03 серпня 2018
03 серп 2018 11:46
Добрый день. Помогите, пожалуйста, с идеями перепланировки однокомнатной квартиры. Хотелось бы разместить кровать и гостевую зону. Будет жить один человек.
imAlex
i
Постійний користувач
256
25 вересня 2017
03 серп 2018 12:14
Цитата "TOA1204":Добрый день. Помогите, пожалуйста, с идеями перепланировки однокомнатной квартиры. Хотелось бы разместить кровать и гостевую зону. Будет жить один человек.
Убрать стенку на кухне (там где дверь) и сделать небольшую кухню и возле окна жилую зону. Ну или переместить кухню с жилой зоной возле туалета.
TOA1204
T
Гість
5
03 серпня 2018
03 серп 2018 14:01
Цитата "imAlex":
Убрать стенку на кухне (там где дверь) и сделать небольшую кухню и возле окна жилую зону. Ну или переместить кухню с жилой зоной возле туалета.
Забыла уточнить: в квартире автономное отопление, возле окна на кухне - котел + труба к газовой плите.
koks83
k
Користувач
22
03 квітня 2018
13 серп 2018 01:12
Я бы сделал вот так.
TOA1204
T
Гість
5
03 серпня 2018
14 серп 2018 12:03
Спасибо за интересные идеи
dacha_rus
d
Ветеран
3 582
16 січня 2015
17 серп 2018 10:39
отдельное спальное место (которое легко спрятать/обыграть), гардеробная, и дверь в су должна открываться наружу - по тб.
TOA1204
T
Гість
5
03 серпня 2018
18 серп 2018 06:37
Большое спасибо за внимание к моему вопросу и предложенные идеи. Как Вы видите перегородку под спальное место: из гипсокартона в потолок или в человеческий рост, или может быть сделать перегородку из стеклоблоков?
koks83
k
Користувач
22
03 квітня 2018
18 серп 2018 22:49
Если дом монолитный и квартиру делать для себя , я бы сделал перегородку от пола до потолка с двойного гипсокартона с утеплителем спальное помещение потолок стены и пол шумоизолировал .
TOA1204
T
Гість
5
03 серпня 2018
20 серп 2018 10:14
спасибо за совет
Снежка11
С
Гість
3
20 серпня 2018
21 серп 2018 16:00
Здравствуйте, подскажите, пожалуйста, что интересного и удобного можно сделать в такой распашонке в зоне кухня-гостиная - коридор? Пока решили коридор разделить раздвижной перегородкой и получить как бы зону приватную в квартире, где комнаты. А что дальше? Стоит ли сносить стену или часть между кухней и коридором? и где лучше расположить кухонный гарнитур и диван? Также хотелось бы зону кухонного гарнитура отделить барной стойкой.
Снежка11
С
Гість
3
20 серпня 2018
21 серп 2018 17:57
забыла добавить, что в кухне балконный блок убрали
Oalexis
O
Користувач
70
31 липня 2018
21 серп 2018 20:39
Цитата "Снежка11":Здравствуйте, подскажите, пожалуйста, что интересного и удобного можно сделать в такой распашонке в зоне кухня-гостиная - коридор? Пока решили коридор разделить раздвижной перегородкой и получить как бы зону приватную в квартире, где комнаты. А что дальше? Стоит ли сносить стену или часть между кухней и коридором? и где лучше расположить кухонный гарнитур и диван? Также хотелось бы зону кухонного гарнитура отделить барной стойкой.
Відповідь залежить від того, який склад проживаючих планується: скільки людей, чи є діти, якого віку та статі?
Снежка11
С
Гість
3
20 серпня 2018
21 серп 2018 21:26
Цитата "Oalexis":
Відповідь залежить від того, який склад проживаючих планується: скільки людей, чи є діти, якого віку та статі?
Проживающие - жена с мужем, 2 детей-мальчики, студент и школьник.
Nalvinka2018
N
Новачок
7
15 лютого 2018
23 серп 2018 20:43
Доброй ночи! Прошу Вашей помощи) квартира 41 квадрат, большой коридор- 9 квадратов. Что можно придумать? Семья-двое взрослых и маленький ребёнок. Пока вариант только один- сделать арку в стенке ( забрать место в коридоре) и там облагородить детский уголок или поставить небольшой диван, а стенку перенести и немного укоротить коридор. Коридор большой и широкий.
koks83
k
Користувач
22
03 квітня 2018
24 серп 2018 01:19
Якщо можливо з'єднати балкон з кімнатою .
BeeKeeper
Постійний користувач
106
20 грудня 2015
27 серп 2018 15:40
Доброго дня.
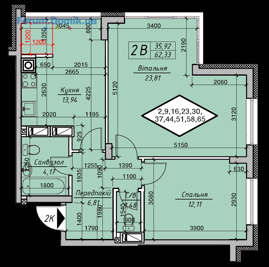
Є такий план від забудовника (фото 3), та мої перші спроби зобразити це у програмі Visio (фото 2).
Поки що спробував "перенести" перестінки (товщина 80 мм) і змонтувати інші, трохи у іншій геометрії.
Фото 1 - саме моя спроба перепланування. Хотів би почути критику відносно таких змін. Плюси, мінуси. Буду вдячний за будь-які поради та зауваження.
P.S. Більше розмірів зможу забразити на кресленні лише завтра, після більш детальних замірів у квартирі.
P.S.S. Чи можливо тут на форумі домовитись зобразити мою "творчість" у 3D візуалізації?
Є такий план від забудовника (фото 3), та мої перші спроби зобразити це у програмі Visio (фото 2).
Поки що спробував "перенести" перестінки (товщина 80 мм) і змонтувати інші, трохи у іншій геометрії.
Фото 1 - саме моя спроба перепланування. Хотів би почути критику відносно таких змін. Плюси, мінуси. Буду вдячний за будь-які поради та зауваження.
P.S. Більше розмірів зможу забразити на кресленні лише завтра, після більш детальних замірів у квартирі.
P.S.S. Чи можливо тут на форумі домовитись зобразити мою "творчість" у 3D візуалізації?
Авторський канал ріелтора в Іспанії
Знайомтесь з Бенідормом, нерухомістю та стилем життя. Новобудови регіону, аналітика, інвестиції
Детальніше
- ЖК Poetica, 1-я коллекция | Поэтика | ENSO | ул. Дегтяревская, 25а27.033 124
- ЖК Зіркова Вежа | Элит-Фасад Групп | Вишгород, вул. Шолуденка, 2626.03415
- ЖК Diadans | Диаданс | ENSO | ул. Евгения Коновальца26.03273
- ЖК Paradise Avenue | ZIM Group | Крюківщина, вул. Чорновола26.032 505
- ЖК Fjord | ENSO | Київ, Військовий проїзд, 826.03161
- ЖК Family and Friends | 2 черга | GEOS | Київ, вул. Новопольова, 225.03537
- ЖК Maxima Residence | РіЕЛ, Bosphorus Development | Київ, вул. Євгена Коновальця, 3025.032
- ЖК Урлівський-1 | Київміськбуд, BudCapital | Київ, вул. Причальна, 1125.033 813
- ЖК Mirax | Київміськбуд, BudCapital | Київ, вул. Глубочицька, 4324.034 427
- ЖК Utlandia 2,3 | Tomin Family | Ірпінь, вул. Українська, 1-а,б24.03100
- Чи варто зараз купувати нерухомість?15.035 027
- Rivne Invest Forum у Рівному — дводенна подія04.031
- Нужны или не нужны риэлторы? Не понимаю!03.021 503
- Lviv Build Forum | Декілька слів з власного досвіду30.011
- Планую оренду квартири в районі Подолу27.014
- Купівля квартири в новобудові коли сусудні квартири не будуть заселені16.012
- Двоповерхові квартири в новобудовах, переваги та недоліки, враження?30.1213
- Походження грошей на купівлю квартири при її продажу27.126
- Застройщик предлагает только дарственную вместо купли-продажи. Насколько это популярно?23.1210
- Пруд на даче20.0221
- Отзывы о кондиционерах. Какой кондиционер лучше19.02281
- Болит спина11.0274
- Выбор ноутбука. Отзывы о ноутбуках24.0180
- Постройка бани20.1218
- Кухонные столешницы. Отзывы о практичных и неубиваемых вариантах13.11111
- Где найти качественные полотенца?04.092
- Орхидеи. Как ухаживать за орхидеями29.0818
- Выбор пылесоса. Отзывы о ваших пылесосах26.0866
- Апарт-комплекс Тиса Renovation | Ужгород. вул. Сергія Мартина, 429.013
- Львів, вул. Бережанська, 54 | Інтергал-Буд26.0133
- ЖК Grand Palace | Хмельницький, вул. Подільська, 11521.0116
- ЖК Sakura | Свалява, пров. Достоєвського, 418.016
- Львів, вул. Трускавецька | Галжитлобуд11.016
- ЖК Lazur Sky | Львів, вул. Зелена, 115д02.013
- Как не снимая старую эмаль покрасить сверху акриловой (латексной) краской?17.033
- Выбираю акриловую краску17.0320
- Выбираю краску по металлу. Поделитесь советом и опытом17.032
- Какую выбрать грунтовку и шпатлевку17.0314
- Диммерний блок для сценічних софітів постійно вимикається14.033
- Установка насоса для решения проблем с водой07.039
- Отклеилась краска вместе с малярной лентой. В чем проблема?25.0215
- Шпаклевка трескается под обоями25.022
- Плесень на стене - как с этим бороться25.0264
- Продаж 1-кімнатна Квартира Ірпінь , ЖК Молодість, вул. Соборна 2К/2525.031
- Клиника урологии в Николаеве02.031
- Мебельная фурнитура, скидки производителям мебели18.021
- Меблі на замовлення | Оголошення про виготовлення меблів18.02100
- Клінінг Київ: професійне прибирання від Partner Clean (20+ років досвіду)10.021
- Как можно избавиться от запаха сигарет в квартире?01.025
- Как удалить различные пятна с пола из ламината23.0115
- Как вернуть хороший вид деревянной посуде14.014
- Уборка квартиры при помощи натуральных средств07.0145
Авторський канал ріелтора в Іспанії
Знайомтесь з Бенідормом, нерухомістю та стилем життя. Новобудови регіону, аналітика, інвестиції
Детальніше