ЖК Олимпийский | Атлант | Бровары, ул. Олимпийская
| Застройщик | АТЛАНТ |
| Сдача ЖК | 2015 - 2023 г. |
| Планировки | от 18 000 Грн/м² |
Ваше враження про цей проект:
Можно выбрать 1 вариант ответа. Можно менять ответы. Всего голосов: 108.
| 14/13% | ||
| 27/25% | ||
| 67/62% |
InvestorOlimp104
I
Постоянный пользователь
491
14 апреля 2017
01 сен 2017 07:45
Цитата "Luda21323":Всім привіт з будинку 1. Хочу запитати з приводу лічильника тепла в першому будинку. Чи є сусіди які вже встановили його? Куди звертатися? Яка ціна? Дехто з сусідів каже, що в цьому році немає смисла іх ставити, бо ще немає договору. Консєрж нічого не знає. Дякую.
Тут большое вопрос целесообразности его установки, учитывая что платёжки за тепла во втором доме в прошлом году были максимум 800 гривен. Если не ошибаюсь установка со счётчиком будет на уровне 7000 грн.
Саша56
С
Прохожий
1
31 августа 2017
01 сен 2017 08:19
Добрый день соседи!
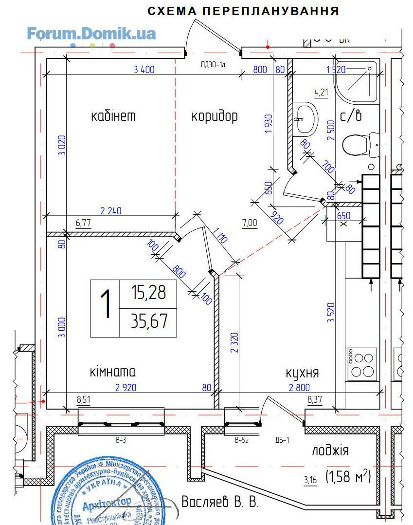
Вопрос к уже живущим и только заселяющимся. Тоже купила 1-к квартиру 35 кв.м в этом ЖК, с уже готовой перепланировкой как на картинке
.Полазив тут по форуму нашла еще вариант как можно сделать с отдельным местом для сна как на здесь
, вроде бы как хочется что бы кровать была спрятана от посторонних глаз. Может кто-то делал уже такой вариант перепланировки, как он выглядит в реальности, стена которую достраиваешь не давит, потому что квартира и так маленькая, а тут еще стена. Если есть возможность сделайте фото, или можно посмотреть в живую, могу зайти к Вам в гости
. А может кто-то подскажет вариант зонирования пространства как в нашем готовом варианте. Буду очень признательна. А то очень хочется начать делать ремонт, а с дизайном никак не определюсь.
Вопрос к уже живущим и только заселяющимся. Тоже купила 1-к квартиру 35 кв.м в этом ЖК, с уже готовой перепланировкой как на картинке
. А может кто-то подскажет вариант зонирования пространства как в нашем готовом варианте. Буду очень признательна. А то очень хочется начать делать ремонт, а с дизайном никак не определюсь.InvestorOlimp104
I
Постоянный пользователь
491
14 апреля 2017
01 сен 2017 09:32
Цитата "Саша56":Добрый день соседи!Вопрос к уже живущим и только заселяющимся. Тоже купила 1-к квартиру 35 кв.м в этом ЖК, с уже готовой перепланировкой как на картинке [attachment=2]1К - Д 7, 6, 5 (10).jpg[/attachment].Полазив тут по форуму нашла еще вариант как можно сделать с отдельным местом для сна как на здесь [attachment=1]1К - Д 7, 6, 5 (4).jpg[/attachment], вроде бы как хочется что бы кровать была спрятана от посторонних глаз. Может кто-то делал уже такой вариант перепланировки, как он выглядит в реальности, стена которую достраиваешь не давит, потому что квартира и так маленькая, а тут еще стена. Если есть возможность сделайте фото, или можно посмотреть в живую, могу зайти к Вам в гости
. А может кто-то подскажет вариант зонирования пространства как в нашем готовом варианте. Буду очень признательна. А то очень хочется начать делать ремонт, а с дизайном никак не определюсь.
Я бы советовал сделать так:
Devphp
D
Пользователь
70
24 февраля 2017
01 сен 2017 10:08
Цитата "Luda21323":Всім привіт з будинку 1. Хочу запитати з приводу лічильника тепла в першому будинку. Чи є сусіди які вже встановили його? Куди звертатися? Яка ціна? Дехто з сусідів каже, що в цьому році немає смисла іх ставити, бо ще немає договору. Консєрж нічого не знає. Дякую.
Я заключил договор с https://t-oblik.com/ на установку счетчика в июле, заплатил задаток. Пока еще не установили...
В июле цена для жителей 1-го дома была с их максимальной скидкой, за все работы по установке + бумажные работы - около 7000 грн.
Текущие цены можно узнать по телефонам с указанного выше сайта.
Думаю, что ставить счетчик смысл есть, особенно если этой зимой не собираетесь переезжать в квартиру, чтобы не платить за отопление всего дома.
Ksuxa-z
K
Пользователь
82
17 сентября 2016
01 сен 2017 11:12
Вопрос по межкомнатным дверям, кто что ставил или будет ставить? Пока смотрю на белорусские вроде качество/цена подходит может что то порекомендуете?[/quote]
Мы тоже планируем двери Белоруссии ставить ) знакомые хвалят
Мы тоже планируем двери Белоруссии ставить ) знакомые хвалят
Ksuxa-z
K
Пользователь
82
17 сентября 2016
01 сен 2017 11:20
Первый дом -соцопрос ) когда планируете переселяться? Мы в отопительный сезон уже хотим переезжать. Интересно, много нас уже народу будет?
Nata_8
Пользователь
82
02 июня 2016
01 сен 2017 11:26
Мы тоже где-то так планируем переезжать
, спрашивала у консьержки на этих выходных, говорит, что семей 30 уже живут 
, спрашивала у консьержки на этих выходных, говорит, что семей 30 уже живут 
InvestorOlimp104
I
Постоянный пользователь
491
14 апреля 2017
01 сен 2017 11:28
Так же планирую конец ноябрь.. сосед напротив мой уже живет
InvestorOlimp104
I
Постоянный пользователь
491
14 апреля 2017
01 сен 2017 11:31
Цитата "Ksuxa-z":Вопрос по межкомнатным дверям, кто что ставил или будет ставить? Пока смотрю на белорусские вроде качество/цена подходит может что то порекомендуете?
Мы тоже планируем двери Белоруссии ставить ) знакомые хвалят[/quote]
Тоже двери Белоруссии, микс венге, трогали их у них в магазине - огонь
Taras10
T
Постоянный пользователь
336
08 октября 2015
01 сен 2017 11:47
Цитата "Ksuxa-z":Первый дом -соцопрос ) когда планируете переселяться? Мы в отопительный сезон уже хотим переезжать. Интересно, много нас уже народу будет?
Думаю многие переедут к отопительному сезону ну к НГ
еще больше, и мы одни из тех... ))
Мисливець
М
Пользователь
45
28 февраля 2017
01 сен 2017 11:58
Кто как относится к собачищам в квартире?
Nata_8
Пользователь
82
02 июня 2016
01 сен 2017 11:59
Цитата "InvestorOlimp104":
Мы тоже планируем двери Белоруссии ставить ) знакомые хвалят
Тоже двери Белоруссии, микс венге, трогали их у них в магазине - огонь[/quote]
и сколько стоит одна дверь?
InvestorOlimp104
I
Постоянный пользователь
491
14 апреля 2017
01 сен 2017 12:02
Цитата "Мисливець":Кто как относится к собачищам в квартире?
Если она (соседская), будет меня в 7 утра будить в субботу, приду разговаривать... А вообще на вкус и цвет... Мне вон сотрудники тритона подарили... Живёт в офисе)))
InvestorOlimp104
I
Постоянный пользователь
491
14 апреля 2017
01 сен 2017 12:03
Цитата "Nata_8":
Тоже двери Белоруссии, микс венге, трогали их у них в магазине - огонь
и сколько стоит одна дверь?[/quote]
1980 дверь, комплект 3500
Ksuxa-z
K
Пользователь
82
17 сентября 2016
01 сен 2017 12:12
Цитата "Мисливець":Кто как относится к собачищам в квартире?
Нам все равно ) у нас ребенок в квартире ) больше волнует на улице выгул собак (не все хозяева убирают за ними, а дети бегают везде (((
Ksuxa-z
K
Пользователь
82
17 сентября 2016
01 сен 2017 12:16
Цитата "Nata_8":
и сколько стоит одна дверь?
Мы насмотрели за 4500 грн в комплекте. но там зависит от материала, эко-шпон дешевле.
Taras10
T
Постоянный пользователь
336
08 октября 2015
01 сен 2017 12:34
Цитата "Ksuxa-z":
Мы насмотрели за 4500 грн в комплекте. но там зависит от материала, эко-шпон дешевле.
На Анжио ихний магазин есть, помню само полотно вроде 2200 грн. которое смотрели, дальше петли, ручка, коробка, наличник + 500 грн. мастер, насчитали где то 4 тыс. за 1 двери (с установкой). Конечно цена будет зависеть от материала и фурнитуры.
Oleh_R
O
Новичок
10
01 сентября 2017
01 сен 2017 12:50
Форумчане, здравствуйте. Кто из Вас покупал квартиру на последнем 22 этаже? Поделитесь отзывами, плюсами и минусами. Спасибо
Reka2003
R
Пользователь
66
10 октября 2016
01 сен 2017 12:54
На Анжио и мы приценивались, насчитали 4500 грн с установкой.
Reka2003
R
Пользователь
66
10 октября 2016
01 сен 2017 13:27
Вчера еще раз пересмотрел освещение и таки да на все освещение идет заземляющий зелено-желтый провод. Был приятно удивлен что в ванной на каждую розетку идет отдельный кабель из розеточной коробки, плюс к этим розеткам подведен еще дополнительный провод тоже зелено-желтый для снятия статического электричества.
Авторський канал ріелтора в Іспанії
Знайомтесь з Бенідормом, нерухомістю та стилем життя. Новобудови регіону, аналітика, інвестиції
Подробнее
- ЖК Киевская Швейцария | ИнтерГал-Буд | ул. Макаровская, 316.1218
- Поиски в новостройках Киева. Подскажите варианты16.122 722
- ЖК Paradise Avenue | ZIM Group | Крюківщина, вул. Чорновола16.122 502
- МФК Intergal City | Інтергал Сіті | ІнтерГал-Буд | Київ, вул. Старонаводницька, 16-Б16.1263
- ЖК Абрикосовий | Київміськбуд | Київ, вул. Абрикосова, вул. Жулянська15.122 060
- ЖК Sense City | Prostir | Софіївська Борщагівка, вул. Соборна, 77а15.1227
- ЖК Отрада | Київміськбуд, bUdCapital | Київ, просп. Відрадний, 93/213.122 755
- ЖК Chalet | Standard Development | Київ, вул. Львівська, 18-б12.12123
- ЖК Family and Friends | 3 черга | GEOS | Київ, вул. Новопольова, 212.1224
- ЖК Family and Friends | 2 очередь | GEOS | Киев, ул. Новополевая, 212.12536
- Стоит ли сейчас покупать недвижимость?16.124 871
- Дно рынка недвижимости и влияющие факторы16.1115 264
- Різонність ціни за оренду квартири (12 тисяч гривень)13.111
- Додаткові розрахунки між орендодавцями та орендарями06.1127
- Чи варто купити будинок в спокійному регіоні, в Вінниці?17.092
- Завышеные тарифы на отопление. Как обжаловать и куда писать?19.082
- Ипотека от Банков с лучшими условиями | Обсуждение кредитов под залог недвижимости13.08192
- Краудфандинг - типы группового инвестирования01.083
- Планирую аренду квартиры в районе Подола30.073
- Кухонные столешницы. Отзывы о практичных и неубиваемых вариантах13.11111
- Отзывы о кондиционерах. Какой кондиционер лучше08.11278
- Где найти качественные полотенца?04.092
- Орхидеи. Как ухаживать за орхидеями29.0818
- Выбор пылесоса. Отзывы о ваших пылесосах26.0866
- Отзывы об ортопедических матрацах. Матрасы для комфортного сна22.0891
- Болит спина07.0873
- Какую выбрать мебель на террасу?04.084
- Стоит ли покупать кофе-машину13.07154
- ЖК Стандарт | Стандарт Буд | Полтава, вул. Великотирнівська, 9а04.128
- ЖК ARTVILLE | ZEZMAN | Одеса, Овідіопольська дорога02.1231
- Микрорайон на Лузановке | Одесса, Николаевская дорога | Консоль30.116
- Харьков, Проект "Consol Green City" - "Консоль"11.113
- ЖК Kandinsky Odessa Residence | Кандинский | Одесса, Французский бульвар, 63/6515.10182
- ЖК Дом у моря | Югінвест | Южный, ул. Иванова10.1017
- Канализация и водоснабжения - оценка работы замены труб17.121
- Перепланировка | тема просьб и советов по конкретным ситуациям09.122 217
- Подскажите, какие ворота на гараж лучше установить из современных?02.124
- Пол на кухне – ламинат или плитка?13.1121
- Пластиковые окна, какие лучше - поделитесь отзывами09.11241
- Кварц виниловая плитка LG Decotile или Berry Alloc29.106
- Напольные покрытия - чтобы было тепло, красиво и недорого29.1018
- Яка реальна ціна чорнових робіт в 2025 для будинку08.101
- Хто планує поїхати на будівельний форум у Львові цього вересня?01.093
- Електрична тепла підлога28.111
- Продам фонарик шокер ОСА 928 Power plus04.111
- Как отвечать на How are You?04.102
- Что подарить мужчине?24.09351
- Мій сайт не з'являється в результатах пошуку20.093
- Домик для кота26.085
- Тренажер в доме. Какой выбрать24.0817
- Мебель под заказ | Объявления об изготовлении мебели18.0899
- Как уберечь холодильник от перепадов напряжения09.0810
Авторський канал ріелтора в Іспанії
Знайомтесь з Бенідормом, нерухомістю та стилем життя. Новобудови регіону, аналітика, інвестиції
Подробнее