ЖК Галактика | Stolitsa Group | Киев, ул. Евгения Сверстюка (Марины Расковой), 4
| Застройщик | Stolitsa Group |
| Сдача ЖК | 2017 - 2021 г. |
| Планировки | от 25 000 Грн/м² |
Ваше общее впечатление об Объекте и Компании:
Можно выбрать 1 вариант ответа. Можно менять ответы. Всего голосов: 205.
| 19/9% | ||
| 13/6% | ||
| 38/19% | ||
| 66/32% | ||
| 69/34% |
GerMannia
G
Постоянный пользователь
126
18 января 2017
19 июнь 2019 06:41
Добрый день, спасибо всем за ответы по корзинам для кондиционеров. Если нельзя делать сток из кондиционеров на фасад, (также интересно узнать где написано, что это нельзя делать) то этот вопрос желательно обсудить как можно раньше, т.к насколько я поняла магистрали для кондиционеров закладываются в самом начале ремонта и потом это будет уже большая проблема, тем более если из-за кондиционеров придется переделывать систему канализации в квартирах.
Kate_Catbird
Новичок
6
19 июня 2019
19 июнь 2019 07:59
Вывод конденсата на улицу — это порча фасада. Читайте договор, пожалуйста. Штраф 10 тыс. дол. При ремонте квартиры сделать ещё одну штробу (или как это всё правильно называется?) для кондиционера — ничего не стоит (что по работе, что по деньгам). Я не понимаю, в чём может быть проблема и когда совок уйдёт из голов наших людей
Я проверила на всех планировках — это реально сделать. У нас трёшка на этаже 20+ и мы в каждой комнате ставим кондиционер с выводом конденсата в канализацию.
Я проверила на всех планировках — это реально сделать. У нас трёшка на этаже 20+ и мы в каждой комнате ставим кондиционер с выводом конденсата в канализацию.abakhtiozin
a
Новичок
17
14 мая 2017
19 июнь 2019 08:39
Цитата:Kate_Catbird » 19.06.2019 09:59: Я не понимаю, в чём может быть проблема и когда совок уйдёт из голов наших людейЯ проверила на всех планировках — это реально сделать.
Мне не понятно как это можно сделать в действительности, это вести трубы через всю квартиру к туалету или кухне от каждого блока? Я не со зла спрашиваю, просто интересно как такое реализовывать на практике. Хоть схему в пейинте скиньте
31std
Новичок
17
12 июня 2018
19 июнь 2019 09:13
Всем привет! Давно не читала форум.
Во-первых, всех соседей из Лиры поздравляю со сдачей дома
Замечательное событие, красивый дом.
Думаю, все будут благодарны за фото и лайфхаки при ремонте.
Во-вторых, по оплате доп. метров в Октанте и далее, я так понимаю, что цена будет не $1 000/ метр, а её половина (условно), т.к. у нас было 2 договора и только по одному из них будем платить (не хотелось бы платить вообще, конечно)
В-третьих, из последних сообщений: Я не хочу никого оскорблять, но очень прошу соседей не устраивать "совок", - нарушение фасада дома, пристройки царских балконов и тамбуров. Вы живёте в молодом, современном обществе, не устраивайте произвол и не уподобляйтесь пережиткам прошлого.
Очень хорошо, что в договорах за такое предусмотрен немалый штраф.
Во-первых, всех соседей из Лиры поздравляю со сдачей дома
Замечательное событие, красивый дом.
Думаю, все будут благодарны за фото и лайфхаки при ремонте.
Во-вторых, по оплате доп. метров в Октанте и далее, я так понимаю, что цена будет не $1 000/ метр, а её половина (условно), т.к. у нас было 2 договора и только по одному из них будем платить (не хотелось бы платить вообще, конечно)
В-третьих, из последних сообщений: Я не хочу никого оскорблять, но очень прошу соседей не устраивать "совок", - нарушение фасада дома, пристройки царских балконов и тамбуров. Вы живёте в молодом, современном обществе, не устраивайте произвол и не уподобляйтесь пережиткам прошлого.
Очень хорошо, что в договорах за такое предусмотрен немалый штраф.
Igolka1
I
Пользователь
57
28 апреля 2017
19 июнь 2019 09:17
У нас планировка 3с2, каким образом дотянуть трубку конденсата с двух комнат(кухня и маленькая комната - все просто)? Штроба в 10 метров, как-то не впечатляет. Какие еще есть варианты?
Ghosts
G
Пользователь
87
19 апреля 2019
19 июнь 2019 09:20
Добрый день) скажите, Вас предупреждали, что по Договору, до получения Права собственности, Вы не имеете права переносить стены, убирать лоджии, делать какие либо перепланировки? Только ремонт в рамка существущего техпаспорта?! Иначе штраф $ 10 000 и за свой счет приведение в первоначальный вид? Как Вы с этим собираетесь «бороться»?
GerMannia
G
Постоянный пользователь
126
18 января 2017
19 июнь 2019 10:04
Слава богу с выводом конденсата разобрались, спасибо за ответы, сразу на начальном этапе сделаю от двух кондиционеров выводы в канализацию. А как быть если я планировала делать систему рекуперации , два отверстия? Это получается тоже будет порча фасадов? То есть это невозможно?Насколько я знаю данные системы очень распространены в мире,позволяют не открывать окна, постоянный доступ свежего воздуха и отсутствие пыли и насекомых. Вот пример бюджетной системы такого типа https://bt.rozetka.com.ua/33491167/p33491167/. Давайте этот вопрос тоже уточним.
Kate_Catbird
Новичок
6
19 июня 2019
19 июнь 2019 11:07
Кондиционер можно разместить поближе к санузлам. Например, стена на которой расположена дверь или где-то недалеко от неё.
Kate_Catbird
Новичок
6
19 июня 2019
19 июнь 2019 11:11
Я звонила в отдел продаж и они сказали, что рекуператор ставить можно. Главное, чтобы крышка была такого же цвета, как фасад (покрасить можно самому без проблем).
По поводу штрафа и перепланировок — штраф только за порчу фасада. Внутри квартиры вы имеете право делать всё, что пожелаете (кроме перемещения мокрых зон).
По поводу штрафа и перепланировок — штраф только за порчу фасада. Внутри квартиры вы имеете право делать всё, что пожелаете (кроме перемещения мокрых зон).
Kate_Catbird
Новичок
6
19 июня 2019
19 июнь 2019 11:16
3С2 в каком доме? Они с разной планировкой в разных домах.
Серж
Постоянный пользователь
127
20 февраля 2006
19 июнь 2019 12:40
Цитата "Kate_Catbird":Вывод конденсата на улицу — это порча фасада. Читайте договор, пожалуйста. Штраф 10 тыс. дол. При ремонте квартиры сделать ещё одну штробу (или как это всё правильно называется?) для кондиционера — ничего не стоит (что по работе, что по деньгам). Я не понимаю, в чём может быть проблема и когда совок уйдёт из голов наших людейЯ проверила на всех планировках — это реально сделать. У нас трёшка на этаже 20+ и мы в каждой комнате ставим кондиционер с выводом конденсата в канализацию.
А с чего вы взяли, что вывод дренажа это порча фасада? При монтаже кондера в фасаде все равно будет делаться отверстие для трассы, в этом отверстии и будет дренаж наружу. Штрафные санкции предусмотрены за монтаж кондера в неположенном месте, допустим мимо корзины, с этим я с вами согласен.
Forbestkids
F
Пользователь
80
15 мая 2017
19 июнь 2019 12:56
А есть первые счастливчики кому уже позвонили с Жека? А то теперь новую дату озвучили в отделе продаж, 24 июня, вот интересно кому то уже назначили на эту дату ?
Серж
Постоянный пользователь
127
20 февраля 2006
19 июнь 2019 13:03
Цитата "Ghosts":Добрый день) скажите, Вас предупреждали, что по Договору, до получения Права собственности, Вы не имеете права переносить стены, убирать лоджии, делать какие либо перепланировки? Только ремонт в рамка существущего техпаспорта?! Иначе штраф $ 10 000 и за свой счет приведение в первоначальный вид? Как Вы с этим собираетесь «бороться»?
Я лично не как не собираюсь с этим бороться. Потому что переносить стены, убирать лоджии, делать какие либо перепланировки, не планирую.
Bobosta
B
Пользователь
87
05 апреля 2016
19 июнь 2019 13:09
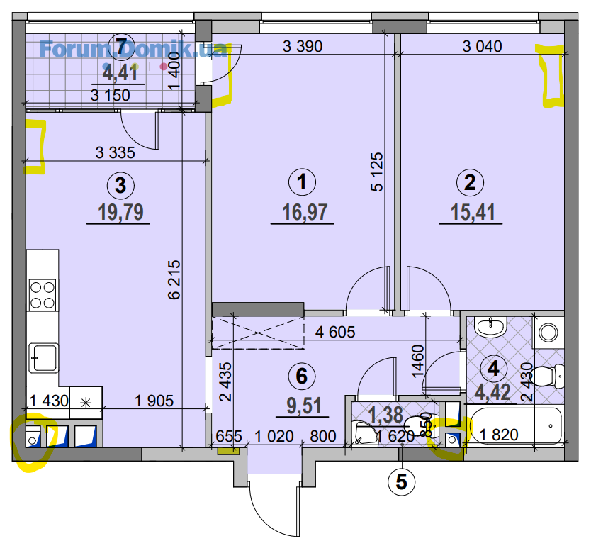
Цитата "Igolka1":У нас планировка 3с2, каким образом дотянуть трубку конденсата с двух комнат(кухня и маленькая комната - все просто)? Штроба в 10 метров, как-то не впечатляет.
А от справді - можливо хтось підкаже, планування 2С7, Октант:
як провести дренаж хлоча б від одного кондиціонера (жовті прямокутники), при умові, що монолітні стіни (темно сірі) штробити не можна?
KiTsemen
Пользователь
52
08 декабря 2017
19 июнь 2019 16:23
Все, що стирчить з вашої квартири на вулицю - псування фасаду. Магістралі кондиціонера виводяться через отвір навпроти корзини, за блоком їх буде не видно, до внутрішнього блоку проводиться вже в штробі всередині приміщення. Ніяких зовнішніх проводок на фасаді. Дренаж теж проводиться легко в стіні до каналізації, місця трубка займає не більше електропроводки в гофрі. На крайній випадок завжди помпа, або вбудована у кондиціонер, або окрема, що прокачує конденсат, тоді можна хоч під підвісною стелею трубку прокласти.
Antony_132
Пользователь
53
05 января 2017
19 июнь 2019 17:33
Цитата "Bobosta":
А от справді - можливо хтось підкаже, планування 2С7, Октант:
як провести дренаж хлоча б від одного кондиціонера (жовті прямокутники), при умові, що монолітні стіни (темно сірі) штробити не можна?
[attachment=0]Okt_2C7_conditionair.png[/ attachment]
https://youtu.be/o7vEYGHuL4k
Монтаж кондиционера: особенности дренажной системы
Igolka1
I
Пользователь
57
28 апреля 2017
19 июнь 2019 17:58
Лично мое мнение, если застройщик не предусмотрел выводы конденсата, значит по умолчанию подразумевается вывод на улицу. Единственное решение - это помпа, но тк много квартир и на перепродажу и люди ограничены в бюджете на ремонт, то это фантастика, на каждый блок установить еще и помпы. В пункте про порчу фасада нет и речи о конденсате, это все равно что выставлять счет погоде - дождливое лето портит фасад или же суровые морозы пагубно влияют на штукатурку.
Igolka1
I
Пользователь
57
28 апреля 2017
19 июнь 2019 18:13
Еще вариант - распылитель конденсата, кто знает на сколько актуально это приспособление?
alexkov
a
Постоянный пользователь
146
04 ноября 2017
19 июнь 2019 20:55
Цитата "Bobosta":
А от справді - можливо хтось підкаже, планування 2С7, Октант:
як провести дренаж хлоча б від одного кондиціонера (жовті прямокутники), при умові, що монолітні стіни (темно сірі) штробити не можна?
Понимаю, что моё решение не всем подойдёт, а некоторые раскритикуют, но всё же озвучу. У меня планировка зеркальная Вашей.
Монолитные стены к соседям планирую зашивать гипсокартоном (в два слоя) по нескольким причинам — шумоизоляция от соседей и всего 'стояка', т.к. монолит хорошо передаёт звук (буду кидать 'шуманет' под фальшстену), упрощение работ по установке розеток (и заодно чтобы не делать звуковые мостики к соседям в месте их установок), а также прокладка проводки, подвод трасс к кондиционерам, слив для конденсата, а заодно слив от мойки будет располагаться также за гипсокартоном (мы планируем мойку и варочную поверхность поменять местами, чтобы локализовать запахи готовки в углу). Ставится подобная фальшстена легко и быстро, а из минусов только –10см от ширины комнаты. Но тут уж каждый сам решает, насколько готов жертвовать.
Это конечно не панацея, но вариант, имеющий право на жизнь

Bobosta
B
Пользователь
87
05 апреля 2016
20 июнь 2019 04:31
Цитата "alexkov":Монолитные стены к соседям планирую зашивать гипсокартоном
Дальню від кухня кімнату також буду обшивати для шумоізоляції. Там зрозуміло.
Але по кухні та центральній кімнаті питання залишаються (стіна кухні не межує з іншими квартирами, тому шумоізоляцію робити не буду, та і вішати ящики на гіпсокартон не готовий поки що).
Однак, мені здається, що довгі дренажні траси малоймовірні. Потрібно проконсультуватись з професіоналами..
Купуй квартиру на Domik.ua
Широкий вибір квартир від власників, забудовників та ріелторів
Подробнее
- ЖК Вудлайн | Атлант | Новосілки, вул. Лісова, 1а24.021 209
- ЖК Атлант | Коцюбинське, вул. Доківська, 1424.022 327
- ЖК Гранд Віллас | Ворзель, вул. Чубинського24.025 572
- ЖК Одеський бульвар | Атлант | Новосілки, вул. Приміська, 22, 24, 2624.022 428
- ЖК Fjord | Фьорд | ENSO | Киев, Военный проезд, 823.02160
- ЖК Атлант на Озерной | Атлант | Новоселки, ул. Озерная23.021 180
- ЖК Софія Нова | Sofia Nova | Martynov Real Estate | Новоселки, ул. Мира22.021 030
- ЖК Софія Сіті | Sofia City | Martynov Real Estate | Софіївська Борщагівка, вул. Боголюбова22.02108
- ЖК Софія Клубний | Sofia Club | Martynov Real Estate | Софіївська Борщагівка, вул. Соборна, 10022.02676
- ЖК София Резиденс | Martynov Real Estate | Софиевская Борщаговка, ул. Яблоневая, 1522.02123
- Стоит ли сейчас покупать недвижимость?24.025 002
- Нужны или не нужны риэлторы? Не понимаю!03.021 503
- Lviv Build Forum | Декілька слів з власного досвіду30.011
- Планирую аренду квартиры в районе Подола27.014
- Купівля квартири в новобудові коли сусудні квартири не будуть заселені16.012
- Двоповерхові квартири в новобудовах, переваги та недоліки, враження?30.1213
- Походження грошей на купівлю квартири при її продажу27.126
- Застройщик предлагает только дарственную вместо купли-продажи. Насколько это популярно?23.1210
- Дно рынка недвижимости и влияющие факторы16.1115 264
- Пруд на даче20.0221
- Отзывы о кондиционерах. Какой кондиционер лучше19.02281
- Болит спина11.0274
- Выбор ноутбука. Отзывы о ноутбуках24.0180
- Постройка бани20.1218
- Кухонные столешницы. Отзывы о практичных и неубиваемых вариантах13.11111
- Где найти качественные полотенца?04.092
- Орхидеи. Как ухаживать за орхидеями29.0818
- Выбор пылесоса. Отзывы о ваших пылесосах26.0866
- Апарт-комплекс Тиса Renovation | Ужгород. вул. Сергія Мартина, 429.013
- Львів, вул. Бережанська, 54 | Інтергал-Буд26.0133
- ЖК Grand Palace | Хмельницький, вул. Подільська, 11521.0116
- ЖК Sakura | Свалява, пров. Достоєвського, 418.016
- Львів, вул. Трускавецька | Галжитлобуд11.016
- ЖК Lazur Sky | Львів, вул. Зелена, 115д02.013
- Твердотопливный котел и расходы на отопление19.0223
- Сломалась часть крана на трубе для воды. Нужен совет11.022
- Выбор межкомнатных дверей. Отзывы о материалах и производителях11.02141
- Шумоизоляция. Отзывы о материалах для звукоизоляции06.02169
- Как правильно выбрать бойлер. Отзывы о бойлерах03.02436
- Куплю проект дома TMV-10027.011
- При подключении Экофло на выходе горит две фазы14.012
- Как можно прочистить или улучшить вентиляцию в квартире?07.018
- Напольные покрытия - чтобы было тепло, красиво и недорого29.1219
- Мебельная фурнитура, скидки производителям мебели18.021
- Мебель под заказ | Объявления об изготовлении мебели18.02100
- Клінінг Київ: професійне прибирання від Partner Clean (20+ років досвіду)10.021
- Как можно избавиться от запаха сигарет в квартире?01.025
- Как удалить различные пятна с пола из ламината23.0115
- Как вернуть хороший вид деревянной посуде14.014
- Уборка квартиры при помощи натуральных средств07.0145
- Что подарить мужчине?22.12352
- Електрична тепла підлога28.111
Авторський канал ріелтора в Іспанії
Знайомтесь з Бенідормом, нерухомістю та стилем життя. Новобудови регіону, аналітика, інвестиції
Подробнее