ЖК Галактика | Stolitsa Group | Киев, ул. Евгения Сверстюка (Марины Расковой), 4
| Застройщик | Stolitsa Group |
| Сдача ЖК | 2017 - 2021 г. |
| Планировки | от 25 000 Грн/м² |
Ваше общее впечатление об Объекте и Компании:
Можно выбрать 1 вариант ответа. Можно менять ответы. Всего голосов: 205.
| 19/9% | ||
| 13/6% | ||
| 38/19% | ||
| 66/32% | ||
| 69/34% |
Mamboreta
M
Новичок
14
07 февраля 2019
23 май 2019 19:38
Серж
Постоянный пользователь
127
20 февраля 2006
24 май 2019 04:51
Почему все утверждают, что это сертификат только на Лиру. Написано вить (1 очередь).
Antony_132
Пользователь
53
05 января 2017
24 май 2019 05:27
Дані, які дізнався Актив від Центрального офісу Столиці по сертифікату:
Сертифікат отримала тільки Ліра.
Октант буде вводитись в експлуатацію в кінці червня - початок липня.
Сертифікат отримала тільки Ліра.
Октант буде вводитись в експлуатацію в кінці червня - початок липня.
_Marina__
_
Пользователь
24
15 марта 2019
24 май 2019 07:22
Отдел Продаж подтвердил что сертификат получила только Лира, Октант будет подаваться в июне.
На ЛУНе также обновились данные, там только Лира значится как дом введенный в эксплуатацию.
На ЛУНе также обновились данные, там только Лира значится как дом введенный в эксплуатацию.
Серж
Постоянный пользователь
127
20 февраля 2006
24 май 2019 07:49
Странная формулировка. На первую очередь сертификат получен. Так первая очередь, это Лира и Октант.
Stasya_ya
S
Новичок
18
30 января 2019
24 май 2019 11:41
Серж, более странно, что там написано «у Дніпропетровському районі м. Києва» и никто не исправил 

ihar
i
Новичок
20
05 декабря 2018
24 май 2019 12:11
А не говорят когда начнутся просмотры в Лире?
Antony_132
Пользователь
53
05 января 2017
24 май 2019 13:25
З 3 червня
alexkov
a
Постоянный пользователь
146
04 ноября 2017
25 май 2019 09:49
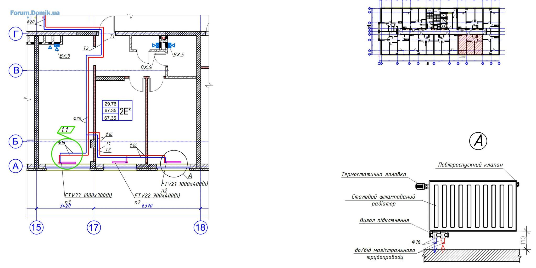
В начале недели скинули на утверждение план инженерии по 2х-комнатной квартире в Орионе (секция А) после утверждённой перепланировки. На чертеже указаны модели и размеры радиаторов. Два нашёл, один нет (думаю ошиблись в названии модели). Вот их мощности (для кухни-гостинной — это после объединения с лоджией, возможно, что изначально что-то послабее было, не знаю)
Kermi FTV 33 300*1000 (кухня-гостинная)
Мощность: 1837 вт
Kermi FTV 22 400*900
Мощность: 1445 вт
Kermi FTV 21 400*1000 (указанной модели я не нашёл, есть похожее, но с боковым подключением, либо очень слабое)
Kermi FTV 33 300*1000 (кухня-гостинная)
Мощность: 1837 вт
Kermi FTV 22 400*900
Мощность: 1445 вт
Kermi FTV 21 400*1000 (указанной модели я не нашёл, есть похожее, но с боковым подключением, либо очень слабое)
Igolka1
I
Пользователь
57
28 апреля 2017
25 май 2019 09:57
Фоточки
Anna.G
Постоянный пользователь
148
01 апреля 2018
25 май 2019 15:20
А кто-то может сдеать фотки 2й очереди и кинуть сюда? Пегаса в частности? Буду благодарна) 
ЛираБ
Л
Гость
2
26 мая 2019
25 май 2019 22:16
Приветствую! Может этот вопрос уже поднимался, однако, подскажите - в Лиру ЖЭК будет запускать "на осмотры" только инвесторов ПОЛНОСТЬЮ ОПЛАТИВШИХ стоимость квартиры или ВСЕХ инвесторов?
ISY
I
Пользователь
94
16 января 2017
26 май 2019 06:07
Взагалі цікавий принцип черги для огляду - чи є можливість вибрати дату, які пріоритети черги і т.п.
В Актива немає таких даних/можливості уточнити в представників ЖЕКу?
В Актива немає таких даних/можливості уточнити в представників ЖЕКу?
Antony_132
Пользователь
53
05 января 2017
26 май 2019 06:41
Цитата "ISY":Взагалі цікавий принцип черги для огляду - чи є можливість вибрати дату, які пріоритети черги і т.п.
В Актива немає таких даних/можливості уточнити в представників ЖЕКу?
Будемо уточнювати
ISY
I
Пользователь
94
16 января 2017
26 май 2019 09:17
Antony_132, дякую!
dolni4eg, відповіді на вище перелічені питання є в ВП? Щоб дарма не їхати через пів Києва.
dolni4eg, відповіді на вище перелічені питання є в ВП? Щоб дарма не їхати через пів Києва.
dolni4eg
d
Постоянный пользователь
105
23 августа 2017
26 май 2019 10:16
Про формирование очереди есть инфа. По рассрочникам ещё нет. Как уточним - обновим.
Pioneer_sv
P
Пользователь
61
23 сентября 2017
26 май 2019 12:54
Сьогодні проїзжав біля дому. Приступили до фарбування. Повністю пофарбована стіна від дороги в синьо-білий колір, але поки що чорнова покраска. Будуть один чи два рази ще наносити фарбу


Pioneer_sv
P
Пользователь
61
23 сентября 2017
26 май 2019 13:00
Цитата "alexkov":В начале недели скинули на утверждение план инженерии по 2х-комнатной квартире в Орионе (секция А) после утверждённой перепланировки. На чертеже указаны модели и размеры радиаторов. Два нашёл, один нет (думаю ошиблись в названии модели). Вот их мощности (для кухни-гостинной — это после объединения с лоджией, возможно, что изначально что-то послабее было, не знаю)
Kermi FTV 33 300*1000 (кухня-гостинная)
Мощность: 1837 вт
Kermi FTV 22 400*900
Мощность: 1445 вт
Kermi FTV 21 400*1000 (указанной модели я не нашёл, есть похожее, но с боковым подключением, либо очень слабое)
цікава інформація. замовляв перепланування майже рік тому, тоді інформацію про радіатори архітектор не вказував. Наскільки я пам"ятаю, навіть якщо робиш перепланування, радіатори забудовник залишає без змін.
Igolka1
I
Пользователь
57
28 апреля 2017
26 май 2019 14:46
Мое мнение, рассрочники такие же инвесторы как и все остальные и очередь на просмотр должна быть согласно номеру квартиры. Почему это у 100% оплативших должны быть приоритеты? При покупке нас уверяли, что и на ремонты сможем заступить и даже перепланировки затеять если понадобиться, основное условие - нет задолженности по платежам и выплачено более 50%.
My_house
M
Постоянный пользователь
133
15 декабря 2018
26 май 2019 14:57
А где есть инфа о формировании очереди?
Купуй квартиру на Domik.ua
Широкий вибір квартир від власників, забудовників та ріелторів
Подробнее
- ЖК Дніпровська Мрія | Галжитлобуд | ул. Сосюры, 605.11797
- ЖК Трояндовий | Бровари, вул. Фельдмана, вул. Спортивна04.11737
- ЖК Chalet | Standard Development | Київ, вул. Львівська, 18-б04.11117
- ЖК Урловский-1 | Киевгорстрой, bUdCapital | Киев, ул. Причальная, 1104.113 799
- Киев, ул. Кудряшова, 14а - "Киевгорстрой" (отменён)04.1126
- ЖК Sanville Park | Санвиль Групп | Святопетровское, ул. Богдана Хмельницкого, 25а04.1141
- ЖК Family and Friends | 2 очередь | GEOS | Киев, ул. Новополевая, 203.11531
- Власники квартир з ЖК Крона парк 2 в будинку 3 (Соборна 23, м. Бровари) - відгукніться!03.111
- ЖК Урловский-2 | Киевгорстрой | Киев, ул. Сортировочная, Канальная, Клеманская02.112 066
- ЖК Заречный | bUd development | пр-т Н. Бажана, ул. Заречная02.1111 515
- Дно рынка недвижимости и влияющие факторы04.1115 253
- Стоит ли сейчас покупать недвижимость?29.104 723
- Чи варто купити будинок в спокійному регіоні, в Вінниці?17.092
- Завышеные тарифы на отопление. Как обжаловать и куда писать?19.082
- Ипотека от Банков с лучшими условиями | Обсуждение кредитов под залог недвижимости13.08192
- Краудфандинг - типы группового инвестирования01.083
- Планирую аренду квартиры в районе Подола30.073
- Про агентство Атлант-А23.0722
- Допоможіть розібратись з податками08.053
- Где найти качественные полотенца?04.092
- Орхидеи. Как ухаживать за орхидеями29.0818
- Выбор пылесоса. Отзывы о ваших пылесосах26.0866
- Отзывы об ортопедических матрацах. Матрасы для комфортного сна22.0891
- Болит спина07.0873
- Какую выбрать мебель на террасу?04.084
- Стоит ли покупать кофе-машину13.07154
- Декоративные элементы в интерьере. Советы и отзывы о их сочетании12.0716
- Декор окна без штор, варианты и советы12.0746
- ЖК Kandinsky Odessa Residence | Кандинский | Одесса, Французский бульвар, 63/6515.10182
- ЖК Дом у моря | Югінвест | Южный, ул. Иванова10.1017
- ЖК Sakura | Свалява, пров. Достоєвського, 404.105
- ЖК Імперіал Парк Авеню | Імперіал Буд | Чернівці, вул. Рівненська, 718.084
- ЖК Manhattan | Blago developer | Івано-Франківськ, вул. Романа Левицького, вул. Ленкавського04.0815
- ЖК Зелений двір | Спілка забудівників | Івано-Франківськ, вул. Тисменицька04.089
- Кварц виниловая плитка LG Decotile или Berry Alloc29.106
- Напольные покрытия - чтобы было тепло, красиво и недорого29.1018
- Яка реальна ціна чорнових робіт в 2025 для будинку08.101
- Хто планує поїхати на будівельний форум у Львові цього вересня?01.093
- Тёплый пол, отзывы и советы28.08205
- Крыша потекла, что делать?25.0818
- Перепланировка | тема просьб и советов по конкретным ситуациям19.082 216
- Материал многоквартирного дома новостройки. Какой лучше?13.0812
- Климатическое оборудование норвежской ТМ Bergen07.082
- Продам фонарик шокер ОСА 928 Power plus04.111
- Пошук обладнання для магазину21.101
- Как отвечать на How are You?04.102
- Что подарить мужчине?24.09351
- Мій сайт не з'являється в результатах пошуку20.093
- Домик для кота26.085
- Тренажер в доме. Какой выбрать24.0817
- Мебель под заказ | Объявления об изготовлении мебели18.0899
- Как уберечь холодильник от перепадов напряжения09.0810
Авторський канал ріелтора в Іспанії
Знайомтесь з Бенідормом, нерухомістю та стилем життя. Новобудови регіону, аналітика, інвестиції
Подробнее