Перепланування | прохання та поради щодо конкретних ситуацій
Demyan
Спасибо.
Если решитесь на необычный вариант, то могу предложить более рациональную планировку. Больше мест хранения, отдельная спальня. Если лоджию оставить как есть, придется ограничиться барной стойкой (можно по высоте обычного стола). А если присоединить и утеплить, получится классная столовая у окна.
Очень неожиданно, но на много интереснее, чем первый предложенный вариант. Спасибо.
Всем привет. Есть один строящийся ЖК, в котором хочу купить квартиру для сдачи в аренду. В нем у всех квартир свободные планировки, не зависимо от площади. Ниже приведена планировка 1к-квартиры площадью 38.14 кв. м. Подскажите, как лучше ее разделить на кухню и комнату? Может кому-то не лень будет нарисовать...Или может в ней вообще поменять местами кухню и комнату?
Добрый день!
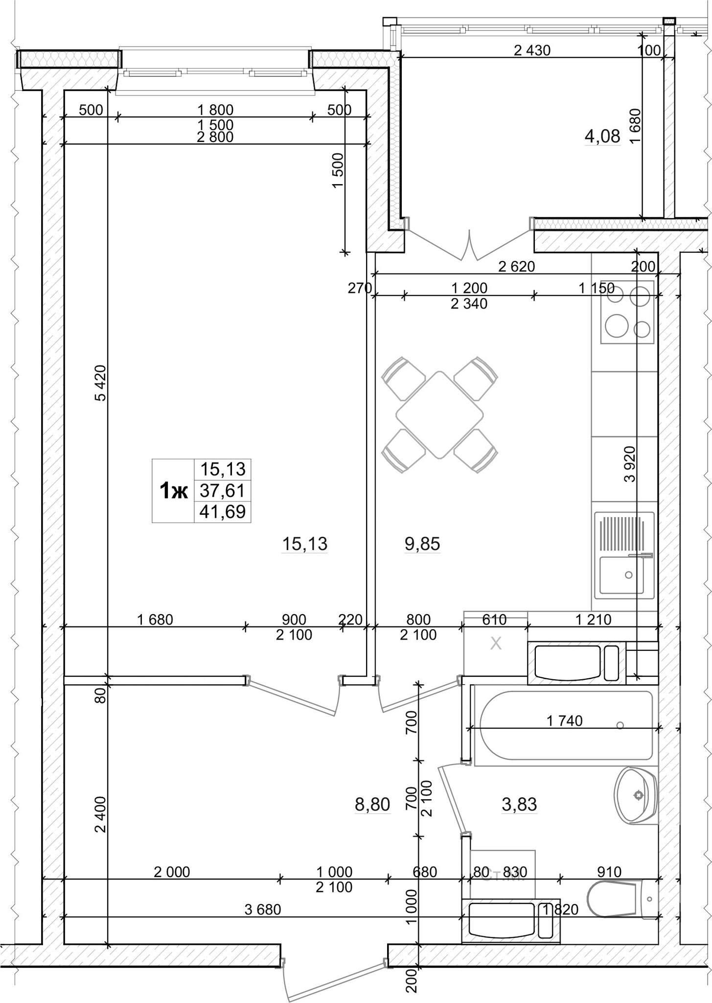
подскажите пожалуйста по планировке.
Есть квартира сталинка 45м.кв. в центре Запорожья. начинаем делать ремонт. квартира планируется под аренду.
кухня 5,7м. кв.
ванная 2,4м. кв.
маленькая комната 13м. кв
два открытых балкона
Спасибо!
Oleh_YU
Добрый день!
подскажите пожалуйста по планировке.
Есть квартира сталинка 45м.кв. в центре Запорожья. начинаем делать ремонт. квартира планируется под аренду.
кухня 5,7м. кв.
коридор 4,5м. кв.
туалет 1м. кв.
ванная 2,4м. кв.
большая комната 18,5м. кв.
маленькая комната 13м. кв
два открытых балкона
возник вопрос - объединять ли кухню с комнатой чтоб получить кухню-гостинную + одна отдельная комната. В этом случае туалет с ванной тоже объединяются.
Или оставить текущую планировку с двумя отдельными комнатами и отдельными ванной\туалетом? какой из вариантов более привлекателен для аренды?
Спасибо!
Я бы не делала ни то, ни другое. У вас 3 окна, поэтому можно сделать кухню-гостиную и 2 отдельные комнаты - спальню и детскую. Семей с ребенком наверно таки больше, чем бездетных.
Отдельная кухня меньше 6-ти метров при ширине 1,9м - это мало, при этом остаются большие комнаты. Такой вариант подойдет для 2-х подруг или друзей - студентов, молодых специалистов. Такие мало готовят)
Если же нацелены на долгосрочную аренду, то подобные квартиры, имхо, наиболее востребованы молодыми семьями. Есть один ребенок или два - у вас есть детская, нет детей - мужу будет отдельный кабинет)) При пандемии очень актуально кстати!
Я предлагаю "украсть" у санузла 40 см, чтобы расширить кухню и поставить у стены с санузлом рабочую поверхность с мойкой и плитой длиною 180 см, а напротив - три пенала по 60 см (холодильник, духовка, микроволновка и куча хранения). Если кухню не расширять, то проход получится всего 70 см. Стиралку вынести в коридор и прикрыть дверками. Длина большой комнаты 480 см, 200 отдаем под гостиную, а 270 см - под детскую (10 см толщина перегородки). Итого получаем кухню-гостиную примерно 10 квадратов, детскую 14 квадратов + гардероб и те же 13 квадратов в меньшей спальне.
Придумала 2 варианта - с душевой и гардеробом в родительской спальне, а также с ванной и без гардероба, но со шкафом и рабочим столом.
Oleh_YU
Добрый день!
возник вопрос - объединять ли кухню с комнатой чтоб получить кухню-гостинную + одна отдельная комната. В этом случае туалет с ванной тоже объединяются.
Или оставить текущую планировку с двумя отдельными комнатами и отдельными ванной\туалетом? какой из вариантов более привлекателен для аренды?
Спасибо!
Если же хотите обойтись минимальными вложениями, то просто увеличьте кухню за счет комнаты, сформировав нишу под пеналы до потолка. Иначе в нынешнем виде кухня совсем не приспособлена под современные требования. Там негде поставить мебель, единственный отрезок с мойкой и плитой
равен всего 159 см! это 2 модуля по 80 см и всё! Было бы окно, а не выход на балкон, можно было развернуть часть рабочей поверхности на подоконник, но здесь так не получится. Напротив что-то поставить тоже не выйдет, поскольку останется узкий проход. А если уместить в нишу 3 пенала по 60 см, то найдется место для неглубокого бара или буфета и для обеденного стола.
Добрый день. Есть такая не стандартная планировка кухни . Подскажите как грамотно при такой планировке все разместить . Стоит ли использовать балкон?
Antonyo
Добрый день. Есть такая не стандартная планировка кухни .
Подскажите как грамотно при такой планировке все разместить . Стоит ли использовать балкон?
Сложно оценить масштаб помещений без длины и ширины стен, поэтому могу предложить лишь как некую идею. Я например вижу так:
Alisa_Bu
Сложно оценить масштаб помещений без длины и ширины стен, поэтому могу предложить лишь как некую идею. Я например вижу так:
Antonyo
Спасибо большое. Есть над чем подумать!!!
sc_creator
Всем привет. Есть один строящийся ЖК, в котором хочу купить квартиру для сдачи в аренду. В нем у всех квартир свободные планировки, не зависимо от площади. Ниже приведена планировка 1к-квартиры площадью 38.14 кв. м. Подскажите, как лучше ее разделить на кухню и комнату? Может кому-то не лень будет нарисовать...Или может в ней вообще поменять местами кухню и комнату?
Что ту делить вы собрались этой в студии с такими стенами?))
bezzhenets
Что ту делить вы собрались этой в студии с такими стенами?))
Ну просто раздельные планировки начинаются от 35 кв. м. Покупать под сдачу в аренду есть смысл 35 - 40 кв. м. и идеально, если это будет квартира с раздельной планировкой.
Тут из-за расположения стен нельзя разделить?
sc_creator
Ну просто раздельные планировки начинаются от 35 кв. м. Покупать под сдачу в аренду есть смысл 35 - 40 кв. м. и идеально, если это будет квартира с раздельной планировкой.
Тут из-за расположения стен нельзя разделить?
Да разделяйте пожалуйста как хотите! У вас прекрасная планировка! Хотите отдельно небольшую кухню + большую комнату с функцией гостиной, спальни и рабочего кабинета - вуаля! Хотите кухню-гостиную с отдельной глухой спальней у окна - пожалуйста! Желаете пространство опен-спейс с нишей для сна - на здоровье! Единственное, что стОит сделать в любом случае - это поменять местами балконную дверь с глухим окном, чтобы в освободившемся месте поставить обеденный стол, иначе просто негде. А менять местами кухню с жилым пространством незаконно.
Всем привет! Нужен совет по поводу кухни. Заказал угловую кухню и теперь вот не знаю как поступить. По проекту она ступенькой и мы обходим коммуникации. Видел подобную планировку и других, но показалась она мне не очень. Вопрос. Может лучше зашить углубление и тогда кухня получится правильной "Г" образной. Зашить придется 1,45 на 0,4 метра. Нужен Ваш совет. Всем заранее спасибо!
Джокермаза
Всем привет! Нужен совет по поводу кухни. Заказал угловую кухню и теперь вот не знаю как поступить. По проекту она ступенькой и мы обходим коммуникации. Видел подобную планировку и других. Вопрос. Может лучше зашить углубление и тогда кухня получится правильной "Г" образной. Зашить придется 1,45 на 0,4 метра. Нужен Ваш совет. Всем заранее спасибо!
Не знаю, зачем вам угловая кухня... Здесь прекрасно становится ровная кухня на 5 модулей по 60 см, а в нишу вписываются 2 пенала до потолка с выступом вперед на 20 см и карго 25 см. Либо прямая кухня с 2-мя пеналами по бокам и 3-мя модулями по 60 см посередине, а в нише дополнительная рабочая поверхность.
Вы же хотите украсть у себя 40 см самой ниши + 60 см на ширину мебели. Более того, делаете себе "мертвый" угол, чтобы повернуть перпендикулярно все те же 60 см, которые потеряли из-за этого угла. То есть налицо дополнительные траты на лишний модуль, угловой модуль, столешницу, фурнитуру для "мертвого" угла и потеря 1,16 квадратов пространства, за которое заплачены деньги. Я бы например поспешила изменить заказ.
Можно конечно зашить и поставить угловую кухню, как и запланировали. Разницу между тем, что получится в итоге у вас и что могло бы получиться с прямой кухней, видно на моих картинках.
И еще. У вас нереально крошечная душевая. Если соотнести с масштабом мебели, то она где-то 70х70, еще и полукругом. Я предлагаю перенести дверь в санузел ближе к центру и сделать нормальную человеческую душевую.
В любом случае желаю удачи и счастья в новом гнездышке!
К сожалению, кухню уже не переделать - она почти готова. Угловая нужна для того, чтобы было максимально много рабочей зоны. В "мертвую" угловую зону ставится кофеварка. Я над другим сейчас думаю, пока это возможно: зашивать ту нишу под красной чертой или оставить как есть - ступенькой? Мебельщики сказали, что во всех видимых местах будет фасад. А по поводу душевой согласен, но получилось довольно забавно. Удачно так поставили трап, залили пол и получается вся комната душевой, перегородки не будет никакой ))) Просто шторка будет
jokermaza
К сожалению, кухню уже не переделать - она почти готова. Угловая нужна для того, чтобы было максимально много рабочей зоны. В "мертвую" угловую зону ставится кофеварка. Я над другим сейчас думаю, пока это возможно: зашивать ту нишу под красной чертой или оставить как есть - ступенькой? Мебельщики сказали, что во всех видимых местах будет фасад. А по поводу душевой согласен, но получилось довольно забавно. Удачно так поставили трап, залили пол и получается вся комната душевой, перегородки не будет никакой ))) Просто шторка будет
Если в нише только пеналы в потолок, можно оставить ступенькой. Если же там начало столешницы, то зашивать придется однозначно
Alisa_Bu
Если в нише только пеналы в потолок, можно оставить ступенькой. Если же там начало столешницы, то зашивать придется однозначно
Здравствуйте.
Можно получить вашу помощь, совет?) Какая на ваш взгляд будет в этой квартире самая лучшая перепланировка? хотелось бы отдельно спальню и в кухне куда-то диван поставить и гардеробную + чтоб в ней можно было хранить швабру, порошки и тд.
Буду рада любой помощи)
Alexxxa
Лучшая планировка в вашей квартире - это та, что отвечает вашим требованиям)). Сколько человек будет жить? Сколько спальных мест нужно? Готовить будете часто и много или нужен минимальный фукционал кухни? Что еще нужно предусмотреть? Например, письменный стол или рабочий, или макияжный столик? Много ли систем хранения надо?
У вас хорошая планировка, с ней можно играться как угодно).
- ЖК Киевская Швейцария | ИнтерГал-Буд | ул. Макаровская, 316.1218
- Де придбати квартиру в новобудові?16.122 722
- ЖК Paradise Avenue | ZIM Group | Крюківщина, вул. Чорновола16.122 502
- МФК Intergal City | Інтергал Сіті | ІнтерГал-Буд | Київ, вул. Старонаводницька, 16-Б16.1263
- ЖК Абрикосовий | Київміськбуд | Київ, вул. Абрикосова, вул. Жулянська15.122 060
- ЖК Sense City | Prostir | Софіївська Борщагівка, вул. Соборна, 77а15.1227
- ЖК Отрада | Київміськбуд, bUdCapital | Київ, просп. Відрадний, 93/213.122 755
- ЖК Chalet | Standard Development | Київ, вул. Львівська, 18-б12.12123
- ЖК Family and Friends | 3 черга | GEOS | Київ, вул. Новопольова, 212.1224
- ЖК Family and Friends | 2 черга | GEOS | Київ, вул. Новопольова, 212.12536
- Чи варто зараз купувати нерухомість?16.124 871
- Дно рынка недвижимости и влияющие факторы16.1115 264
- Різонність ціни за оренду квартири (12 тисяч гривень)13.111
- Додаткові розрахунки між орендодавцями та орендарями06.1127
- Чи варто купити будинок в спокійному регіоні, в Вінниці?17.092
- Завышеные тарифы на отопление. Как обжаловать и куда писать?19.082
- Іпотека від Банків із найкращими умовами | Обговорення кредитів під заставу нерухомості13.08192
- Краудфандинг - типы группового инвестирования01.083
- Планую оренду квартири в районі Подолу30.073
- Кухонные столешницы. Отзывы о практичных и неубиваемых вариантах13.11111
- Отзывы о кондиционерах. Какой кондиционер лучше08.11278
- Где найти качественные полотенца?04.092
- Орхидеи. Как ухаживать за орхидеями29.0818
- Выбор пылесоса. Отзывы о ваших пылесосах26.0866
- Відгуки про ортопедичні матраци. Матраци для комфортного сну22.0891
- Болит спина07.0873
- Какую выбрать мебель на террасу?04.084
- Стоит ли покупать кофе-машину13.07154
- ЖК Стандарт | Стандарт Буд | Полтава, вул. Великотирнівська, 9а04.128
- ЖК ARTVILLE | ZEZMAN | Одеса, Овідіопольська дорога02.1231
- Микрорайон на Лузановке | Одесса, Николаевская дорога | Консоль30.116
- Харьков, Проект "Consol Green City" - "Консоль"11.113
- ЖК Kandinsky Odessa Residence | Кандинский | Одесса, Французский бульвар, 63/6515.10182
- ЖК Дом у моря | Югінвест | Южный, ул. Иванова10.1017
- Перепланування | прохання та поради щодо конкретних ситуацій09.122 217
- Подскажите, какие ворота на гараж лучше установить из современных?02.124
- Підлога на кухні - ламінат або плитка?13.1121
- Пластиковые окна, какие лучше - поделитесь отзывами09.11241
- Кварц виниловая плитка LG Decotile или Berry Alloc29.106
- Напольные покрытия - чтобы было тепло, красиво и недорого29.1018
- Яка реальна ціна чорнових робіт в 2025 для будинку08.101
- Хто планує поїхати на будівельний форум у Львові цього вересня?01.093
- Тепла підлога, відгуки та поради28.08205
- Електрична тепла підлога28.111
- Продам фонарик шокер ОСА 928 Power plus04.111
- Как отвечать на How are You?04.102
- Что подарить мужчине?24.09351
- Мій сайт не з'являється в результатах пошуку20.093
- Домик для кота26.085
- Тренажер в доме. Какой выбрать24.0817
- Меблі на замовлення | Оголошення про виготовлення меблів18.0899
- Как уберечь холодильник от перепадов напряжения09.0810