Куплю - продам - переуступка, квартиры ЖК "Патриотика"
Тема закрыта
Лето1982
Постоянный пользователь
218
05 ноября 2016
18 ноя 2017 12:16
напишите Ваши контакты интересует смеситель с длинным носиком на ванную-умывальник
Лето1982
Постоянный пользователь
218
05 ноября 2016
18 ноя 2017 12:17
Цитата "Levandovski":Продам новую ванну от застройщика 170 см, слегка в пыли, и 2 умывальника со смесителями (1 маленький и 1 обычный). Квартира в Дубровице. Недорого
Интересует смеситель для ванной, напишите Ваши контакты.
Owner_Patriotika
O
Пользователь
67
08 марта 2017
19 ноя 2017 03:45
Переуступлю однокомнатную квартиру в доме "Свитязь" с/п 30.
Дом "свеча", хорошая готовность, сдача 2018г.
24/25эт., окна на восток, площадь 36м2.
Собственник, цена 29500, переуступку плачу.
Ольга 095-761-шесть-шесть-7-девять
Дом "свеча", хорошая готовность, сдача 2018г.
24/25эт., окна на восток, площадь 36м2.
Собственник, цена 29500, переуступку плачу.
Ольга 095-761-шесть-шесть-7-девять
Owner_Patriotika
O
Пользователь
67
08 марта 2017
19 ноя 2017 06:14
Однокомнатная 36,61м2 в доме "Богуслав" с/п 20.
18эт/25эт., окна на запад.
Цена 30000, переуступку плачу
Собственник 095-761-шесть-шесть-79 Ольга
18эт/25эт., окна на запад.
Цена 30000, переуступку плачу
Собственник 095-761-шесть-шесть-79 Ольга
Levandovski
L
Пользователь
39
03 мая 2016
19 ноя 2017 08:26
Цитата " Лето1982":
Интересует смеситель для ванной, напишите Ваши контакты.
Сорри, забыл указать.
050144 три четыре 25
Смесители только под умывальник. Для ванной оставили себе
Дайна
Д
Новичок
12
19 июля 2012
21 ноя 2017 08:14
ЧЕРЕМОШ, 1-комн. Своя. С ремонтом. Окна на Запад. тип 1-г (возможность тамбура). 25/25
31 500
30 200 на руки + 1300 переуступка.
Срочно. Готова торговаться.
Ноль-98-ноль-1-ноль-7-ноль-86
31 500
30 200 на руки + 1300 переуступка.
Срочно. Готова торговаться.
Ноль-98-ноль-1-ноль-7-ноль-86
Almatra
Новичок
6
27 ноября 2017
27 ноя 2017 14:02
Продам Свитязь 1 комнатную 36,6 ( 1-Г) 6 эт ( со всеми расходами 30600 ( 050 шесть четыре 0 10 шесть шесть )
Светлана Базелюк
СБ
Новичок
6
27 ноября 2017
27 ноя 2017 15:22
Куплю по переуступке однокомнатную в Львовском. 0677595047 Светлана
Pandora15
Новичок
15
24 октября 2017
27 ноя 2017 17:29
Цитата "Светлана Базелюк":Куплю по переуступке однокомнатную в Львовском. 0677595047 Светлана
Мы свою продаём во Львовском. 2 этаж 2 секция, окна во двор.
Светлана Базелюк
СБ
Новичок
6
27 ноября 2017
27 ноя 2017 19:29
Площадь и цена?
Светлана Базелюк
СБ
Новичок
6
27 ноября 2017
27 ноя 2017 19:30
Площадь и цена?
Pandora15
Новичок
15
24 октября 2017
27 ноя 2017 21:16
Цитата "Светлана Базелюк":Площадь и цена?
S=42.73, 35000$ тел. 095пятьтритри153один
Светлана Базелюк
СБ
Новичок
6
27 ноября 2017
28 ноя 2017 06:51
Спасибо.
Александр1017
А
Новичок
10
24 октября 2017
28 ноя 2017 08:19
Цитата " Лето1982":
Интересует смеситель для ванной, напишите Ваши контакты.
Смеситель для ванны еще интересует?
Светлана Базелюк
СБ
Новичок
6
27 ноября 2017
28 ноя 2017 08:24
За 33 готовы забрать. Второй этаж не совсем то, что хотели, но если уступите рассмотрим как вариант.
K12
Постоянный пользователь
172
22 сентября 2015
28 ноя 2017 10:18
1 комн 36,6 кв м Дом Богуслав
20 этаж, цена 29 000, переуступка включена
063 198 80 48
20 этаж, цена 29 000, переуступка включена
063 198 80 48
K12
Постоянный пользователь
172
22 сентября 2015
28 ноя 2017 10:20
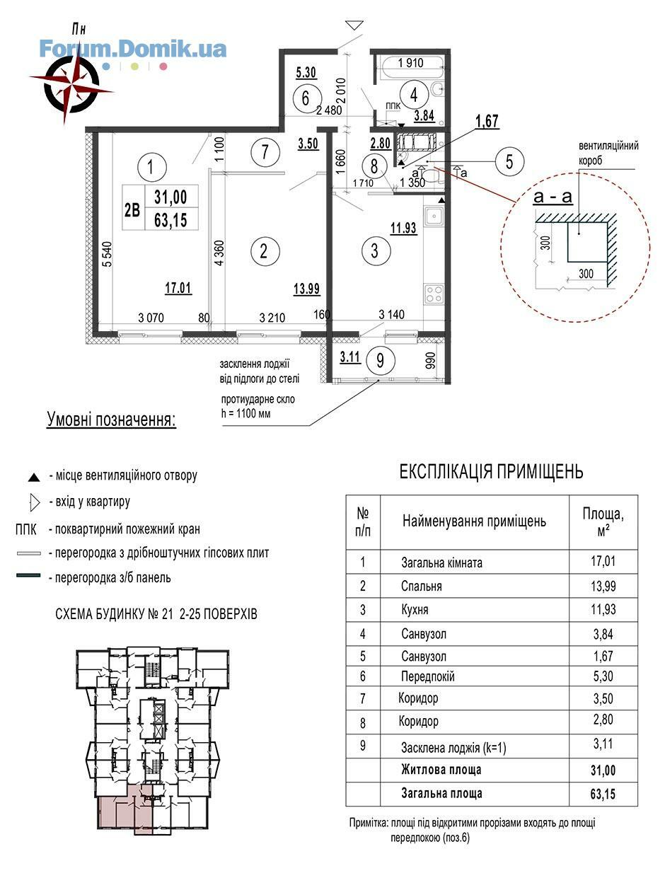
2 комн, 63.15 кв м. 2 этаж
Полонина #17, сдача май 2018
цена 51 500, переуступка включена
063 198 80 48
Полонина #17, сдача май 2018
цена 51 500, переуступка включена
063 198 80 48
Murena 2017
Ветеран
1 329
18 января 2017
29 ноя 2017 12:43
Цитата "evsik90":Куплю 2х комнатную квартиру 55-70м.кв. В ЖК Патриотика.
С кухней не мнение 11м.кв.
Сданные в эксплуатацию в 2017 году. В частности интересны дома: Буковина#24 Полесье # 15, Горынь #29, Черемош#13, Верховена #25, Триполье #14, Дубровица #11, Галицкий #12, Ольвия #18.
Рассмотрю все варианты.
099-29_о5-9девять9 Евгений
Планировка, цена, условия продажы жду на google
Уважаемый вы базу набиваете, вас конкретно какой дом и какая квартира интересует? Попробуйте поискать самостоятельно, за одно сообщите ваш бюджет.
K12
Постоянный пользователь
172
22 сентября 2015
29 ноя 2017 14:22
Куплю 3 комн
Галицкий или Дубровица
063 198 80 48
Галицкий или Дубровица
063 198 80 48
Sanya77
Пользователь
87
27 октября 2015
29 ноя 2017 15:00
Цитата "K12":1 комн 36,6 кв м Дом Богуслав
20 этаж, цена 29 000, переуступка включена
063 198 80 48
Это дом где только только кран поставили? ))))
Авторський канал ріелтора в Іспанії
Знайомтесь з Бенідормом, нерухомістю та стилем життя. Новобудови регіону, аналітика, інвестиції
Подробнее
- ЖК Smart Residence | Святопетрівське, бул. Лесі Українки23.0410
- ЖК Трояндовий | Бровари, вул. Фельдмана, вул. Спортивна23.04740
- ЖК Гвардейский | Киевгорстрой, Укрбуд | Киев, ул. Генерала Алмазова (Кутузова), 18/722.04520
- ЖК Mirax | Київміськбуд, BudCapital | Київ, вул. Глубочицька, 4322.044 428
- ЖК Медовий-2 | Київміськбуд | Київ, вул. Петра Радченка, 2722.04438
- ЖК Twin House | Твин Хаус | Киевгорстрой, Укрбуд | ул. Крайняя, 122.041 272
- ЖК На Прорезной - 2 | Comfort Life | Гостомель, ул. Центральная, 121.0419
- ЖК Boston Creative House | Saga Development | Киев, просп. Степана Бандеры, 2021.04106
- ЖК Krona Park II | Alliance Novobud | Бровари, вул. В'ячеслава Чорновола20.041 933
- ЖК Кирилловский Гай | Киевгорстрой, Укрбуд | ул. Баггоутовская, 1-а20.041 736
- Стоит ли сейчас покупать недвижимость?19.045 041
- Налог на дар денег между мужем и женой11.041
- На що звертати увагу при покупці квартири?30.032
- Rivne Invest Forum у Рівному — дводенна подія04.031
- Нужны или не нужны риэлторы? Не понимаю!03.021 503
- Lviv Build Forum | Декілька слів з власного досвіду30.011
- Планирую аренду квартиры в районе Подола27.014
- Купівля квартири в новобудові коли сусудні квартири не будуть заселені16.012
- Двоповерхові квартири в новобудовах, переваги та недоліки, враження?30.1213
- Как подобрать кухонную мебель15.045
- Пруд на даче20.0221
- Отзывы о кондиционерах. Какой кондиционер лучше19.02281
- Болит спина11.0274
- Выбор ноутбука. Отзывы о ноутбуках24.0180
- Постройка бани20.1218
- Кухонные столешницы. Отзывы о практичных и неубиваемых вариантах13.11111
- Где найти качественные полотенца?04.092
- Орхидеи. Как ухаживать за орхидеями29.0818
- ЖК "Александровский 2", Запорожье, ул. Почтовая, 7720.0416
- Апарт-комплекс Тиса Renovation | Ужгород. вул. Сергія Мартина, 429.013
- Львів, вул. Бережанська, 54 | Інтергал-Буд26.0133
- ЖК Grand Palace | Хмельницький, вул. Подільська, 11521.0116
- ЖК Sakura | Свалява, пров. Достоєвського, 418.016
- Львів, вул. Трускавецька | Галжитлобуд11.016
- Как не снимая старую эмаль покрасить сверху акриловой (латексной) краской?17.033
- Выбираю акриловую краску17.0320
- Выбираю краску по металлу. Поделитесь советом и опытом17.032
- Какую выбрать грунтовку и шпатлевку17.0314
- Диммерний блок для сценічних софітів постійно вимикається14.033
- Установка насоса для решения проблем с водой07.039
- Отклеилась краска вместе с малярной лентой. В чем проблема?25.0215
- Шпаклевка трескается под обоями25.022
- Плесень на стене - как с этим бороться25.0264
- Входные и межкомнатные двери, продажа, изготовление, установка13.0436
- Своя машина или такси?07.04538
- Де зараз краще оформити медичну довідку або санітарну книжку?07.042
- Окна, двери и комфорт под ключ в Одессе — от компании «Окнодом»06.041
- Электрик Киев . Замена розеток, выключателей, люстр, автоматов05.041
- Просунуті сучасні системи опалювання31.031
- DOOR(*)COM(*)UA — продаж стратегічного домену для лідера дверного ринку України30.031
- Продаж 1-кімнатна Квартира Ірпінь , ЖК Молодість, вул. Соборна 2К/2525.031
- Клиника урологии в Николаеве02.031
Купуй квартиру на Domik.ua
Широкий вибір квартир від власників, забудовників та ріелторів
Подробнее