Микрорайон на ул. Новомостицкая, Замковецкая | Киевгорстрой
| Застройщик | Киевгорстрой |
| Сдача ЖК | 2016 - 2018 г. |
| Планировки | от 26 000 Грн/м² |
Ваше общее впечатление об Объекте и Компании:
Можно выбрать 1 вариант ответа. Можно менять ответы. Всего голосов: 375.
| 43/11% | ||
| 42/11% | ||
| 117/31% | ||
| 118/31% | ||
| 55/15% |
alexix
a
Старожил
581
01 апреля 2015
18 окт 2015 12:19
Цитата "umgg":
Почему Вы думаете что балкон будет большем чем 3 метра, может быть я чего-то не знаю?
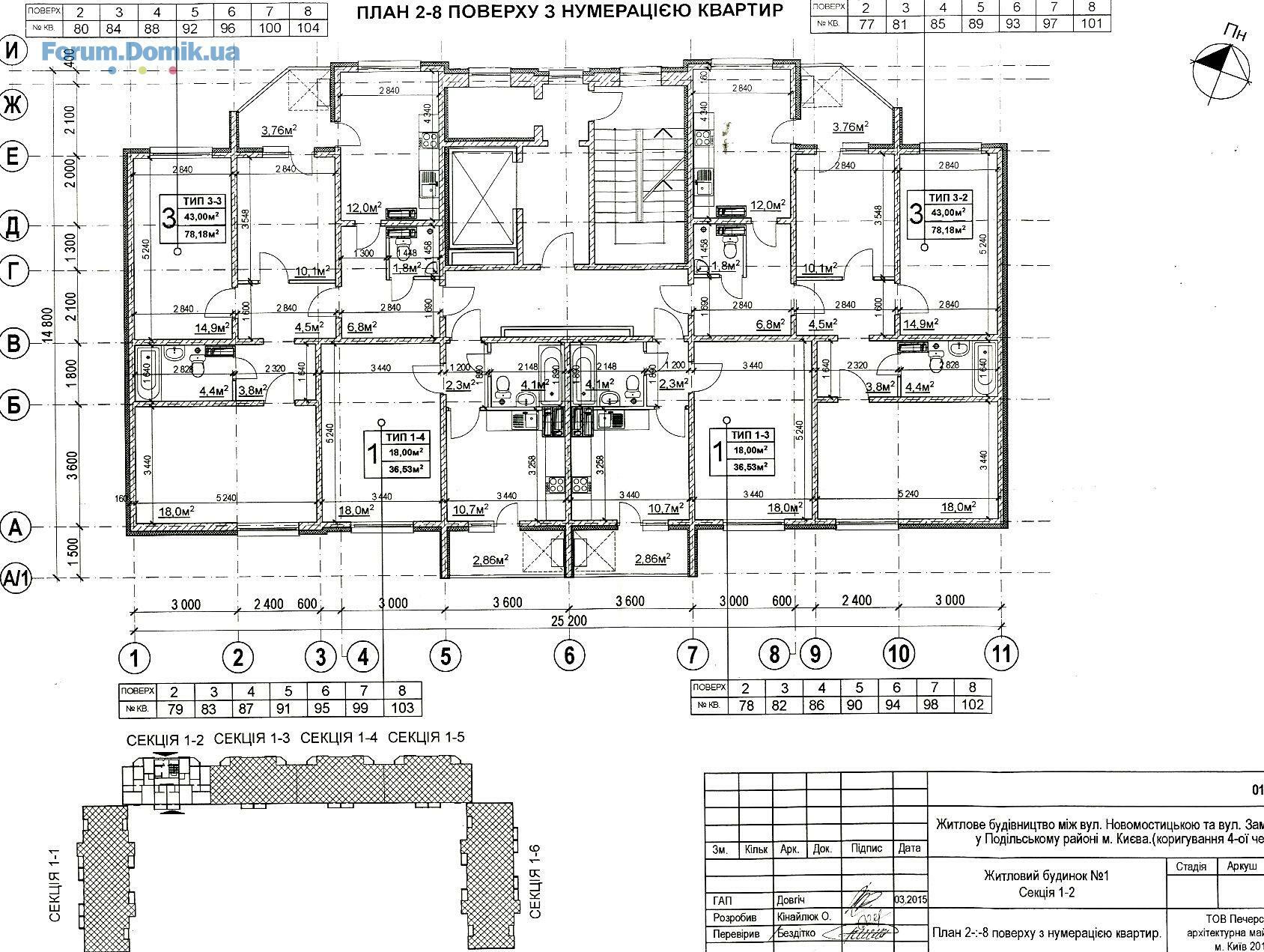
смотрите , площадь балкона=3,76, Вы заплатили за 1,88, так как он не застеклен. Дальше-площадь под пожарку и кондиционер(мин.1м кв) не учитывалась застройщиком... Возьмите чисто математически посчитайте по плану(проекту)-ширина-2,84(минус утеплитель-12см ), глубина 2,5(минус утеплитель 12см, минус ср. раст. панели-8 см). Выходит такой себе срезаный на один угол квадрат=2,72м на 2,3 м.(минус срез угла) Думаю под 5 кв.м набежит железно
СХЕМА:
Оленка_
О
Пользователь
54
13 октября 2015
18 окт 2015 21:40
Як потенційні інвестори 17.10. відвідували будівництво. Щоб зайти на територію об'єкта, варто було привітатися з охоронцем і сказати про свій намір. У першому будинку вже є частина підвальних приміщень, інші будинки сфотографувати було важко, працювала техніка і не скрізь можна пройти. Тому от такі вийшли фото, вигляд зверху показав би більше. Уже розпочато роботу і над будинком # 7.
Оленка_
О
Пользователь
54
13 октября 2015
18 окт 2015 21:47
Так укріплюють схил до вул. Замковецької.
Батя_20
Б
Постоянный пользователь
446
04 сентября 2015
19 окт 2015 06:02
Цитата "Оленка_":Так укріплюють схил до вул. Замковецької.
О, спасибо!
Это важный позитивный сигнал как для инвесторов, так и для местных жителей, который свидетельствует о серьезности намерений компании.

4Leo
4
Пользователь
79
27 августа 2015
19 окт 2015 06:10
Цитата "Оленка_":Так укріплюють схил до вул. Замковецької.
Спасибо!
wipe007
Ветеран
1 946
18 сентября 2014
19 окт 2015 06:17
Сигнал положительный,но все равно оч. медленно.У нас раньше был дом от дбк4.Так они мин. этаж в неделю из панелей складывали.И опорную стену надо было сразу строить.А не ждать.чтоб народ заборы крошил.Цитата "Батя_20 ":
О, спасибо!
Это важный позитивный сигнал как для инвесторов, так и для местных жителей, который свидетельствует о серьезности намерений компании.
Анна Борисовна
Постоянный пользователь
476
20 июня 2015
19 окт 2015 07:39
Цитата "wipe007":Сигнал положительный,но все равно оч. медленно.У нас раньше был дом от дбк4.Так они мин. этаж в неделю из панелей складывали.И опорную стену надо было сразу строить.А не ждать.чтоб народ заборы крошил.
Если вас не устраивает этот объект в чем либо, забирайте деньги и владывайте в ДБК раз они таки надежные, быстрые и т.д.
Давайте прекратим нагнитать обстановку.
Батя_20
Б
Постоянный пользователь
446
04 сентября 2015
19 окт 2015 07:43
Цитата "wipe007":Сигнал положительный,но все равно оч. медленно.У нас раньше был дом от дбк4.Так они мин. этаж в неделю из панелей складывали.И опорную стену надо было сразу строить.А не ждать.чтоб народ заборы крошил.
Если рассуждать логически, то сейчас им нет смысла гнать этаж в неделю при заявленном сроке сдачи в конце 2016-го. По всей видимости текущая задача максимум сейчас до морозов (декабрь) закончить фундаментные работы на всех 4-х домах первой очереди. После этого они законсервируют стройку до весны. А уже весной 2016 начнутся интенсивные работы.
Согласен по поводу склонов. Но начинать укрепление не начав толком стройку тоже не логично.
Lolipopchik
Старожил
567
26 сентября 2015
19 окт 2015 07:59
https://domik.ua/novosti/kak-postroit-30-etazhnyj-dom-za-360-chasov-n241961.html
я верю что одна из ведущих строительных компаний страны в состоянии за год построить 4 домика.. домишки ))))
я верю что одна из ведущих строительных компаний страны в состоянии за год построить 4 домика.. домишки ))))
wipe007
Ветеран
1 946
18 сентября 2014
19 окт 2015 08:31
Аня.,ну не начинайте опять.Если мы здесь,значит объект устраивает.Скорость не нравится.Есть с чем сравнивать.хочется побыстрее.А вам могу также ответить-если вам не нравятся тут соседи.,то забирайте деньги и покупайте в дбк.Там.,наверное.,лучшие соседи.Не нагнетайте вы.Я не сказала ничего военного.Цитата "Анна Борисовна":
Если вас не устраивает этот объект в чем либо, забирайте деньги и владывайте в ДБК раз они таки надежные, быстрые и т.д.
Давайте прекратим нагнетать обстановку.
Анна Борисовна
Постоянный пользователь
476
20 июня 2015
19 окт 2015 09:12
Цитата "wipe007":Аня.,ну не начинайте опять.Если мы здесь,значит объект устраивает.Скорость не нравится.Есть с чем сравнивать.хочется побыстрее.А вам могу также ответить-если вам не нравятся тут соседи.,то забирайте деньги и покупайте в дбк.Там.,наверное.,лучшие соседи.Не нагнетайте вы.Я не сказала ничего военного.
У вас негативный настрой, вы постоянно чем то не довольны, внимательно прочтите свои сообщения. Меня устраивает все.
wipe007
Ветеран
1 946
18 сентября 2014
19 окт 2015 09:27
Самый ,что ни есть,позитивный настрой.Просто опыт у меня инвестирования есть.И я вижу,что делается все ни шатко,ни валко.Цитата "Анна Борисовна":
У вас негативный настрой, вы постоянно чем то не довольны, внимательно прочтите свои сообщения. Меня устраивает все.
Evgeniya13
E
Постоянный пользователь
353
19 сентября 2015
19 окт 2015 09:30
Цитата "Оленка_":Так укріплюють схил до вул. Замковецької.
Отлично!! Спасибо за фото!! Наши строители молодцы!!!
alexix
a
Старожил
581
01 апреля 2015
19 окт 2015 09:33
обратите внимание на фото 2-укрепление склона(там развалины дома). Там довольно большой участок(развалины,мусор), между Замковецкой и нами, как раз посредине первого дома. Теоретически помимо новой дороги можна сделать еще выезд на Замковецкую?!?!?
alexix
a
Старожил
581
01 апреля 2015
19 окт 2015 09:36
Оленка, а чому "потенційні" а не реальні? Є сумніви, чи вибираєте?
alycha22
Постоянный пользователь
277
07 августа 2015
19 окт 2015 11:23
Спасибо за фото


Dimon_the_best
D
Постоянный пользователь
262
21 мая 2015
19 окт 2015 11:23
Цитата "alexix":обратите внимание на фото 2-укрепление склона(там развалины дома). Там довольно большой участок(развалины,мусор), между Замковецкой и нами, как раз посредине первого дома. Теоретически помимо новой дороги можна сделать еще выезд на Замковецкую?!?!?
Можно сделать ? как это ? Есть план, есть время, то что будет удобней жильцам КГС не особо интересует.
Вы на плане видите выезд на замковецкую ? )
alexix
a
Старожил
581
01 апреля 2015
19 окт 2015 12:31
[
Вы на плане видите выезд на замковецкую ? )[/quote]
План это чертеж. Кто бывает на стройке, обратите внимание, где-то посредине двора дома №1 на безхозный частный участок(хотя наверняка хозяин есть, реально картину портит). Написал-теоретически, реально когда спрашивал прораба на стройке получил ответ , что будет укрепленый вал с ограждением
Вы на плане видите выезд на замковецкую ? )[/quote]
План это чертеж. Кто бывает на стройке, обратите внимание, где-то посредине двора дома №1 на безхозный частный участок(хотя наверняка хозяин есть, реально картину портит). Написал-теоретически, реально когда спрашивал прораба на стройке получил ответ , что будет укрепленый вал с ограждением
Antoxa7
A
Пользователь
25
27 сентября 2015
19 окт 2015 14:02
Снова все 4 дома на сайте КГС сдаються в одно и тоже время. Поменяли дату на июль 😄😄
alexix
a
Старожил
581
01 апреля 2015
19 окт 2015 14:12
Цитата "Antoxa7":Снова все 4 дома на сайте КГС сдаються в одно и тоже время. Поменяли дату на июль 😄😄
это уже напоминает игру- с мая месяца раз 5 меняли: то плюс 5 месяцев, то минус 5 месяцев. Короче, ставьте среднее 30.10.2016
Авторський канал ріелтора в Іспанії
Знайомтесь з Бенідормом, нерухомістю та стилем життя. Новобудови регіону, аналітика, інвестиції
Подробнее
- ЖК H2O | Stolitsa Group | Киев, ул. Колекторная06.0421
- ЖК Montreal House | Alliance Novobud | Київ, вул. Велика Васильківська, 102у06.04537
- ЖК Nordica Residence | РіЕЛ | Київ, Залiзничне шосе, 45а06.0479
- ЖК Maxima Residence | РіЕЛ, Bosphorus Development | Київ, вул. Євгена Коновальця, 3006.043
- ЖК Sister | РіЕЛ | Київ, вул. Клеманська, 306.044
- ЖК Діброва Парк | IB Alliance | Киев, ул. Виктора Некрасова (Северо-Сырецкая)06.042 008
- ЖК Урловский-1 | Киевгорстрой, bUdCapital | Киев, ул. Причальная, 1106.043 814
- ЖК Атлант на Озерной | Атлант | Новоселки, ул. Озерная04.041 182
- ЖК Family and Friends | 2 очередь | GEOS | Киев, ул. Новополевая, 202.04540
- ЖК Olympic Park | Олимпик Парк | Status Group | Киев, Харьковское шоссе, 21001.04559
- Стоит ли сейчас покупать недвижимость?06.045 039
- На що звертати увагу при покупці квартири?30.032
- Rivne Invest Forum у Рівному — дводенна подія04.031
- Нужны или не нужны риэлторы? Не понимаю!03.021 503
- Lviv Build Forum | Декілька слів з власного досвіду30.011
- Планирую аренду квартиры в районе Подола27.014
- Купівля квартири в новобудові коли сусудні квартири не будуть заселені16.012
- Двоповерхові квартири в новобудовах, переваги та недоліки, враження?30.1213
- Походження грошей на купівлю квартири при її продажу27.126
- Пруд на даче20.0221
- Отзывы о кондиционерах. Какой кондиционер лучше19.02281
- Болит спина11.0274
- Выбор ноутбука. Отзывы о ноутбуках24.0180
- Постройка бани20.1218
- Кухонные столешницы. Отзывы о практичных и неубиваемых вариантах13.11111
- Где найти качественные полотенца?04.092
- Орхидеи. Как ухаживать за орхидеями29.0818
- Выбор пылесоса. Отзывы о ваших пылесосах26.0866
- Апарт-комплекс Тиса Renovation | Ужгород. вул. Сергія Мартина, 429.013
- Львів, вул. Бережанська, 54 | Інтергал-Буд26.0133
- ЖК Grand Palace | Хмельницький, вул. Подільська, 11521.0116
- ЖК Sakura | Свалява, пров. Достоєвського, 418.016
- Львів, вул. Трускавецька | Галжитлобуд11.016
- ЖК Lazur Sky | Львів, вул. Зелена, 115д02.013
- Как не снимая старую эмаль покрасить сверху акриловой (латексной) краской?17.033
- Выбираю акриловую краску17.0320
- Выбираю краску по металлу. Поделитесь советом и опытом17.032
- Какую выбрать грунтовку и шпатлевку17.0314
- Диммерний блок для сценічних софітів постійно вимикається14.033
- Установка насоса для решения проблем с водой07.039
- Отклеилась краска вместе с малярной лентой. В чем проблема?25.0215
- Шпаклевка трескается под обоями25.022
- Плесень на стене - как с этим бороться25.0264
- Электрик Киев . Замена розеток, выключателей, люстр, автоматов05.041
- Де зараз краще оформити медичну довідку або санітарну книжку?31.031
- Просунуті сучасні системи опалювання31.031
- DOOR(*)COM(*)UA — продаж стратегічного домену для лідера дверного ринку України30.031
- Продаж 1-кімнатна Квартира Ірпінь , ЖК Молодість, вул. Соборна 2К/2525.031
- Клиника урологии в Николаеве02.031
- Мебельная фурнитура, скидки производителям мебели18.021
- Мебель под заказ | Объявления об изготовлении мебели18.02100
- Клінінг Київ: професійне прибирання від Partner Clean (20+ років досвіду)10.021
Купуй квартиру на Domik.ua
Широкий вибір квартир від власників, забудовників та ріелторів
Подробнее