ЖК Софія Клубний | Sofia Club | Мартинов | Софіївська Борщагівка, вул. Соборна, 100
| Забудовник | Мартинов |
| Здача ЖК | 2015 - 2022 р. |
| Планування | від 28 000 Грн/м² |
Ваше враження про цей проект:
Можна вибрати 1 варіант відповіді. Можна міняти відповіді. Всього голосів: 23.
| 7/30% | ||
| 7/30% | ||
| 9/39% |
wildwhiteash
w
Новачок
12
16 квітня 2017
08 січ 2018 20:55
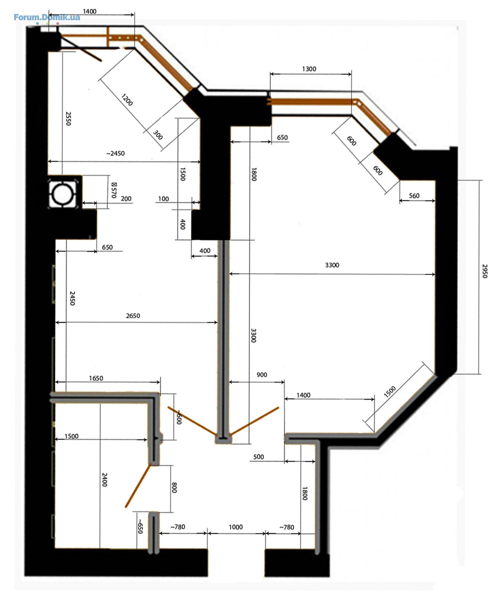
примерный обмерный план 35.9квм Зелёная 12.
Привет соседям (Зелёная 12/68).
Все видели эти однушки, но мало кто пошёл и померял. Там где на плане '~' значит я не совсем уверен или размер высчитан
Привет соседям (Зелёная 12/68).
Все видели эти однушки, но мало кто пошёл и померял. Там где на плане '~' значит я не совсем уверен или размер высчитан
podol1
Гість
2
18 грудня 2017
11 січ 2018 10:03
Цитата "wildwhiteash":примерный обмерный план 35.9квм Зелёная 12.
Привет соседям (Зелёная 12/68).
Все видели эти однушки, но мало кто пошёл и померял. Там где на плане '~' значит я не совсем уверен или размер высчитан
Так а сколько должно быть и сколько на самом деле? Или у них все верно посчитано и соответствует заявленным цифрам?
Tanya Green
Перехожий
1
15 листопада 2016
11 січ 2018 11:34
Цитата "nikstinger":Всем привет! Рассматриваю вариант покупки квартиры в клубном, но стопороит один момент - коммуникации. Вода из скважин это хорошо, но на сколько её хватит? Вроде как обещают в каком-то будущем сделать подключение к Киеву (я так понимаю через Вишневое), но когда это будет... У кого какие мысли по поводу будущих проблем с водой? Стоит ли связываться с таким вариантом?
А откуда у вас такая информация?
На Клубном нет ни одной скважины. Что водоснабжение, что канализация - централизованно.
wildwhiteash
w
Новачок
12
16 квітня 2017
11 січ 2018 21:41
Цитата "podol1":
Так а сколько должно быть и сколько на самом деле? Или у них все верно посчитано и соответствует заявленным цифрам?
я не считал сколько должно быть, я руководствовался другой меркантильной целью, где и какого размера у меня влазят диваны и неприятно удивился ванной 1.5 (решил построить бассейн в длинну)
Andrew Ch
AC
Новачок
13
15 січня 2018
15 січ 2018 13:05
Доброго времени суток. wildwhiteash - я так понял вы уже инвестировали в квартиру по зелёной 12, скажите какой у Вас этаж? может мы соседи?
wildwhiteash
w
Новачок
12
16 квітня 2017
17 січ 2018 20:30
8-й этаж 68я
Andrew Ch
AC
Новачок
13
15 січня 2018
18 січ 2018 06:50
Ну я чуть ниже взял на 7-м угловую
Vasyanya
Користувач
22
22 червня 2016
18 січ 2018 10:06
окей, кто уже приобрел кв? не смущает, что во первых - далеко от дороги, во-вторых вечные пробки?!
и, что будет впереди строится? вдруг перед ЖК настроят кучу высоток и будет вид в стену соседям без солнца и тд?!
и, что будет впереди строится? вдруг перед ЖК настроят кучу высоток и будет вид в стену соседям без солнца и тд?!
Andrew Ch
AC
Новачок
13
15 січня 2018
18 січ 2018 10:20
Земля навпроти теж Мартинова, на скільки я знаю буде критий паркінг і здається він хотів щось на зразок розважального комплексу будувати. А пробки можна об'їхати потрібно знати як - у мене декілька колег і друзів в комплексах Мартинова проживає - всі задоволені.
wildwhiteash
w
Новачок
12
16 квітня 2017
18 січ 2018 22:37
По поводу пробок - это неизбежно, и с утра до метро общественным транспортом можно ехать от 30 минут до бесконечности. Личный авто тоже не сильно решает вопрос. Менеджеры в ОП грозятся отдельным выездом на ул.Киевскую, а она хотя бы по две полосы в каждую сторону, но пока это в проектах. Мораль = выезжаем раньше.
---
по поводу "а что построят перед окнами" смотрим генеральный план застройки квартала, там ВСЁ есть.
---
по поводу "а что построят перед окнами" смотрим генеральный план застройки квартала, там ВСЁ есть.
wildwhiteash
w
Новачок
12
16 квітня 2017
18 січ 2018 22:51
там где виднеются новые коммуникации, чуть справа будет дом. Расстояние спереди видно и на уровне восьмого этажа я всё равно получу солнце до вечераЦитата "Vasyanya":окей, кто уже приобрел кв? не смущает, что во первых - далеко от дороги, во-вторых вечные пробки?!
и, что будет впереди строится? вдруг перед ЖК настроят кучу высоток и будет вид в стену соседям без солнца и тд?!
wildwhiteash
w
Новачок
12
16 квітня 2017
18 січ 2018 23:19
https://youtu.be/gpoTptpEy9A вид из окон на уровне восьмого этажа Зелёная 12
Аннет_и_Андрей
Новачок
9
26 січня 2018
26 січ 2018 12:58
Добрый день! Абрикосова 3. Соседи есть?
Ansonic
A
Постійний користувач
105
27 лютого 2016
31 січ 2018 21:46
Кто был на стройке днём? Работа кипит?
Аннет_и_Андрей
Новачок
9
26 січня 2018
01 лют 2018 07:46
Цитата "Ansonic":Кто был на стройке днём? Работа кипит?
Я там каждый день бываю. Кипит аж закипает. Особенно когда мороз немного спал.
nat_vasld
n
Новачок
8
04 лютого 2018
04 лют 2018 13:12
Цитата "wildwhiteash":примерный обмерный план 35.9квм Зелёная 12.
Привет соседям (Зелёная 12/68).
Все видели эти однушки, но мало кто пошёл и померял. Там где на плане '~' значит я не совсем уверен или размер высчитан
Будем соседями) Зелёная 12/67

wildwhiteash
w
Новачок
12
16 квітня 2017
04 лют 2018 17:16
Цитата "nat_vasld":
Будем соседями) Зелёная 12/67
Трёхкомнатная рядом? =) Будем

wildwhiteash
w
Новачок
12
16 квітня 2017
04 лют 2018 18:15
хочется найти соседей из 12/69
wildwhiteash
w
Новачок
12
16 квітня 2017
04 лют 2018 20:41
Цитата "nat_vasld":
Будем соседями) Зелёная 12/67
Если сделаете в электронном виде план вашей квартиры без размеров, то могу сделать примерный обмерный план, я в течении недели-двух буду на стройке, ибо у меня в пару размерах своей квартиры есть сомнения, могу и вашу рулеткой кинуть.
nat_vasld
n
Новачок
8
04 лютого 2018
06 лют 2018 20:30
Цитата "wildwhiteash":
Если сделаете в электронном виде план вашей квартиры без размеров, то могу сделать примерный обмерный план, я в течении недели-двух буду на стройке, ибо у меня в пару размерах своей квартиры есть сомнения, могу и вашу рулеткой кинуть.
Ой, сори с 63 это 7 этаж, так понимаю под вами тоже 35,9

Авторський канал ріелтора в Іспанії
Знайомтесь з Бенідормом, нерухомістю та стилем життя. Новобудови регіону, аналітика, інвестиції
Детальніше
- ЖК Трояндовий | Бровари, вул. Фельдмана, вул. Спортивна04.11737
- ЖК Chalet | Standard Development | Київ, вул. Львівська, 18-б04.11117
- ЖК Урлівський-1 | Київміськбуд, BudCapital | Київ, вул. Причальна, 1104.113 799
- Київ, вул. Кудряшова, 14а | Київміськбуд (скасовано)04.1126
- ЖК Sanville Park | Санвиль Групп | Святопетрівське, вул. Богдана04.1141
- ЖК Family and Friends | 2 черга | GEOS | Київ, вул. Новопольова, 203.11531
- Власники квартир з ЖК Крона парк 2 в будинку 3 (Соборна 23, м. Бровари) - відгукніться!03.111
- ЖК Дніпровська Мрія | Галжитлобуд | ул. Сосюры, 603.11796
- ЖК Урлівський-2 | Київміськбуд | Київ, вул. Клеманська, Причальна, Сортувальна02.112 066
- ЖК Заречный | bUd development | пр-т Н. Бажана, ул. Заречная02.1111 515
- Дно рынка недвижимости и влияющие факторы04.1115 253
- Чи варто зараз купувати нерухомість?29.104 723
- Чи варто купити будинок в спокійному регіоні, в Вінниці?17.092
- Завышеные тарифы на отопление. Как обжаловать и куда писать?19.082
- Іпотека від Банків із найкращими умовами | Обговорення кредитів під заставу нерухомості13.08192
- Краудфандинг - типы группового инвестирования01.083
- Планую оренду квартири в районі Подолу30.073
- Про агентство Атлант-А23.0722
- Допоможіть розібратись з податками08.053
- Где найти качественные полотенца?04.092
- Орхидеи. Как ухаживать за орхидеями29.0818
- Выбор пылесоса. Отзывы о ваших пылесосах26.0866
- Відгуки про ортопедичні матраци. Матраци для комфортного сну22.0891
- Болит спина07.0873
- Какую выбрать мебель на террасу?04.084
- Стоит ли покупать кофе-машину13.07154
- Декоративные элементы в интерьере. Советы и отзывы о их сочетании12.0716
- Декор окна без штор, варианты и советы12.0746
- ЖК Kandinsky Odessa Residence | Кандинский | Одесса, Французский бульвар, 63/6515.10182
- ЖК Дом у моря | Югінвест | Южный, ул. Иванова10.1017
- ЖК Sakura | Свалява, пров. Достоєвського, 404.105
- ЖК Імперіал Парк Авеню | Імперіал Буд | Чернівці, вул. Рівненська, 718.084
- ЖК Manhattan | Blago developer | Івано-Франківськ, вул. Романа Левицького, вул. Ленкавського04.0815
- ЖК Зелений двір | Спілка забудівників | Івано-Франківськ, вул. Тисменицька04.089
- Кварц виниловая плитка LG Decotile или Berry Alloc29.106
- Напольные покрытия - чтобы было тепло, красиво и недорого29.1018
- Яка реальна ціна чорнових робіт в 2025 для будинку08.101
- Хто планує поїхати на будівельний форум у Львові цього вересня?01.093
- Тепла підлога, відгуки та поради28.08205
- Крыша потекла, что делать?25.0818
- Перепланування | прохання та поради щодо конкретних ситуацій19.082 216
- Матеріал багатоквартирного будинку. Який найкращий?13.0812
- Кліматичне обладнання норвезької ТМ Bergen07.082
- Продам фонарик шокер ОСА 928 Power plus04.111
- Пошук обладнання для магазину21.101
- Как отвечать на How are You?04.102
- Что подарить мужчине?24.09351
- Мій сайт не з'являється в результатах пошуку20.093
- Домик для кота26.085
- Тренажер в доме. Какой выбрать24.0817
- Меблі на замовлення | Оголошення про виготовлення меблів18.0899
- Как уберечь холодильник от перепадов напряжения09.0810
Купуй квартиру на Domik.ua
Широкий вибір квартир від власників, забудовників та ріелторів
Детальніше