ЖК Krona Park | Крона парк | Cityconsult Development | Бровары, ул. Вячеслава Черновола
| Забудовник | Альянс Новобуд |
| Здача ЖК | 2020 - 2021 р. |
| Планування | від 20 000 Грн/м² |
Ваше общее впечатление об Объекте и Компании:
Можна вибрати 1 варіант відповіді. Можна міняти відповіді. Всього голосів: 43.
| 4/9% | ||
| 4/9% | ||
| 8/19% | ||
| 10/23% | ||
| 17/40% |
Kravec36
Постійний користувач
214
04 березня 2017
24 вер 2017 09:00
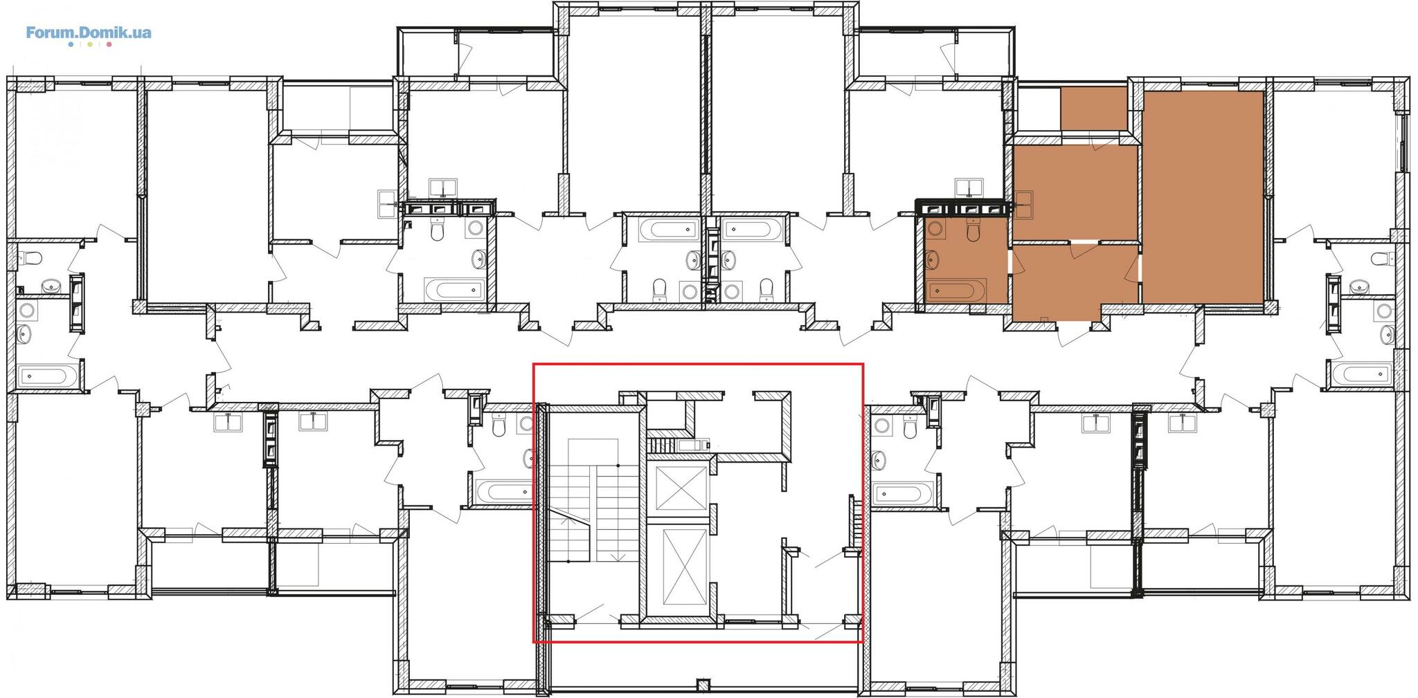
Не прикрепилась картинка:
ПетрИваныч
Постійний користувач
446
19 жовтня 2016
24 вер 2017 09:12
Цитата "Kravec36":
Если я правильно интерпретирую схему этажа - то так же, как и во втором доме - внутри, выделил на схеме красным то, что насколько я понимаю, является зоной лифтов и лестницей. Поправьте, если ошибаюсь.
Полагаю, что вы правы. в обоих домах лестница внутри.
Kravec36
Постійний користувач
214
04 березня 2017
24 вер 2017 09:17
Цитата "Tancurik":По поводу бизнес клас, это не более чем рекламная уловка. Возьмите для примера 4 й дом зеленого квартала ( заявленного как бизнес клас) и сравните с лесным свечками. Все познаётся в сравнение.... из заявленного бизнес клас, застройщик не анонсировал ещё не одного пункта, что конкретно отнесло эту стройку к бизнес классу....
Стойте, а на какой список критериев вы оринетируетесь, говоря "не одного пункта"? Я как минимум один слету назову - собственный паркинг.
Kravec36
Постійний користувач
214
04 березня 2017
24 вер 2017 09:24
Цитата "ПетрИваныч":
Полагаю, что вы правы. в обоих домах лестница внутри.
О, ну вот и не один я так думаю. А входы в парадные будут со двора или с улицы? Что-то я упустил этот момент. На генплане вроде со двора -
верно?Ir_BO
Постійний користувач
240
08 березня 2017
24 вер 2017 10:44
Цитата "Kravec36":
Но закономерно, если там нет трешек - в отличие от второго дома. Но проблемы не вижу, почему многовато?
Почему нет 3к?
"Планировочные решения представлены одно- (41,07 кв. м до 53,93 кв. м), двух- (от 62,93 кв. м до 84,07 кв. м) и трехкомнатными (117,54 кв. м) квартирами различных типов. Двух- и трехкомнатные квартиры оборудованы двумя санузлами. Некоторые квартиры на верхних этажах имеют собственные террасы. Первые этажи отведены под коммерческую недвижимость." Наверное, трехкомнатные будут в той части, которая напротив второго дома?
А сейчас анонсирована только часть дома, что параллельно Симоменко.Ir_BO
Постійний користувач
240
08 березня 2017
24 вер 2017 10:46
Цитата "Kravec36":
О, ну вот и не один я так думаю. А входы в парадные будут со двора или с улицы? Что-то я упустил этот момент. На генплане вроде со двора -верно?
Думаю, что со двора. Снаружи - коммерческая недвижимость, со своими входами. По крайней мере именно так это выглядит на визуализациях.
FanCase
Інвестор
86
09 вересня 2017
24 вер 2017 12:00
Цитата "ruslan-chek":
Цена 13780-это при 100% оплате?
ДА

ruslan-chek
r
Постійний користувач
122
15 травня 2014
24 вер 2017 13:39
На уровне котлована как-то дорого получается.Интересно какая стоимость кв.м.при оплате 20-30%.
yalynka
Старожил
906
28 лютого 2017
24 вер 2017 19:23
Цитата "Kravec36":Не прикрепилась картинка:
щось мені підказує, що ви праві)) очевидно, що то ліфти і сходи)) а звідки взагалі інформація, що сходи мають бути на вулиці?
yalynka
Старожил
906
28 лютого 2017
24 вер 2017 19:29
Цитата "bugi":Просмотрев. Вторую очередь там на этаже по 7 квартир получаеться это многовато
чому? якраз 7 це ще в межах норми))
Юлия_Ф
Ю
Постійний користувач
329
01 листопада 2015
25 вер 2017 12:43
Цитата "yalynka":
щось мені підказує, що ви праві)) очевидно, що то ліфти і сходи)) а звідки взагалі інформація, що сходи мають бути на вулиці?
Меня тоже удивил этот вопрос..Разве сейчас бывают ЖК без внутренней лестничной клетки?
Ekaterina_07
E
Старожил
638
11 серпня 2011
25 вер 2017 13:18
Цитата "bugi":Просмотрев. Вторую очередь там на этаже по 7 квартир получаеться это многовато
во-первых на этаже по 8квартир во второй очереди( в 2х подъездах), в первой очереди тоже если не ошибаюсь по 8квартир в одной из секций... Немного не понимаю многовато это по каким меркам или критериям? в Зеленом квартале по 9квартир на этаже...
alex-bored
Користувач
32
03 листопада 2016
25 вер 2017 13:52
Цитата "Ekaterina_07":
во-первых на этаже по 8квартир во второй очереди( в 2х подъездах), в первой очереди тоже если не ошибаюсь по 8квартир в одной из секций... Немного не понимаю многовато это по каким меркам или критериям? в Зеленом квартале по 9квартир на этаже...
Ну,вот критерии бизнесс-класса.
Цитата:Относительно количества квартир в доме мнения неоднозначны. Скорее, стоит исходить из того, что он не может быть "муравейником" на сотни квартир.
Количество квартир на этаже – до 6. Исходя из комфортности проживания в доме, логично, что чем выше этажность, тем меньшим должно быть количество квартир на этаже.
Источник: domik.ua
//domik.ua/novosti/osnovnye-kriterii-ned vizhimosti-biznes-klassa-n238220.html
ruslan-chek
r
Постійний користувач
122
15 травня 2014
25 вер 2017 18:54
Был сегодня в оп - сказали скоро будет очередное подорожание + 3-4%.
yalynka
Старожил
906
28 лютого 2017
26 вер 2017 07:26
Цитата "alex-bored":
Ну,вот критерии бизнесс-класса.
мені здається, що це дуже розмиті критерії)) я зустрічала багато комплексів бізнес-класу, в яких квартир на поверсі більше шести..головне, щоб ліфти справно працювали, тоді не буде ніякого дискомфорту))
Igor_shutc
Постійний користувач
220
01 березня 2017
27 вер 2017 08:40
Цитата "yalynka":
мені здається, що це дуже розмиті критерії)) я зустрічала багато комплексів бізнес-класу, в яких квартир на поверсі більше шести..головне, щоб ліфти справно працювали, тоді не буде ніякого дискомфорту))
Прочитал вашу дискуссию относительно класса. Ушел гуглить. Домик не единственный ресурс, пытавшийся как-то навести порядок в классификации, вот харьковский портал: цитирую о БК: "Квартиры в новых домах бизнес-класса. Естественно, более высокого качества, нежели две предыдущие категории. Здесь и ограничения по технологиям и материалам (монолитно-каркасная либо кирпичная кладка из силикатного керамического кирпича), и по количеству квартир на этаже (не более 8), площадь на одного человека в таких домах составит не менее 40 кв. м.; также обязательно 1 паркоместо на каждую квартиру." Есть и такое мнение. Думаю, что вы правы: количество квартир на этаже не решающий фактор при определении класса. Тут и технология строительства, и выбор материалов, и паркинг, и территория, и еще много чего.
Igor_shutc
Постійний користувач
220
01 березня 2017
27 вер 2017 11:33
Цитата "ruslan-chek":Был сегодня в оп - сказали скоро будет очередное подорожание + 3-4%.
вполне ожидаемо, до сдачи еще не раз подрастут.
Ekaterina_07
E
Старожил
638
11 серпня 2011
27 вер 2017 16:33

_Kit_
Постійний користувач
186
19 грудня 2016
27 вер 2017 16:50
А есть кто взял квартиру на втором этаже? Вот мы как раз подумываем.
Непонятно просто насколько повезет с "коммерческой недвижимостью" что под квартирой поселится. Может опыт у кого есть такой в других новостроях.
Непонятно просто насколько повезет с "коммерческой недвижимостью" что под квартирой поселится. Может опыт у кого есть такой в других новостроях.
yalynka
Старожил
906
28 лютого 2017
27 вер 2017 18:28
Цитата "Igor_shutc":
Прочитал вашу дискуссию относительно класса. Ушел гуглить. Домик не единственный ресурс, пытавшийся как-то навести порядок в классификации, вот харьковский портал: цитирую о БК: "Квартиры в новых домах бизнес-класса. Естественно, более высокого качества, нежели две предыдущие категории. Здесь и ограничения по технологиям и материалам (монолитно-каркасная либо кирпичная кладка из силикатного керамического кирпича), и по количеству квартир на этаже (не более 8), площадь на одного человека в таких домах составит не менее 40 кв. м.; также обязательно 1 паркоместо на каждую квартиру." Есть и такое мнение. Думаю, что вы правы: количество квартир на этаже не решающий фактор при определении класса. Тут и технология строительства, и выбор материалов, и паркинг, и территория, и еще много чего.
взагалі то, я якось про матеріали ніколи не замислювалась, але напевно це і є вирішальний фактор, не вважаєте так?))
Купуй квартиру на Domik.ua
Широкий вибір квартир від власників, забудовників та ріелторів
Детальніше
- ЖК Киевская Швейцария | ИнтерГал-Буд | ул. Макаровская, 316.1218
- Де придбати квартиру в новобудові?16.122 722
- ЖК Paradise Avenue | ZIM Group | Крюківщина, вул. Чорновола16.122 502
- МФК Intergal City | Інтергал Сіті | ІнтерГал-Буд | Київ, вул. Старонаводницька, 16-Б16.1263
- ЖК Абрикосовий | Київміськбуд | Київ, вул. Абрикосова, вул. Жулянська15.122 060
- ЖК Sense City | Prostir | Софіївська Борщагівка, вул. Соборна, 77а15.1227
- ЖК Отрада | Київміськбуд, bUdCapital | Київ, просп. Відрадний, 93/213.122 755
- ЖК Chalet | Standard Development | Київ, вул. Львівська, 18-б12.12123
- ЖК Family and Friends | 3 черга | GEOS | Київ, вул. Новопольова, 212.1224
- ЖК Family and Friends | 2 черга | GEOS | Київ, вул. Новопольова, 212.12536
- Чи варто зараз купувати нерухомість?16.124 871
- Дно рынка недвижимости и влияющие факторы16.1115 264
- Різонність ціни за оренду квартири (12 тисяч гривень)13.111
- Додаткові розрахунки між орендодавцями та орендарями06.1127
- Чи варто купити будинок в спокійному регіоні, в Вінниці?17.092
- Завышеные тарифы на отопление. Как обжаловать и куда писать?19.082
- Іпотека від Банків із найкращими умовами | Обговорення кредитів під заставу нерухомості13.08192
- Краудфандинг - типы группового инвестирования01.083
- Планую оренду квартири в районі Подолу30.073
- Кухонные столешницы. Отзывы о практичных и неубиваемых вариантах13.11111
- Отзывы о кондиционерах. Какой кондиционер лучше08.11278
- Где найти качественные полотенца?04.092
- Орхидеи. Как ухаживать за орхидеями29.0818
- Выбор пылесоса. Отзывы о ваших пылесосах26.0866
- Відгуки про ортопедичні матраци. Матраци для комфортного сну22.0891
- Болит спина07.0873
- Какую выбрать мебель на террасу?04.084
- Стоит ли покупать кофе-машину13.07154
- ЖК Стандарт | Стандарт Буд | Полтава, вул. Великотирнівська, 9а04.128
- ЖК ARTVILLE | ZEZMAN | Одеса, Овідіопольська дорога02.1231
- Микрорайон на Лузановке | Одесса, Николаевская дорога | Консоль30.116
- Харьков, Проект "Consol Green City" - "Консоль"11.113
- ЖК Kandinsky Odessa Residence | Кандинский | Одесса, Французский бульвар, 63/6515.10182
- ЖК Дом у моря | Югінвест | Южный, ул. Иванова10.1017
- Канализация и водоснабжения - оценка работы замены труб17.121
- Перепланування | прохання та поради щодо конкретних ситуацій09.122 217
- Подскажите, какие ворота на гараж лучше установить из современных?02.124
- Підлога на кухні - ламінат або плитка?13.1121
- Пластиковые окна, какие лучше - поделитесь отзывами09.11241
- Кварц виниловая плитка LG Decotile или Berry Alloc29.106
- Напольные покрытия - чтобы было тепло, красиво и недорого29.1018
- Яка реальна ціна чорнових робіт в 2025 для будинку08.101
- Хто планує поїхати на будівельний форум у Львові цього вересня?01.093
- Електрична тепла підлога28.111
- Продам фонарик шокер ОСА 928 Power plus04.111
- Как отвечать на How are You?04.102
- Что подарить мужчине?24.09351
- Мій сайт не з'являється в результатах пошуку20.093
- Домик для кота26.085
- Тренажер в доме. Какой выбрать24.0817
- Меблі на замовлення | Оголошення про виготовлення меблів18.0899
- Как уберечь холодильник от перепадов напряжения09.0810
Авторський канал ріелтора в Іспанії
Знайомтесь з Бенідормом, нерухомістю та стилем життя. Новобудови регіону, аналітика, інвестиції
Детальніше