ЖК "Фамильный", Бровары, вул. Симона Петлюри, 20 ( ул. Черняховского, 20 ) - "Dim Group"
Ваше общее впечатление об Объекте и Компании:
Можна вибрати 1 варіант відповіді. Можна міняти відповіді. Всього голосів: 83.
| 1/1% | ||
| 2/2% | ||
| 10/12% | ||
| 10/12% | ||
| 60/72% |
bigfortuna
Користувач
100
10 липня 2015
22 серп 2016 21:29
А если серьезно, то думали ставить перегородку раздвижную - получится кухня 10 м.кв., комната-14 м.кв. Еще можно туалет и ванную сделать раздельно, тогда отдельный вход на кухню получится. Но вы правы, нужно с толковым дизайнером проконсультироваться.
alex_xander
a
Користувач
28
29 листопада 2015
23 серп 2016 20:28
Цитата "bigfortuna":А если серьезно, то думали ставить перегородку раздвижную - получится кухня 10 м.кв., комната-14 м.кв. Еще можно туалет и ванную сделать раздельно, тогда отдельный вход на кухню получится. Но вы правы, нужно с толковым дизайнером проконсультироваться.
Тоже мучаюсь этим вопросом, так как взял 37.5м. Не сильно хочется постоянно слышать запах котлеток в комнате, да и сан узел сделать раздельным тоже было бы не плохо.
Делать перегородку между кухней и остальной площадью действительно может получиться тесновато. Скорее всего кухня выйдет очень узкой, хотя и длинной. Вот в сан узле поставить перегородку как-то более реалистичным кажется. Более того если ставить - планирую что-то покрепче чем выдвижная стенка, например пеноблок или на худой конец гипсокартон. Но пока не был в квартире - могу только примерно представлять. После того, как побываю в самом помещении - думаю сразу понятно будет - есть ли смысл ставить перегородку. Вообще 37.5 кажется не очень то маленькой площадью для создания полноценной однушки, особенно если сравнить площадь с советской однушкой типа гостинки, которая еще меньше, но при этом с отдельной кухней как правило.
Вообщем толком не ясно. Если вдруг появятся какие-то супер идеи - поделитесь пожалуйста.

Inv66
Постійний користувач
114
04 грудня 2015
24 серп 2016 05:12
раздвижные двери неплохо справляются с задачей разделения кухни студии и гостиной.
Алюминиевый профиль + матовое стекло.
Профиль можно покрасить в текстуру дерева.
p.s. Если параметры помещения подходят, чтобы была линия дверей, и они удобно прятались, например две закрывают торец холодильника - две простенок.
у меня пока так получается,
но в другой планировке
Алюминиевый профиль + матовое стекло.
Профиль можно покрасить в текстуру дерева.
p.s. Если параметры помещения подходят, чтобы была линия дверей, и они удобно прятались, например две закрывают торец холодильника - две простенок.
у меня пока так получается,
но в другой планировке
bigfortuna
Користувач
100
10 липня 2015
24 серп 2016 07:25
Цитата "alex_xander":
Тоже мучаюсь этим вопросом, так как взял 37.5м. Не сильно хочется постоянно слышать запах котлеток в комнате, да и сан узел сделать раздельным тоже было бы не плохо.
Делать перегородку между кухней и остальной площадью действительно может получиться тесновато. Скорее всего кухня выйдет очень узкой, хотя и длинной. Вот в сан узле поставить перегородку как-то более реалистичным кажется. Более того если ставить - планирую что-то покрепче чем выдвижная стенка, например пеноблок или на худой конец гипсокартон. Но пока не был в квартире - могу только примерно представлять. После того, как побываю в самом помещении - думаю сразу понятно будет - есть ли смысл ставить перегородку. Вообще 37.5 кажется не очень то маленькой площадью для создания полноценной однушки, особенно если сравнить площадь с советской однушкой типа гостинки, которая еще меньше, но при этом с отдельной кухней как правило.
Вообщем толком не ясно. Если вдруг появятся какие-то супер идеи - поделитесь пожалуйста.
Я конечно не дизайнер, но суть перепланировки, я думаю, ясна (файлы До и После). Если что-то не выполнимо, то поправьте.
alex_xander
a
Користувач
28
29 листопада 2015
24 серп 2016 07:55
Цитата "bigfortuna":
Я конечно не дизайнер, но суть перепланировки, я думаю, ясна (файлы До и После). Если что-то не выполнимо, то поправьте.
Мне лично Ваш вариант очень нравится. Комната и кухня выйдет больше чем в советской трешке, в которой я сейчас проживаю. Единственное, что меня интересует в виду того, что я не строитель - это снос стены под дверь в кухню. Я правильно понял - в месте, обозначенном вами как дверь на кухню, стена не является несущей, и проблем с ее сносом быть не должно? Нужно будет обращаться в какие-то службы или к застройщику, для получения разрешения на такую операцию?
bigfortuna
Користувач
100
10 липня 2015
24 серп 2016 08:12
Цитата "alex_xander":
Мне лично Ваш вариант очень нравится. Комната и кухня выйдет больше чем в советской трешке, в которой я сейчас проживаю. Единственное, что меня интересует в виду того, что я не строитель - это снос стены под дверь в кухню. Я правильно понял - в месте, обозначенном вами как дверь на кухню, стена не является несущей, и проблем с ее сносом быть не должно? Нужно будет обращаться в какие-то службы или к застройщику, для получения разрешения на такую операцию?
Эта стена не несущая, т.е. ее можно сносить. Не знаю, как сейчас, но раньше можно было что-то перепланировать в квартире (без нарушения закона, т.е. не сносить несущие стены, не выносить радиаторы на балкон и т.д.), а потом пригласить представителя БТИ для замеров и получения нового тех.паспорта на квартиру. А как сейчас? Может опытные соседи подскажут?
investor110
i
Постійний користувач
129
07 вересня 2015
25 серп 2016 06:03
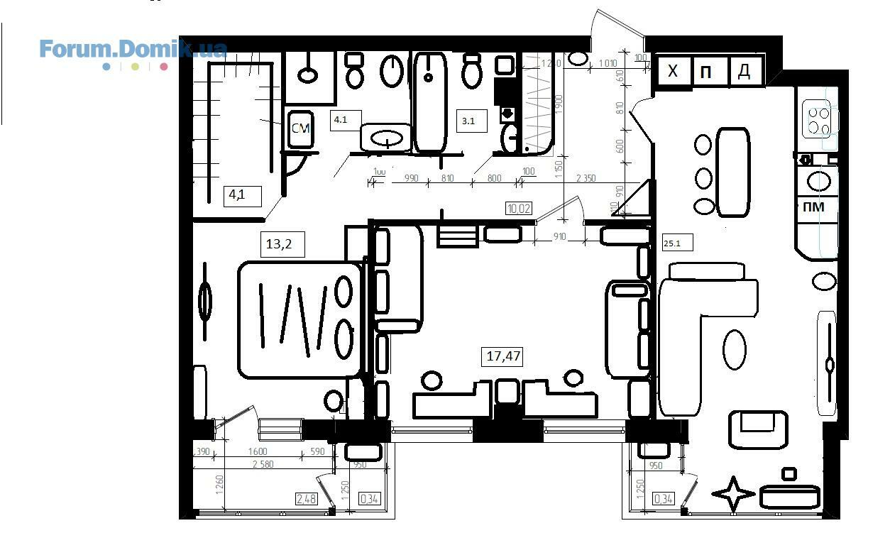
План 2-х комнатной квартиры 78 м.кв.
Zharv
Z
Постійний користувач
191
19 листопада 2015
25 серп 2016 07:15
Цитата "investor110":План 2-х комнатной квартиры 78 м.кв.
Не люблю я вот такие планы, я про то что не учитываются реальные размеры. А реальность может сильно огорчить потом. Я когда рисовал свои планы постоянно показывал рулеткой размеры супруге со словами "тебе точно хватит места, может больше?"
Теперь по существу:
1) В первом санузле возле унитаза я так понимаю бойлер нарисован, но там же стояк по плану + трубы... он туда скорее всего не влезет. В том углу по идее подразумевался сантех шкаф, а вот бойлер скорее всего перекочует над умывальником.
2) Второй санузел вызывает вопросы еще больше т.к стояк то у нас один, а слив должен идти под наклоном. Как бы вам не пришлось под унитазом подиум делать что-бы его приподнять. То-же самое и с душевой кабинкой.
3) На кухне там где у вас плита по логике то-же должен быть стояк и дай бог что-бы он был вплотную к шахте воздуховода. Еще не понятно чего дверь с кухни ведет на выход, дверь по нормальному должна открываться в другую сторону иначе ее постоянно нужно будет обходить. Диван то-же так и проситься к другой стенке иначе вы постоянно будете его обходить.
Ну и еще раз озвучу ... обычно зона готовки между плитой и умывальником, у вас же мало того это правило нарушено так еще и шахта между ними.
Как-то так, имхо)
Zharv
Z
Постійний користувач
191
19 листопада 2015
25 серп 2016 07:26
В догонку по поводу уклона канализации:
По СНИПу

По СНИПу

investor110
i
Постійний користувач
129
07 вересня 2015
25 серп 2016 08:24
Цитата "Zharv":
Не люблю я вот такие планы, я про то что не учитываются реальные размеры. А реальность может сильно огорчить потом. Я когда рисовал свои планы постоянно показывал рулеткой размеры супруге со словами "тебе точно хватит места, может больше?"
Теперь по существу:
1) В первом санузле возле унитаза я так понимаю бойлер нарисован, но там же стояк по плану + трубы... он туда скорее всего не влезет. В том углу по идее подразумевался сантех шкаф, а вот бойлер скорее всего перекочует над умывальником.
2) Второй санузел вызывает вопросы еще больше т.к стояк то у нас один, а слив должен идти под наклоном. Как бы вам не пришлось под унитазом подиум делать что-бы его приподнять. То-же самое и с душевой кабинкой.
3) На кухне там где у вас плита по логике то-же должен быть стояк и дай бог что-бы он был вплотную к шахте воздуховода. Еще не понятно чего дверь с кухни ведет на выход, дверь по нормальному должна открываться в другую сторону иначе ее постоянно нужно будет обходить. Диван то-же так и проситься к другой стенке иначе вы постоянно будете его обходить.
Ну и еще раз озвучу ... обычно зона готовки между плитой и умывальником, у вас же мало того это правило нарушено так еще и шахта между ними.
Как-то так, имхо)
Касательно слива во втором санузле, согласен, возможно надо сделать будет подьем всего санузла, чтоб не делать подиумов и тд, бойлер будет над унитазом, а там (в углу первого санузла)хотелось бы вместить инсталяцию для бочка туалета(это под вопросом).
Кстати, биде, наверное, не получится уместить в с/у маловато места.
Кухня- самое сложное, планирую что рабочей поверхностью будет "островок". При других модификациях - типа г-образных барных стоек выходит что кухонная часть помещения занимает много места. Хотелось бы чтоб в зоне отдыха было его бобольше. Если какие-то идеи подскажите.Касательно двери на кухне- вообще хочу раздвижную, чтоб не мешала.
Вообще, конечно, окончательный план наверное будет когда в квартиру попадем и выбьем перегородку между туалетом и кухней и балконом. Это точно надо делать 5- метров для одного С/у многовато. И тоже, надо выбивать перегодку с балконом, одного балкона для сушки белья хватит точно., а это где то +~ 4,5 м.кв куда можно поставить чудесно елку и синтезатор. А самое главное увеличить простор.
investor110
i
Постійний користувач
129
07 вересня 2015
25 серп 2016 08:25
Большое спасибо схемку.
inv_92
i
Постійний користувач
135
03 листопада 2015
25 серп 2016 08:44
Цитата "bigfortuna":
Я конечно не дизайнер, но суть перепланировки, я думаю, ясна (файлы До и После). Если что-то не выполнимо, то поправьте.
Хочу внести свои пять копеек в вашу перепланировку: Обратите внимание на ширину коридоров. Судя с картинки - там 810мм. Это очень мало для прохода.
Рекомендую вам рассмотреть вариант, чтобы не перемещать перегородку между жилой комнатой и коридором. Таким образом вы одним махом справитесь с двумя зайцами: 1. - В образовавшемся помещении можно будет комфортно разместится; 2.- В противоположной от санузла стороне можно сделать небольшую кладовку-гардеробную (типа шкаф-купе или что-то на подобие); 3. - у вас не будет проблемы с тем, как занести мебель и оборудование в кухню, санузлы и т д. 4. - вам не нужно будет дополнительно делать демонтаж и монтаж даной перегородки.
А также дверь в жилую комнату можно немного сместить в сторону кухни и сделать заподлицо (либо в створе) с колонной (перегородкой с/у), таким образом вы дополнительно выиграете десять-пятнадцать см для кладовки-гардероба.
Inv66
Постійний користувач
114
04 грудня 2015
25 серп 2016 09:07
Для investor110
пока мысли такие,
все без размеров, но в масштабе, рисовалось для себя,
как промежуточный вариант,
но он же пока основной.
Решили отказаться от второго санузла, в пользу зала.
Туалет делаем на месте шкафа-купе, за ним остается небольшая ниша для одежды.
Кухня не очень симпатичная получается, но по зонам всё нормально.
При использовании высоты думаю все поместится.
Варочную из зала не видно, за вент.каналом.
Стиралка вертикальная в ванной.
Раздвижные двери, закрывающие кухню под вопросом.
Не знал что можно убрать простенки с балконом.
Наверное это демонтаж капитального простенка, т.е. нарушение ?!
inv_92
i
Постійний користувач
135
03 листопада 2015
25 серп 2016 09:16
Цитата "Inv66":[attachment=0]123.jpg[/attachment]
Для investor110
пока мысли такие,
все без размеров, но в масштабе, рисовалось для себя,
как промежуточный вариант,
но он же пока основной.
Решили отказаться от второго санузла, в пользу зала.
Туалет делаем на месте шкафа-купе, за ним остается небольшая ниша для одежды.
Кухня не очень симпатичная получается, но по зонам всё нормально.
При использовании высоты думаю все поместится.
Варочную из зала не видно, за вент.каналом.
Стиралка вертикальная в ванной.
Раздвижные двери, закрывающие кухню под вопросом.
Не знал что можно убрать простенки с балконом.
Наверное это демонтаж капитального простенка, т.е. нарушение ?!
Я, конечно, не investor110, и все-же напишу: в нашем доме простенок между помещением и балконом не является несущей стеной, следовательно его можно убирать. А вот размещение кухни вместо санузла - это грубое нарушение сан.технических норм (у вас могут возникнуть проблемы при легализации перепланировки). Хотя получилось хорошо))
investor110
i
Постійний користувач
129
07 вересня 2015
25 серп 2016 10:09
Цитата "inv_92":
Я, конечно, не investor110, и все-же напишу: в нашем доме простенок между помещением и балконом не является несущей стеной, следовательно его можно убирать. А вот размещение кухни вместо санузла - это грубое нарушение сан.технических норм (у вас могут возникнуть проблемы при легализации перепланировки). Хотя получилось хорошо))
Касательно легализации, думаю проблем не будет, так как и то, и то вроде как мокрая зона.
investor110
i
Постійний користувач
129
07 вересня 2015
25 серп 2016 10:11
Цитата "Inv66":[attachment=0]123.jpg[/attachment]
Для investor110
пока мысли такие,
все без размеров, но в масштабе, рисовалось для себя,
как промежуточный вариант,
но он же пока основной.
Решили отказаться от второго санузла, в пользу зала.
Туалет делаем на месте шкафа-купе, за ним остается небольшая ниша для одежды.
Кухня не очень симпатичная получается, но по зонам всё нормально.
При использовании высоты думаю все поместится.
Варочную из зала не видно, за вент.каналом.
Стиралка вертикальная в ванной.
Раздвижные двери, закрывающие кухню под вопросом.
Не знал что можно убрать простенки с балконом.
Наверное это демонтаж капитального простенка, т.е. нарушение ?!
А диван каких размеров брали за основу?
investor110
i
Постійний користувач
129
07 вересня 2015
25 серп 2016 10:19
Цитата "Inv66":[attachment=0]123.jpg[/attachment]
Для investor110
пока мысли такие,
все без размеров, но в масштабе, рисовалось для себя,
как промежуточный вариант,
но он же пока основной.
Решили отказаться от второго санузла, в пользу зала.
Туалет делаем на месте шкафа-купе, за ним остается небольшая ниша для одежды.
Кухня не очень симпатичная получается, но по зонам всё нормально.
При использовании высоты думаю все поместится.
Варочную из зала не видно, за вент.каналом.
Стиралка вертикальная в ванной.
Раздвижные двери, закрывающие кухню под вопросом.
Не знал что можно убрать простенки с балконом.
Наверное это демонтаж капитального простенка, т.е. нарушение ?!
Касательно, Вашей план - мы с такой версии начинали. Нас смутил вид самой кухни которая в результате выйдет, и хотелось модный сейчас "островок" втулить. Но план тоже хорош
Inv66
Постійний користувач
114
04 грудня 2015
25 серп 2016 10:24
Я на днях был у знакомого в "Шоколаде".
У него в однокомнатной квартире кухня с комнатой местами поменялись, и нормально себя чувствуют )))
Диван нарисован 2400 х 1900
Вид кухни не смущает, я 15 лет мебелью занимаюсь.
Мне бы поменьше мебели в квартире видеть )))
У него в однокомнатной квартире кухня с комнатой местами поменялись, и нормально себя чувствуют )))
Диван нарисован 2400 х 1900
Вид кухни не смущает, я 15 лет мебелью занимаюсь.
Мне бы поменьше мебели в квартире видеть )))
investor110
i
Постійний користувач
129
07 вересня 2015
25 серп 2016 10:28
Цитата "Inv66":[attachment=0]123.jpg[/attachment]
Для investor110
пока мысли такие,
все без размеров, но в масштабе, рисовалось для себя,
как промежуточный вариант,
но он же пока основной.
Решили отказаться от второго санузла, в пользу зала.
Туалет делаем на месте шкафа-купе, за ним остается небольшая ниша для одежды.
Кухня не очень симпатичная получается, но по зонам всё нормально.
При использовании высоты думаю все поместится.
Варочную из зала не видно, за вент.каналом.
Стиралка вертикальная в ванной.
Раздвижные двери, закрывающие кухню под вопросом.
Не знал что можно убрать простенки с балконом.
Наверное это демонтаж капитального простенка, т.е. нарушение ?!
Кстати, настоятельно рекомендую Вам иметь 2 санузла, если больше 2 -х человек будет жить.
И возможно кто-то знает, а как вода будет заходить в помещение в одном месте или в двух, потому что если в двух придеться либо с трубами мудрить или 2 бойлера.
bigfortuna
Користувач
100
10 липня 2015
25 серп 2016 12:21
Цитата "inv_92":
Хочу внести свои пять копеек в вашу перепланировку: Обратите внимание на ширину коридоров. Судя с картинки - там 810мм. Это очень мало для прохода.
Рекомендую вам рассмотреть вариант, чтобы не перемещать перегородку между жилой комнатой и коридором. Таким образом вы одним махом справитесь с двумя зайцами: 1. - В образовавшемся помещении можно будет комфортно разместится; 2.- В противоположной от санузла стороне можно сделать небольшую кладовку-гардеробную (типа шкаф-купе или что-то на подобие); 3. - у вас не будет проблемы с тем, как занести мебель и оборудование в кухню, санузлы и т д. 4. - вам не нужно будет дополнительно делать демонтаж и монтаж даной перегородки.
А также дверь в жилую комнату можно немного сместить в сторону кухни и сделать заподлицо (либо в створе) с колонной (перегородкой с/у), таким образом вы дополнительно выиграете десять-пятнадцать см для кладовки-гардероба.
Спасибо за советы! На самом деле я так тоже думала, но хотелось комнату увеличить. Выкладываю "Дубль-2", (в какую сторону будут открываться двери нужно еще подумать).
Авторський канал ріелтора в Іспанії
Знайомтесь з Бенідормом, нерухомістю та стилем життя. Новобудови регіону, аналітика, інвестиції
Детальніше
- ЖК Star City | Стар Сіті | bUdCapital, Київміськбуд | Київ, вул. Каунаська, 2717.12473
- ЖК Киевская Швейцария | ИнтерГал-Буд | ул. Макаровская, 316.1218
- Де придбати квартиру в новобудові?16.122 722
- ЖК Paradise Avenue | ZIM Group | Крюківщина, вул. Чорновола16.122 502
- МФК Intergal City | Інтергал Сіті | ІнтерГал-Буд | Київ, вул. Старонаводницька, 16-Б16.1263
- ЖК Абрикосовий | Київміськбуд | Київ, вул. Абрикосова, вул. Жулянська15.122 060
- ЖК Sense City | Prostir | Софіївська Борщагівка, вул. Соборна, 77а15.1227
- ЖК Отрада | Київміськбуд, bUdCapital | Київ, просп. Відрадний, 93/213.122 755
- ЖК Chalet | Standard Development | Київ, вул. Львівська, 18-б12.12123
- ЖК Family and Friends | 3 черга | GEOS | Київ, вул. Новопольова, 212.1224
- Чи варто зараз купувати нерухомість?16.124 871
- Дно рынка недвижимости и влияющие факторы16.1115 264
- Різонність ціни за оренду квартири (12 тисяч гривень)13.111
- Додаткові розрахунки між орендодавцями та орендарями06.1127
- Чи варто купити будинок в спокійному регіоні, в Вінниці?17.092
- Завышеные тарифы на отопление. Как обжаловать и куда писать?19.082
- Іпотека від Банків із найкращими умовами | Обговорення кредитів під заставу нерухомості13.08192
- Краудфандинг - типы группового инвестирования01.083
- Планую оренду квартири в районі Подолу30.073
- Кухонные столешницы. Отзывы о практичных и неубиваемых вариантах13.11111
- Отзывы о кондиционерах. Какой кондиционер лучше08.11278
- Где найти качественные полотенца?04.092
- Орхидеи. Как ухаживать за орхидеями29.0818
- Выбор пылесоса. Отзывы о ваших пылесосах26.0866
- Відгуки про ортопедичні матраци. Матраци для комфортного сну22.0891
- Болит спина07.0873
- Какую выбрать мебель на террасу?04.084
- Стоит ли покупать кофе-машину13.07154
- ЖК Стандарт | Стандарт Буд | Полтава, вул. Великотирнівська, 9а04.128
- ЖК ARTVILLE | ZEZMAN | Одеса, Овідіопольська дорога02.1231
- Микрорайон на Лузановке | Одесса, Николаевская дорога | Консоль30.116
- Харьков, Проект "Consol Green City" - "Консоль"11.113
- ЖК Kandinsky Odessa Residence | Кандинский | Одесса, Французский бульвар, 63/6515.10182
- ЖК Дом у моря | Югінвест | Южный, ул. Иванова10.1017
- Канализация и водоснабжения - оценка работы замены труб17.121
- Перепланування | прохання та поради щодо конкретних ситуацій09.122 217
- Подскажите, какие ворота на гараж лучше установить из современных?02.124
- Підлога на кухні - ламінат або плитка?13.1121
- Пластиковые окна, какие лучше - поделитесь отзывами09.11241
- Кварц виниловая плитка LG Decotile или Berry Alloc29.106
- Напольные покрытия - чтобы было тепло, красиво и недорого29.1018
- Яка реальна ціна чорнових робіт в 2025 для будинку08.101
- Хто планує поїхати на будівельний форум у Львові цього вересня?01.093
- Електрична тепла підлога28.111
- Продам фонарик шокер ОСА 928 Power plus04.111
- Как отвечать на How are You?04.102
- Что подарить мужчине?24.09351
- Мій сайт не з'являється в результатах пошуку20.093
- Домик для кота26.085
- Тренажер в доме. Какой выбрать24.0817
- Меблі на замовлення | Оголошення про виготовлення меблів18.0899
- Как уберечь холодильник от перепадов напряжения09.0810
Купуй квартиру на Domik.ua
Широкий вибір квартир від власників, забудовників та ріелторів
Детальніше