Перепланування | прохання та поради щодо конкретних ситуацій
Alisa_Bu
Інвестор
386
21 грудня 2018
08 лист 2020 09:46
Цитата "Алекса2020":
1-2 человека. Нужно 2 отдельных комнаты.
Если речь идет про 2 отдельные комнаты, не считая кухни-гостиной, то на данный момент, чтобы отрисовать варианты планировок, нужны размеры помещений, а не только их площадь. На глазок легко ошибиться и тогда удачную рекомендацию невозможно будет реализовать.
Если же нужна просторная кухня-гостиная и отдельная спальня, то выше я написала, как это сделать. Ну а если устраивает существующая планировка, и единственное, что вас смущает - это косые входы плюс раздельный санузел, то и здесь можно поиграться со стенами. Но имхо, жить в такой квартире будет крайне неудобно даже одному.
Алекса2020
А
Новачок
6
06 листопада 2020
08 лист 2020 09:55
Цитата:Но имхо, жить в такой квартире будет крайне неудобно даже одному.
Почему крайне неудобно одному? Что смущает? Большая квадратная кухня, спальня+большая комната. Есть такие же варианты, только одна комната, и ничего, живут люди...
igor_gia
i
Постійний користувач
147
18 травня 2015
08 лист 2020 19:38
Я бы делал как-то так.
Обращаю внимание, что кухня без двери. Если надо, можно поставить.


Обращаю внимание, что кухня без двери. Если надо, можно поставить.
Alisa_Bu
Інвестор
386
21 грудня 2018
08 лист 2020 20:12
Цитата "Алекса2020":
"Имхо" означает не утверждение, а всего лишь частное мнение, тем более в данном случае незнакомого для вас человека. Поверьте, люди жили и продолжают жить в крайне неудобных или стесненных пространствах, привыкая и воспринимая это как норму. Просто потому, что не было опыта жизни в правильно спланированном пространстве.
Лично меня смущает дурацки спланированная эргономика квартиры:
1. Кухня 3х3 - это маленькая кухня. Туда вместится мебель, техника и обеденный стол, придвинутый к стенке или задвинутый в угол. Всё. Гостей там принимать не получится, а если и получится, то только с целью поесть/попить, поскольку больше там заняться нечем.
2. Гостиная в другом конце. Допустим, гости соберутся там за просмотром фильма, концерта или за видеоигрой - неважно. Но чтобы их угостить, придется через всю квартиру таскать еду и чай/кофе, а перед этим самому торчать на кухне и готовить, в то время как гости будут брошены.
3. Трасса перемещения по квартире проходит через грязную входную зону и ее никак не миновать.
4. Гостевая зона (кухня и гостиная) разорваны, приватная зона не обособлена и трасса проходит сквозь вход в спальню.
5. Мало мест, куда эстетично можно вписать системы хранения.
Все эти проблемы решаются грамотной перепланировкой - и хождение по грязной зоне, и топот мимо спальни, и косые проходы. Разделить гостевую и приватную зоны. Обзавестись полноценной гардеробной, или красиво вписать полноценные шкафы для одежды. Организовать хозблок, чтобы швабра с ведром, веник с совком, куча тряпочек и губок, склад бытовой химии не делать частью интерьера. Но для этого нужен дизайнер или человек с мозгами дизайнера. Здесь вам посоветуют толковые варианты, но без размеров реализовать их получится фифти-фифти.
Alisa_Bu
Інвестор
386
21 грудня 2018
08 лист 2020 22:35
Алекса2020, вот примерные наброски, как сделать 2 отдельные комнаты и комфортную кухню-гостиную, отсечь грязную входную зону (разве что в санузел зайти, но зато не сновать мимо туда-сюда всякий раз), а приватные зоны сделать в разных концах квартиры, при этом организовать достаточное количество зон хранения. Есть куда гостей привести, есть чем их занять, не разрывая приятное общение, и есть чем заняться самому, когда один дома.
Но повторяюсь - они могут быть нереализуемы без учета реальных размеров. Но можно придумать и массу других решений.
Прошу прощение за небрежность рисунков - пришлось работать практически в полевых условиях. Главные требования - раковина в зоне коридора, вытяжка присоединена к кухонному каналу вентиляции, плита только на электричестве.
Но повторяюсь - они могут быть нереализуемы без учета реальных размеров. Но можно придумать и массу других решений.
Прошу прощение за небрежность рисунков - пришлось работать практически в полевых условиях. Главные требования - раковина в зоне коридора, вытяжка присоединена к кухонному каналу вентиляции, плита только на электричестве.
Алекса2020
А
Новачок
6
06 листопада 2020
09 лист 2020 10:29
Накидал схему размеров...
А также примерную перепланировку. Какие минусы? Я не вижу проблемы тащить пишу через ВСЮ квартиру, это маленькая квартира, а не хоромы.
Спальню в кухню переносить запрещено, как и кухню в спальню.
Рядом с квартирой есть кладовка, там можно хранить весь хлам.
А также примерную перепланировку. Какие минусы? Я не вижу проблемы тащить пишу через ВСЮ квартиру, это маленькая квартира, а не хоромы.
Спальню в кухню переносить запрещено, как и кухню в спальню.
Рядом с квартирой есть кладовка, там можно хранить весь хлам.
Alisa_Bu
Інвестор
386
21 грудня 2018
09 лист 2020 11:40
Алекса2020, ну и отлично! Вы делаете жилье под себя, поэтому делайте как вам самому удобно! Очень удачно решили проблему косых входов.
Единственное, что хочу прояснить: комнату на месте кухни можно назвать кабинетом - это раз, и два - это то, что мокрая часть кухни остается в зоне коридора, а назначение жилых комнат (спальня это или зала) менять не возбраняется.
Единственное, что хочу прояснить: комнату на месте кухни можно назвать кабинетом - это раз, и два - это то, что мокрая часть кухни остается в зоне коридора, а назначение жилых комнат (спальня это или зала) менять не возбраняется.
igor_gia
i
Постійний користувач
147
18 травня 2015
09 лист 2020 12:22
Цитата "Алекса2020 » 09.11.2020 12:29":Накидал схему размеров...
А также примерную перепланировку. Какие минусы? Я не вижу проблемы тащить пишу через ВСЮ квартиру, это маленькая квартира, а не хоромы.
Спальню в кухню переносить запрещено, как и кухню в спальню.
Рядом с квартирой есть кладовка, там можно хранить весь хлам.
Если планируется проживание 1-2х человек, то можно сделать отдельную спальню и большую кухню-гостиную.
Еще и гардероб получается.
Примерно так:
Alisa_Bu
Інвестор
386
21 грудня 2018
09 лист 2020 18:14
Цитата "igor_gia":
Если планируется проживание 1-2х человек, то можно сделать отдельную спальню и большую кухню-гостиную.
Еще и гардероб получается.
Примерно так:
[attachment=0]7-10-4.JPG[/attachment]
Я этот вариант предложила сразу, как самый логичный. Но человек ответил, что ему нужны 2 отдельные комнаты. Хотя как по мне, то для одного-двух это самый классный вариант. А если еще и лоджию присоединить, то там можно сделать рабочее место или читальный уголок с уютным креслом, приставным кофейным столиком и направленной подсветкой. Только гардероб я бы сделала со входом из спальни, а со стороны коридора разместила большой шкаф.
igor_gia
i
Постійний користувач
147
18 травня 2015
10 лист 2020 11:32
Получается примерно так

Как по мне - кухня маловата.
Ну и вход в гардероб из спальни - куча дверей в маленьком помещении. Мне кажется, двери в пределах видимости из спальни - уменьшают уют.
Могу еще "поиграться"
Как по мне - кухня маловата.
Ну и вход в гардероб из спальни - куча дверей в маленьком помещении. Мне кажется, двери в пределах видимости из спальни - уменьшают уют.
Могу еще "поиграться"
Алекса2020
А
Новачок
6
06 листопада 2020
10 лист 2020 16:17
Цитата "igor_gia » 09.11.2020 14:22":
Если планируется проживание 1-2х человек, то можно сделать отдельную спальню и большую кухню-гостиную.
Еще и гардероб получается.
Примерно так:
[attachment=0]7-10-4.JPG[/attachment]
Не вижу ничего логичного, если б была нужна 1 комнатная, я бы купил 1 комнатную с кухней метров 17, но я купил 2 комнатную, ибо нужно 2 отдельные комнаты и о студии речи быть не может
Alisa_Bu
Інвестор
386
21 грудня 2018
11 лист 2020 14:25
Цитата "igor_gia » 10.11.2020 13:32":Получается примерно так
[attachment=0]7-10-5.JPG[/attachment]
Как по мне - кухня маловата.
Ну и вход в гардероб из спальни - куча дверей в маленьком помещении. Мне кажется, двери в пределах видимости из спальни - уменьшают уют.
Могу еще "поиграться"
Простите, я не поняла вашей идеи - вы просто увеличили площадь бесполезного коридора за счет комнат? Что касается гардероба при спальне, то там шкаф не нужен, весь смысл гардероба - это альтернатива шкафу. Но если прямого входа в него не будет, то придется за каждой мелочью бегать через всю квартиру или ставить шкаф. Дверь можно сделать скрытую, а можно пойти иным путем - сделать гардероб, отступив от двери в спальню, а дверь в гардероб соорудить прямо напротив входа в спальню, чтобы из самой спальни дверь не просматривалась. Там рядышком и зеркало во весь рост поместится.
Насчет кухни полностью согласна - маловата. Но для одного мужчины, если он не заядлый кулинар, вполне норм))
igor_gia
i
Постійний користувач
147
18 травня 2015
11 лист 2020 16:43
Цитата:Простите, я не поняла вашей идеи - вы просто увеличили площадь бесполезного коридора за счет комнат? Что касается гардероба при спальне, то там шкаф не нужен, весь смысл гардероба - это альтернатива шкафу. Но если прямого входа в него не будет, то придется за каждой мелочью бегать через всю квартиру или ставить шкаф. Дверь можно сделать скрытую, а можно пойти иным путем - сделать гардероб, отступив от двери в спальню, а дверь в гардероб соорудить прямо напротив входа в спальню, чтобы из самой спальни дверь не просматривалась. Там рядышком и зеркало во весь рост поместится.
Насчет кухни полностью согласна - маловата. Но для одного мужчины, если он не заядлый кулинар, вполне норм))
Да, пришлось подрезать одну комнату в пользу коридора, чтобы уйти от скошенных стен и угловых дверей.
В моем варианте нет разграничения зон кухни и коридора. Это, хоть немного, добавит ощущения пространства в кухне.
Ну и я бы все-таки оставил вход в гардеробную из коридора, в гардеробе кроме одежды обычно хранится еще куча добра: пылесос, редко используемая кухонная утварь и т.п. К тому-же, верхнюю одежду удобней заносить в гардероб не через спальню. А в спальне оставить шкаф для белья.
Алекса2020
А
Новачок
6
06 листопада 2020
18 лист 2020 15:53
Накидал примерную перепланировку, какие плюсы, минусы видите, что можно изменить?
Alisa_Bu
Інвестор
386
21 грудня 2018
19 лист 2020 07:47
Цитата "Алекса2020":Накидал примерную перепланировку, какие плюсы, минусы видите, что можно изменить?
Если центральная комната - спальня или детская, то вход очень неудачный. Во-первых. он прямо напротив входной двери. а во-вторых, при таком расположении не поставишь большой платяной шкаф. Я бы сместила вход до левой или правой боковой стены, тогда и спальная зона будет обособлена, и системы хранения корректно впишутся. Если же это зала - тогда все окей.
igor_gia
i
Постійний користувач
147
18 травня 2015
19 лист 2020 07:51
В целом - хорошо. Но мест для хранения вещей маловато. Можно попытаться вдоль верхней стены в крайне правой комнате поставить вдоль всей стены шкаф. Но глубина маловата, впритык.
Helhel
H
Постійний користувач
109
29 березня 2017
28 лист 2020 11:07
Подскажите, пожалуйста, кто знает, реально ли эту 1 ком квартиру разделить на 2 студии? Если вместо кухни-ниши сделать прихожую и санузел. Узаконят ли такое?
Anonymous
19 груд 2020 13:23
Подскажите, есть ли вариант, оставив лоджию и сделав в той комнате детскую, в комнате без лоджии (где стена 543) разместить двухспальную кровать с перегородкой и что б осталось место для кухни и места для просмотра телевизора?
serg889
s
Перехожий
1
23 лютого 2020
29 груд 2020 17:30
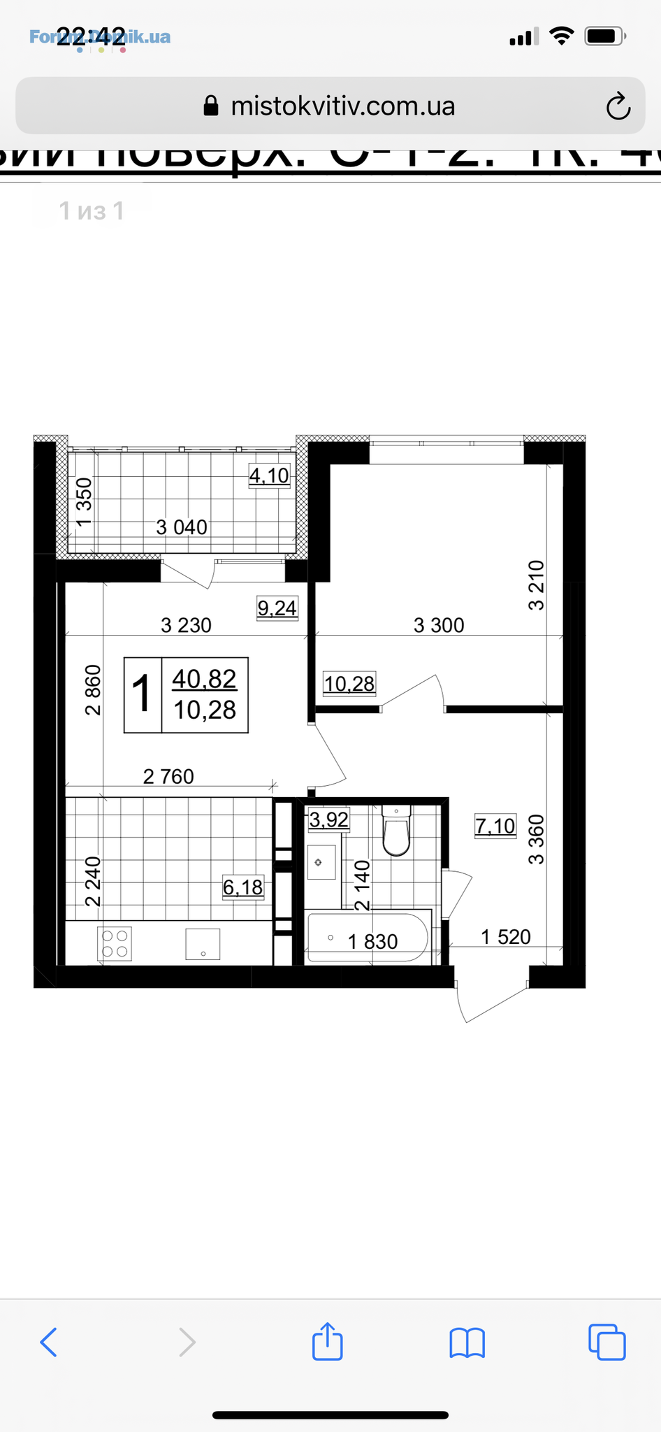
Добрый день. Прошу помощи с идеями с перепланировкой и расстановки мебели, исходный план и размеры прилагается.
Также сделал свой вариант, как видно, уменьшил комнату (это будет детская), чуть уменьшил вход в кухню (убрал 80 см бесполезного места) и добавил небольшую комнату (гардеробную) куда будут вмещаться вся одежда а также будет сетевой шкаф для всей моей сетевой техники 15U. В спальне и детской комнете шкафов до потолка не хочу, хочу просторные комнаты без громоздких шкафов.
Что мне не нравится - увеличилась прихожая (не очень рационально место распределилось).
В прихожей добавил небольшую стенку для двух шкафов, 1й (тот что с правой стороны возле входа) для быстрой одежды возле входной двери где будет и обувь, с другой стороны будет закрытый шкаф для детской одежды или хоз шкаф для всего остального.
Дом многоэтажный, кирпичный, межкомнатные перегородки из пеноблоков 10 см., перегородки в ванной 6 см., красный кирпич ребром.
В общем что думаете и как это можно улучшить?
Можно с этим что-то сделать?
Также сделал свой вариант, как видно, уменьшил комнату (это будет детская), чуть уменьшил вход в кухню (убрал 80 см бесполезного места) и добавил небольшую комнату (гардеробную) куда будут вмещаться вся одежда а также будет сетевой шкаф для всей моей сетевой техники 15U. В спальне и детской комнете шкафов до потолка не хочу, хочу просторные комнаты без громоздких шкафов.
Что мне не нравится - увеличилась прихожая (не очень рационально место распределилось).
В прихожей добавил небольшую стенку для двух шкафов, 1й (тот что с правой стороны возле входа) для быстрой одежды возле входной двери где будет и обувь, с другой стороны будет закрытый шкаф для детской одежды или хоз шкаф для всего остального.
Дом многоэтажный, кирпичный, межкомнатные перегородки из пеноблоков 10 см., перегородки в ванной 6 см., красный кирпич ребром.
В общем что думаете и как это можно улучшить?
Можно с этим что-то сделать?
seagen
s
Користувач
25
19 травня 2020
30 груд 2020 14:00
Добрый день! Подскажите возможность перепланировки 1кк в двухкомнатную, или в размещении дополнительного спального места. Для проживания 3х человек. Есть бесполезно большой коридор 10м.кв. Возможно ли с ним что то придумать, или может спальное место организовать в кухне. Или может расширить коридор, уменьшив комнату и сделать проходную комнату? Буду благодарен любому совету. Спасибо!
Авторський канал ріелтора в Іспанії
Знайомтесь з Бенідормом, нерухомістю та стилем життя. Новобудови регіону, аналітика, інвестиції
Детальніше
- ЖК Edelweiss House | Edelburg Development | Киів, вул. Звіринецька, 70-а28.10537
- ЖК Дніпровська Мрія | Галжитлобуд | ул. Сосюры, 628.10792
- ЖК Sanville Park | Санвиль Групп | Святопетрівське, вул. Богдана26.1037
- Дом №17, ЖК "Эврика"25.10742
- ЖК Poetica, 1-я коллекция | Поэтика | ENSO | ул. Дегтяревская, 25а23.103 100
- ЖК Урлівський-1 | Київміськбуд, BudCapital | Київ, вул. Причальна, 1121.103 797
- Будинок на Вавилових | Ковальська | Київ, вул. Вавилових, 9-1120.10116
- ЖК Київські Зорі 2 | Онікс Білд | Вишгород, вул. Кургузова, 1-б20.105
- Житловий квартал Еврика | Київ, вул. Академика Глушкова19.1022 491
- ЖК Chehov Парк Квартал | Чехов | Орлан Инвест | Ирпень, ул. Чехова, 2718.103 429
- Чи варто зараз купувати нерухомість?29.104 723
- Дно рынка недвижимости и влияющие факторы28.1015 245
- Чи варто купити будинок в спокійному регіоні, в Вінниці?17.092
- Завышеные тарифы на отопление. Как обжаловать и куда писать?19.082
- Іпотека від Банків із найкращими умовами | Обговорення кредитів під заставу нерухомості13.08192
- Краудфандинг - типы группового инвестирования01.083
- Планую оренду квартири в районі Подолу30.073
- Про агентство Атлант-А23.0722
- Допоможіть розібратись з податками08.053
- Где найти качественные полотенца?04.092
- Орхидеи. Как ухаживать за орхидеями29.0818
- Выбор пылесоса. Отзывы о ваших пылесосах26.0866
- Відгуки про ортопедичні матраци. Матраци для комфортного сну22.0891
- Болит спина07.0873
- Какую выбрать мебель на террасу?04.084
- Стоит ли покупать кофе-машину13.07154
- Декоративные элементы в интерьере. Советы и отзывы о их сочетании12.0716
- Декор окна без штор, варианты и советы12.0746
- ЖК Kandinsky Odessa Residence | Кандинский | Одесса, Французский бульвар, 63/6515.10182
- ЖК Дом у моря | Югінвест | Южный, ул. Иванова10.1017
- ЖК Sakura | Свалява, пров. Достоєвського, 404.105
- ЖК Імперіал Парк Авеню | Імперіал Буд | Чернівці, вул. Рівненська, 718.084
- ЖК Manhattan | Blago developer | Івано-Франківськ, вул. Романа Левицького, вул. Ленкавського04.0815
- ЖК Зелений двір | Спілка забудівників | Івано-Франківськ, вул. Тисменицька04.089
- Кварц виниловая плитка LG Decotile или Berry Alloc29.106
- Напольные покрытия - чтобы было тепло, красиво и недорого29.1018
- Яка реальна ціна чорнових робіт в 2025 для будинку08.101
- Хто планує поїхати на будівельний форум у Львові цього вересня?01.093
- Тепла підлога, відгуки та поради28.08205
- Крыша потекла, что делать?25.0818
- Перепланування | прохання та поради щодо конкретних ситуацій19.082 216
- Матеріал багатоквартирного будинку. Який найкращий?13.0812
- Кліматичне обладнання норвезької ТМ Bergen07.082
- Пошук обладнання для магазину21.101
- Как отвечать на How are You?04.102
- Что подарить мужчине?24.09351
- Мій сайт не з'являється в результатах пошуку20.093
- Домик для кота26.085
- Тренажер в доме. Какой выбрать24.0817
- Меблі на замовлення | Оголошення про виготовлення меблів18.0899
- Как уберечь холодильник от перепадов напряжения09.0810
- Пол, тёплый пол, паркет, ламинат, плитка. Продажа напольных покрытий26.0728
Авторський канал ріелтора в Іспанії
Знайомтесь з Бенідормом, нерухомістю та стилем життя. Новобудови регіону, аналітика, інвестиції
Детальніше