ул. Михаила Донца, 2а (секции 3-5) - "Житлоінвестбуд-УКБ"
Ваше общее впечатление об Объекте и Компании:
Можна вибрати 1 варіант відповіді. Можна міняти відповіді. Всього голосів: 120.
| 4/3% | ||
| 8/7% | ||
| 33/28% | ||
| 55/46% | ||
| 20/17% | 
vladimir.ya
v
Користувач
22
09 листопада 2011
15 січ 2016 13:28
Цитата "danceura":Эдуард...-он самый. Нет))! Речь о праве собственности не идёт))!
А здесь есть возможность личной переписки? мне интересно за сколько он вам ее продал, он у меня покупал квартиру.
Savil

Гість
5
18 грудня 2015
15 січ 2016 13:36
Цитата "vladimir.ya":у кого-то есть планировки 1-2 секций? или где их можно найти? спасибо!
Насколько я понимаю, вторая совпадает с пятой(только перезеркалена), а первая с третьей и четвертой
Van Demi 
VD
Користувач
40
14 грудня 2015
15 січ 2016 13:55
Цитата "vladimir.ya":у кого-то есть планировки 1-2 секций? или где их можно найти? спасибо!
2 секция зеркальная 5й
vladimir.ya
v
Користувач
22
09 листопада 2011
15 січ 2016 14:02
Цитата "Savil":
Насколько я понимаю, вторая совпадает с пятой(только перезеркалена), а первая с третьей и четвертой
Точно, сначала с площадью квартир чегото не совпадало, а сча все сошлось, буду выбирать себе еще, спасибо!
vladimir.ya
v
Користувач
22
09 листопада 2011
15 січ 2016 14:04
а нет, в І секции есть 2-комнатные... фаааак, где найти планировки! 

vladimir.ya
v
Користувач
22
09 листопада 2011
15 січ 2016 14:07
может первая как 6-я, но тогда 1-ком под вопросом...  

danceura

Користувач
22
03 червня 2015
15 січ 2016 14:10
Цитата "vladimir.ya":
А здесь есть возможность личной переписки? мне интересно за сколько он вам ее продал, он у меня покупал квартиру.
Там у него было несколько квартир на разных этажах...А ваша на каком была?
Irina_555
I
Користувач
43
28 вересня 2015
15 січ 2016 14:39
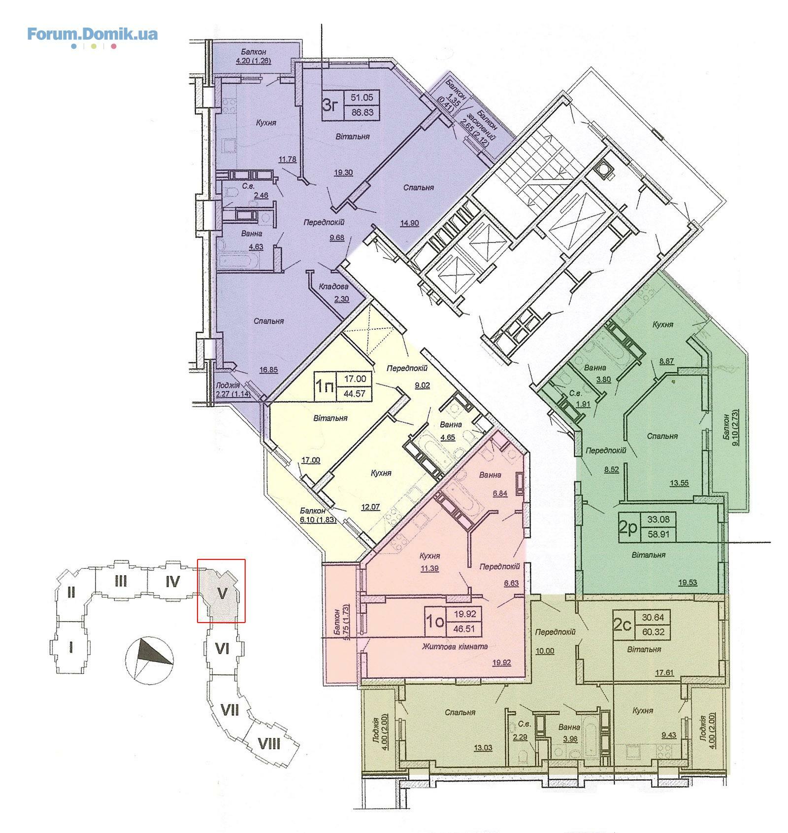
Цитата "vladimir.ya":а нет, в І секции есть 2-комнатные... фаааак, где найти планировки!
При желании с планировками можно здесь разобраться.
//forum.domik.ua/images/orig/full/000061 3e469f46794b20.jpg
vladimir.ya
v
Користувач
22
09 листопада 2011
15 січ 2016 14:56
Цитата "danceura":
я не помню, 22 и 13 кажись...))
vladimir.ya
v
Користувач
22
09 листопада 2011
15 січ 2016 15:02
Цитата "Irina_555":
При желании с планировками можно здесь разобраться.
//forum.domik.ua/images/orig/full/000061 3e469f46794b20.jpg
Спасибо большое! Мы были правы - 1=6 секции.

danceura

Користувач
22
03 червня 2015
15 січ 2016 15:13
Цитата "vladimir.ya":
я не помню, 22 и 13 кажись...))
О! Да:-)! 13-й мы хотели брать:-)....но остановились на 19-ом...а с кв.на 13-ом, у него были трудности....не знаю точно какие...но были...
yurik1987

Ветеран
1 165
24 червня 2014
15 січ 2016 16:54
Цитата "vladimir.ya":а нет, в І секции есть 2-комнатные... фаааак, где найти планировки!
Пожалуйста:




Мисс
М
Постійний користувач
189
12 травня 2014
15 січ 2016 18:45
Цитата "danceura":
О! Да:-)! 13-й мы хотели брать:-)....но остановились на 19-ом...а с кв.на 13-ом, у него были трудности....не знаю точно какие...но были...
У Вас 5 секция 19 этаж 2-к? Какая планировка?
danceura

Користувач
22
03 червня 2015
15 січ 2016 19:15
Цитата "Мисс":
У Вас 5 секция 19 этаж 2-к? Какая планировка?
У нас 2р.
Мисс
М
Постійний користувач
189
12 травня 2014
15 січ 2016 19:17
Цитата "danceura":
У нас 2р.
А я думала, что нашла соседа снизу. У меня 2с 20 этаж.

danceura

Користувач
22
03 червня 2015
15 січ 2016 19:21
Ну все равно соседи, хоть и в диагональке:-) !
Мисс
М
Постійний користувач
189
12 травня 2014
15 січ 2016 19:25
Цитата "danceura":Ну все равно соседи, хоть и в диагональке:-) !

danceura

Користувач
22
03 червня 2015
15 січ 2016 20:54
Цитата "Мисс":
Но с 19го я соседей еще не знаю....(((
four
f
Користувач
25
09 грудня 2015
17 січ 2016 18:45
Цитата "Alparslan":Всем добрый вечер. Как и где зарегистрироваться в ветке инвесторов?
в первом сообщении есть инфо:
Для этого проекта, так же, есть закрытая тема обсуждения, только для Инвесторов.
Запрос высылайте на e-mail модератора: ekz-domik@ukr.net
Письмо должно содержать Ник на форуме и фото договора или его части (без личных данных)
там же и таблица инвесторов
runa
r
Користувач
25
13 лютого 2007
19 січ 2016 14:52
Сегодня общались со Штанько по срокам сдачи 3-5 секции. Хотя планом работ поделиться отказался, мотивировав  это тем что инвестору важно знать когда будет окончательный результат, некоторую информацию удалось получить:
1. Окончание работ - до 20 июня или раньше в чем персонально заинтересован
2. Сантехника, Электрика - начнут работы с февраля
3. По 3 секции остекление - до апреля, и соответственно тогда снимут кран
4. На счет шумоизолирующего экрана между аэродинамической трубой и домом сказал что этого в планах нет. Про Шульгу (НАУ) слышал, но то что он говорил о необходимости сооружения защитного экрана не знает. Текущий проект был согласован и НАУ и СЭС. Посоветовал жильцам всех секций общаться с ЖЭКом после сдачи дома и решать за чей счет она будет сооружаться.
1. Окончание работ - до 20 июня или раньше в чем персонально заинтересован
2. Сантехника, Электрика - начнут работы с февраля
3. По 3 секции остекление - до апреля, и соответственно тогда снимут кран
4. На счет шумоизолирующего экрана между аэродинамической трубой и домом сказал что этого в планах нет. Про Шульгу (НАУ) слышал, но то что он говорил о необходимости сооружения защитного экрана не знает. Текущий проект был согласован и НАУ и СЭС. Посоветовал жильцам всех секций общаться с ЖЭКом после сдачи дома и решать за чей счет она будет сооружаться.

Купуй квартиру на Domik.ua
Широкий вибір квартир від власників, забудовників та ріелторів
Детальніше
- ЖК Sanville Park | Санвиль Групп | Святопетрівське, вул. Богдана30.1039
- ЖК Scandia | БК Триумф | Бровари, вул. Анатолія Луценка, 2730.103 030
- ЖК Дніпровська Мрія | Галжитлобуд | ул. Сосюры, 630.10793
- ЖК Заречный | bUd development | пр-т Н. Бажана, ул. Заречная30.1011 514
- ЖК Edelweiss House | Edelburg Development | Киів, вул. Звіринецька, 70-а28.10537
- Дом №17, ЖК "Эврика"25.10742
- ЖК Poetica, 1-я коллекция | Поэтика | ENSO | ул. Дегтяревская, 25а23.103 100
- ЖК Урлівський-1 | Київміськбуд, BudCapital | Київ, вул. Причальна, 1121.103 797
- Будинок на Вавилових | Ковальська | Київ, вул. Вавилових, 9-1120.10116
- ЖК Київські Зорі 2 | Онікс Білд | Вишгород, вул. Кургузова, 1-б20.105
- Дно рынка недвижимости и влияющие факторы31.1015 248
- Чи варто зараз купувати нерухомість?29.104 723
- Чи варто купити будинок в спокійному регіоні, в Вінниці?17.092
- Завышеные тарифы на отопление. Как обжаловать и куда писать?19.082
- Іпотека від Банків із найкращими умовами | Обговорення кредитів під заставу нерухомості13.08192
- Краудфандинг - типы группового инвестирования01.083
- Планую оренду квартири в районі Подолу30.073
- Про агентство Атлант-А23.0722
- Допоможіть розібратись з податками08.053
- Где найти качественные полотенца?04.092
- Орхидеи. Как ухаживать за орхидеями29.0818
- Выбор пылесоса. Отзывы о ваших пылесосах26.0866
- Відгуки про ортопедичні матраци. Матраци для комфортного сну22.0891
- Болит спина07.0873
- Какую выбрать мебель на террасу?04.084
- Стоит ли покупать кофе-машину13.07154
- Декоративные элементы в интерьере. Советы и отзывы о их сочетании12.0716
- Декор окна без штор, варианты и советы12.0746
- ЖК Kandinsky Odessa Residence | Кандинский | Одесса, Французский бульвар, 63/6515.10182
- ЖК Дом у моря | Югінвест | Южный, ул. Иванова10.1017
- ЖК Sakura | Свалява, пров. Достоєвського, 404.105
- ЖК Імперіал Парк Авеню | Імперіал Буд | Чернівці, вул. Рівненська, 718.084
- ЖК Manhattan | Blago developer | Івано-Франківськ, вул. Романа Левицького, вул. Ленкавського04.0815
- ЖК Зелений двір | Спілка забудівників | Івано-Франківськ, вул. Тисменицька04.089
- Кварц виниловая плитка LG Decotile или Berry Alloc29.106
- Напольные покрытия - чтобы было тепло, красиво и недорого29.1018
- Яка реальна ціна чорнових робіт в 2025 для будинку08.101
- Хто планує поїхати на будівельний форум у Львові цього вересня?01.093
- Тепла підлога, відгуки та поради28.08205
- Крыша потекла, что делать?25.0818
- Перепланування | прохання та поради щодо конкретних ситуацій19.082 216
- Матеріал багатоквартирного будинку. Який найкращий?13.0812
- Кліматичне обладнання норвезької ТМ Bergen07.082
- Пошук обладнання для магазину21.101
- Как отвечать на How are You?04.102
- Что подарить мужчине?24.09351
- Мій сайт не з'являється в результатах пошуку20.093
- Домик для кота26.085
- Тренажер в доме. Какой выбрать24.0817
- Меблі на замовлення | Оголошення про виготовлення меблів18.0899
- Как уберечь холодильник от перепадов напряжения09.0810
- Пол, тёплый пол, паркет, ламинат, плитка. Продажа напольных покрытий26.0728

Авторський канал ріелтора в Іспанії
Знайомтесь з Бенідормом, нерухомістю та стилем життя. Новобудови регіону, аналітика, інвестиції
Детальніше