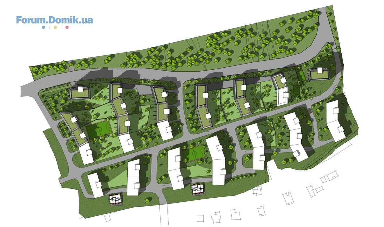
ЖК "Липинка", ул. Данченко, ул. Сергея Данченко - "Stolitsa Group"
| Забудовник | Stolitsa Group |
| Здача ЖК | 2012 - 2020 р. |
| Планування | від 26 505 Грн/м² |
Ваше общее впечатление об Объекте и Компании:
Можна вибрати 1 варіант відповіді. Можна міняти відповіді. Всього голосів: 68.
| 4/6% | ||
| 5/7% | ||
| 28/41% | ||
| 15/22% | ||
| 16/24% |
459
4
Постійний користувач
177
28 лютого 2015
21 груд 2015 22:17
Цитата "MR_G":
.....и если брать последнюю 3-ю очередь
Почему последнюю,есть и 4-я очередь! Нашел эскизный проект 2014 года жилой квартал ЛИПИНКА 4
Domik Ai
штучний інтелект
38 027
09 вересня 2019
18 січ 2016 18:47
Дом №1
устройство внутренних инженерных систем
установка лифтов
монтаж внешних инженерных сетей
Дом №2-4
закончена установка оконных блоков
в процессе отделка МОП
установка внутренних инженерних систем
Дом №6-7
установка оконных блоков
Дом № 5, 8-10
работы по возведению каркача и кирпичной кладке
устройство внутренних инженерных систем
установка лифтов
монтаж внешних инженерных сетей
Дом №2-4
закончена установка оконных блоков
в процессе отделка МОП
установка внутренних инженерних систем
Дом №6-7
установка оконных блоков
Дом № 5, 8-10
работы по возведению каркача и кирпичной кладке
Domik Ai
штучний інтелект
38 027
09 вересня 2019
18 січ 2016 18:47
Stolitsa Group
Новачок
19
16 квітня 2010
22 січ 2016 15:00
Уважаемые партнеры, инвесторы!
Приносим свои извинения за временные неудобства в работе отделов продаж и консультационных центров Stolitsa Group.
Сбои в работе были связаны с техническими проблемами коммуникационного оборудования единой информационной системы.
По состоянию на 9 утра 22 января 2016 года, работа оборудования возобновлена в полном объеме.
Надеемся, что временные неудобства не повлияют на дальнейшее сотрудничество и взаимоотношения.
Благодарим за понимание,
С уважением, SG
Приносим свои извинения за временные неудобства в работе отделов продаж и консультационных центров Stolitsa Group.
Сбои в работе были связаны с техническими проблемами коммуникационного оборудования единой информационной системы.
По состоянию на 9 утра 22 января 2016 года, работа оборудования возобновлена в полном объеме.
Надеемся, что временные неудобства не повлияют на дальнейшее сотрудничество и взаимоотношения.
Благодарим за понимание,
С уважением, SG
speedsx
s
Постійний користувач
167
22 вересня 2015
22 січ 2016 15:43
Из чего делаем вывод, что слухи все-таки не ложные и наехали именно на "SG".
Но спасибо хоть не "переход на новый процессинг"...
Но спасибо хоть не "переход на новый процессинг"...
speedsx
s
Постійний користувач
167
22 вересня 2015
25 січ 2016 14:59
Цитата "speedsx":Из чего делаем вывод, что слухи все-таки не ложные и наехали именно на "SG".
Но спасибо хоть не "переход на новый процессинг"...
Сорри, паника отменяется
стройка продолжается. Наехали на других.Аргоныч
Постійний користувач
326
08 листопада 2015
25 січ 2016 16:52
Цитата "speedsx":
Сорри, паника отменяетсястройка продолжается. Наехали на других.
на кого?
AAG
A
Постійний користувач
136
01 грудня 2015
27 січ 2016 07:31
Цитата "Аргоныч":
на кого?
На других ветках прочитал, что наехали на УКО.
Deka
D
Старожил
617
18 серпня 2008
01 лют 2016 10:05
Кину апдейт по жизни в Липинке 2, может кому пригодится при выборе Липинки (3)
1) Дорога жизни - принципиально ничего не поменялось разве только в худшую сторону. С двух сторон стройки - как только выходишь из Липинки-2 в сторону проспекта правды - что днем что ночью что летом что зимой - глязища и снующию туда сюда бетономешалки (машины), тягачи с панелями и тд - короче стройка и грязь!
2) Кладовки - таки дали - с этим все нормально. То есть обещание застройщик в конце концов выполнил
3) Охрана - уровень платежей растет очень медленно...Качество охранных услуг так себе. У меня в подъезде то работают то не работают магнитные замки на дверях.
4) Снег в этом году убирали довольно хорошо (как по мне) в отличие от первой зимы.
5) Отопление было ничего пока не ломалось в квартире у меня вполне себе тепло
6) Летом был инциндент с канализацией - поломались оба насоса (включая запасной как я понял). У нас на второй Липинке так называемая "временная" канализация (которая наверняка может стать постоянной) - то есть канализационные стоки не просто стекают в коллектор - а их необходимо прокачивать насосами "наверх" к улице белицкой (короче особенности рельефа и внутренних коммуникаций таковы). В общем на пару дней нам ограничили подачу воды (не путать с ограничением от КМДА в виду ремонта общегородского коллектора), чтобы мы на Липинке не сильно много канализационных стоков производили (включали по часам). Также приезжала машинка и дерьмо откачивало пару раз в день. Все это длилось вроде не больше недели. но настроение тогда не ахти было если честно.
1) Дорога жизни - принципиально ничего не поменялось разве только в худшую сторону. С двух сторон стройки - как только выходишь из Липинки-2 в сторону проспекта правды - что днем что ночью что летом что зимой - глязища и снующию туда сюда бетономешалки (машины), тягачи с панелями и тд - короче стройка и грязь!
2) Кладовки - таки дали - с этим все нормально. То есть обещание застройщик в конце концов выполнил
3) Охрана - уровень платежей растет очень медленно...Качество охранных услуг так себе. У меня в подъезде то работают то не работают магнитные замки на дверях.
4) Снег в этом году убирали довольно хорошо (как по мне) в отличие от первой зимы.
5) Отопление было ничего пока не ломалось в квартире у меня вполне себе тепло
6) Летом был инциндент с канализацией - поломались оба насоса (включая запасной как я понял). У нас на второй Липинке так называемая "временная" канализация (которая наверняка может стать постоянной) - то есть канализационные стоки не просто стекают в коллектор - а их необходимо прокачивать насосами "наверх" к улице белицкой (короче особенности рельефа и внутренних коммуникаций таковы). В общем на пару дней нам ограничили подачу воды (не путать с ограничением от КМДА в виду ремонта общегородского коллектора), чтобы мы на Липинке не сильно много канализационных стоков производили (включали по часам). Также приезжала машинка и дерьмо откачивало пару раз в день. Все это длилось вроде не больше недели. но настроение тогда не ахти было если честно.
Egouar
Ветеран
2 477
28 грудня 2004
01 лют 2016 12:17
Цитата "Deka":Кину апдейт по жизни в Липинке 2, может кому пригодится при выборе Липинки (3)
5) Отопление было ничего пока не ломалось в квартире у меня вполне себе тепло
У вас в Липинке автономное отопление? Как вообще в эксплуатации, оплате?
kenga
k
Перехожий
1
31 січня 2016
02 лют 2016 18:10
Здравствуйте.
Такой вопрос - на сайте Липинки есть скан лизензии ТОВ "Столичні будтехнології" на строительную деятельность, там же и разрешение на выполнений строительных работ, где опять застройщиком указано ТОВ "Столичні будтехнології". //www.lipinka.com.ua/ru/about/12/
Но в типовом договоре //www.lipinka.com.ua/ru/buyer/2284/ в качестве застройщика выступает "Стронис". И в ГАСКе нет данных о лицензии на строительную деятельность для "Стронис". Т.е. застройщик без лицензии?
Если на форуме есть представители Столицы, может они прояснят ситуацию.
Deka
D
Старожил
617
18 серпня 2008
04 лют 2016 01:26
Цитата "Egouar":
У вас в Липинке автономное отопление? Как вообще в эксплуатации, оплате?
Котельная на чердаке (в каждом доме). Проблем этой зимой не было. Все работает, греет нормально. В деньгах - у мне на 67 кв метра - 540 грн за декабрь и 690 за январь.
Egouar
Ветеран
2 477
28 грудня 2004
05 лют 2016 08:46
Цитата "Deka":
Котельная на чердаке (в каждом доме). Проблем этой зимой не было. Все работает, греет нормально. В деньгах - у мне на 67 кв метра - 540 грн за декабрь и 690 за январь.
Спасибо. А как в эксплуатации, не слышно вибраций и шума?
Deka
D
Старожил
617
18 серпня 2008
06 лют 2016 22:03
Цитата "Egouar":
Спасибо. А как в эксплуатации, не слышно вибраций и шума?
Я на третьем (из шести) этажей. Никакого шума не слышно. Да и какой шум может быть от газового котла?
Anna zhur
Az
Перехожий
1
07 лютого 2016
06 лют 2016 22:31
А подскажите, пожалуйста, как считают отопление у вас при наличии собственного газового котла на дом. Горячая вода тоже нагревается котлом? Те, меня интересует вы платите за потреблённый газ или за отопление в Гкал? И как распределяется между жильцами?
Domik Ai
штучний інтелект
38 027
09 вересня 2019
08 лют 2016 20:10
Дом №1-4:
отделка МОП
устройство внутренних инженерных систем
проведение внешних инженерных сетей в доме №1 и №3
Дом №5-10:
на заключительном этапе работы по кирпичной кладеке
в процессе установка оконных блоков
в процессе устройство внутренних инженерных систем в домах №5,6,7 и 10
отделка МОП
устройство внутренних инженерных систем
проведение внешних инженерных сетей в доме №1 и №3
Дом №5-10:
на заключительном этапе работы по кирпичной кладеке
в процессе установка оконных блоков
в процессе устройство внутренних инженерных систем в домах №5,6,7 и 10
Domik Ai
штучний інтелект
38 027
09 вересня 2019
08 лют 2016 20:10
CoLt
C
Користувач
84
24 жовтня 2012
09 лют 2016 14:38
Шпионские фото=)
Stolitsa Group
Новачок
19
16 квітня 2010
03 бер 2016 10:41
Уважаемые посетители!
В связи с аварийным состоянием дома по ул. Б.Хмельницкого,
проход во двор через арку к офису компании Stolitsa Group закрыт на
неопределенный срок.
Пройти к офису можно через арку следующего здания по ул. Б.Хмельницкого 16 – КИЕВПРОЕКТ.
Просим извинить за временные неудобства.
С уважением, SG
В связи с аварийным состоянием дома по ул. Б.Хмельницкого,
проход во двор через арку к офису компании Stolitsa Group закрыт на
неопределенный срок.
Пройти к офису можно через арку следующего здания по ул. Б.Хмельницкого 16 – КИЕВПРОЕКТ.
Просим извинить за временные неудобства.
С уважением, SG
Stolitsa Group
Новачок
19
16 квітня 2010
03 бер 2016 10:42
Уважаемые посетители!
В связи с аварийным состоянием дома по ул. Б.Хмельницкого,
проход во двор через арку к офису компании Stolitsa Group закрыт на
неопределенный срок.
Пройти к офису можно через арку следующего здания по ул. Б.Хмельницкого 16 – КИЕВПРОЕКТ.
Просим извинить за временные неудобства.
С уважением, SG
В связи с аварийным состоянием дома по ул. Б.Хмельницкого,
проход во двор через арку к офису компании Stolitsa Group закрыт на
неопределенный срок.
Пройти к офису можно через арку следующего здания по ул. Б.Хмельницкого 16 – КИЕВПРОЕКТ.
Просим извинить за временные неудобства.
С уважением, SG
Авторський канал ріелтора в Іспанії
Знайомтесь з Бенідормом, нерухомістю та стилем життя. Новобудови регіону, аналітика, інвестиції
Детальніше
- ЖК Оберіг-2 | Киевгорстрой, Укрбуд | ул. Бориспольская, 4014.042 516
- ЖК Урлівський-1 | Київміськбуд, BudCapital | Київ, вул. Причальна, 1114.043 822
- ЖК Зіркова Вежа | Элит-Фасад Групп | Вишгород, вул. Шолуденка, 2614.04416
- Апарт-комплекс у Пущі Водиці | Київміськбуд | Київ, вул. Квітки Цісик 34,3613.04434
- ЖК Polaris Home & Plaza | Perfect Group, Citex Development | Київ, вул. Сім'ї Кульженків, 2213.04500
- ЖК Sister | РіЕЛ | Київ, вул. Клеманська, 313.047
- ЖК Edelweiss House | Edelburg Development | Киів, вул. Звіринецька, 70-а13.04540
- ЖК Ozon Concept House | Saga Development, BGV-Development | Київ, вул. Вільшанська, 2613.047
- ЖК Fjord | ENSO | Київ, Військовий проїзд, 811.04162
- ЖК Family and Friends | 2 черга | GEOS | Київ, вул. Новопольова, 209.04541
- Налог на дар денег между мужем и женой11.041
- Чи варто зараз купувати нерухомість?06.045 039
- На що звертати увагу при покупці квартири?30.032
- Rivne Invest Forum у Рівному — дводенна подія04.031
- Нужны или не нужны риэлторы? Не понимаю!03.021 503
- Lviv Build Forum | Декілька слів з власного досвіду30.011
- Планую оренду квартири в районі Подолу27.014
- Купівля квартири в новобудові коли сусудні квартири не будуть заселені16.012
- Двоповерхові квартири в новобудовах, переваги та недоліки, враження?30.1213
- Пруд на даче20.0221
- Отзывы о кондиционерах. Какой кондиционер лучше19.02281
- Болит спина11.0274
- Выбор ноутбука. Отзывы о ноутбуках24.0180
- Постройка бани20.1218
- Кухонные столешницы. Отзывы о практичных и неубиваемых вариантах13.11111
- Где найти качественные полотенца?04.092
- Орхидеи. Как ухаживать за орхидеями29.0818
- Выбор пылесоса. Отзывы о ваших пылесосах26.0866
- Апарт-комплекс Тиса Renovation | Ужгород. вул. Сергія Мартина, 429.013
- Львів, вул. Бережанська, 54 | Інтергал-Буд26.0133
- ЖК Grand Palace | Хмельницький, вул. Подільська, 11521.0116
- ЖК Sakura | Свалява, пров. Достоєвського, 418.016
- Львів, вул. Трускавецька | Галжитлобуд11.016
- ЖК Lazur Sky | Львів, вул. Зелена, 115д02.013
- Как не снимая старую эмаль покрасить сверху акриловой (латексной) краской?17.033
- Выбираю акриловую краску17.0320
- Выбираю краску по металлу. Поделитесь советом и опытом17.032
- Какую выбрать грунтовку и шпатлевку17.0314
- Диммерний блок для сценічних софітів постійно вимикається14.033
- Установка насоса для решения проблем с водой07.039
- Отклеилась краска вместе с малярной лентой. В чем проблема?25.0215
- Шпаклевка трескается под обоями25.022
- Плесень на стене - как с этим бороться25.0264
- Входные и межкомнатные двери, продажа, изготовление, установка13.0436
- Своя машина или такси?07.04538
- Де зараз краще оформити медичну довідку або санітарну книжку?07.042
- Окна, двери и комфорт под ключ в Одессе — от компании «Окнодом»06.041
- Электрик Киев . Замена розеток, выключателей, люстр, автоматов05.041
- Просунуті сучасні системи опалювання31.031
- DOOR(*)COM(*)UA — продаж стратегічного домену для лідера дверного ринку України30.031
- Продаж 1-кімнатна Квартира Ірпінь , ЖК Молодість, вул. Соборна 2К/2525.031
- Клиника урологии в Николаеве02.031
Авторський канал ріелтора в Іспанії
Знайомтесь з Бенідормом, нерухомістю та стилем життя. Новобудови регіону, аналітика, інвестиції
Детальніше