Дім 5а - ЖК "Лісовий квартал"
Gayka
Постійний користувач
183
10 листопада 2017
14 черв 2018 16:50
Тип квартиры 2А. Давали маленький кусочек только с моей квартирой, видно что делали скриншот и вырезали уже из большого чертежа. 
По поводу повторных продаж не совсем понимаю о чем вы)
По поводу повторных продаж не совсем понимаю о чем вы)
Tim4uk
Постійний користувач
178
25 травня 2014
14 черв 2018 17:23
Цитата "Gayka":Тип квартиры 2А. Давали маленький кусочек только с моей квартирой, видно что делали скриншот и вырезали уже из большого чертежа.
По поводу повторных продаж не совсем понимаю о чем вы)
а к кому подходить по этому вопросу? и как быстро это сделали?
Gayka
Постійний користувач
183
10 листопада 2017
14 черв 2018 17:33
Попробуйте в ОП. У меня на это ушло около месяца, я так понимаю что не особо охотно этим делятся.
angelo4ek2
a
Користувач
31
04 травня 2018
15 черв 2018 06:09
Цитата "Gayka":Тип квартиры 2А. Давали маленький кусочек только с моей квартирой, видно что делали скриншот и вырезали уже из большого чертежа.
По поводу повторных продаж не совсем понимаю о чем вы)
Доброе утро. Если не жалко, могли бы написать примерные размеры кухни и коридора.

Tim4uk
Постійний користувач
178
25 травня 2014
15 черв 2018 09:17
Цитата "angelo4ek2":
Доброе утро. Если не жалко, могли бы написать примерные размеры кухни и коридора.
Было бы отлично если бы добытые 1 мес. трудом сканы были выложены тут. Наверняка кому-то они пригодятся.

angelo4ek2
a
Користувач
31
04 травня 2018
15 черв 2018 11:56
Цитата "Tim4uk":
Было бы отлично если бы добытые 1 мес. трудом сканы были выложены тут. Наверняка кому-то они пригодятся.
Вы знаете, до сдачи нашего дома еще долгих 3 года, так как я инвестор 8 дома, у которого должна быть такая же планировка. И в любом случае я буду знать замеры еще задолго до сдачи своего дома, ориентируясь на обмеры вашего. Если Вы внимательно читали, то я не просила сканов или точных замеров, а примерные размеры, для того что бы понять, грубо говоря, это будет комната 3*5 или 4*4. Хорошего дня

Gayka
Постійний користувач
183
10 листопада 2017
15 черв 2018 12:13
Добрый день!
Добре, сделаем! Только я сейчас в отъезде, до своего ноута с этим всем доберусь числа 25го. Если терпит конечно...
Добре, сделаем! Только я сейчас в отъезде, до своего ноута с этим всем доберусь числа 25го. Если терпит конечно...
blademdc
b
Користувач
30
06 квітня 2017
15 черв 2018 12:37
Проезжал час назад)
angelo4ek2
a
Користувач
31
04 травня 2018
15 черв 2018 12:41
Цитата "Gayka":Добрый день!
Добре, сделаем! Только я сейчас в отъезде, до своего ноута с этим всем доберусь числа 25го. Если терпит конечно...
Я не совсем ваша соседка
 , но я за новые знакомства 
Ilarion 
Постійний користувач
218
27 травня 2018
20 черв 2018 13:53
20.06.18
Монтаж вертикальных конструкций 13 этажа.
Монтаж вертикальных конструкций 13 этажа.
_Denver_
_
Новачок
17
20 вересня 2017
21 черв 2018 09:29
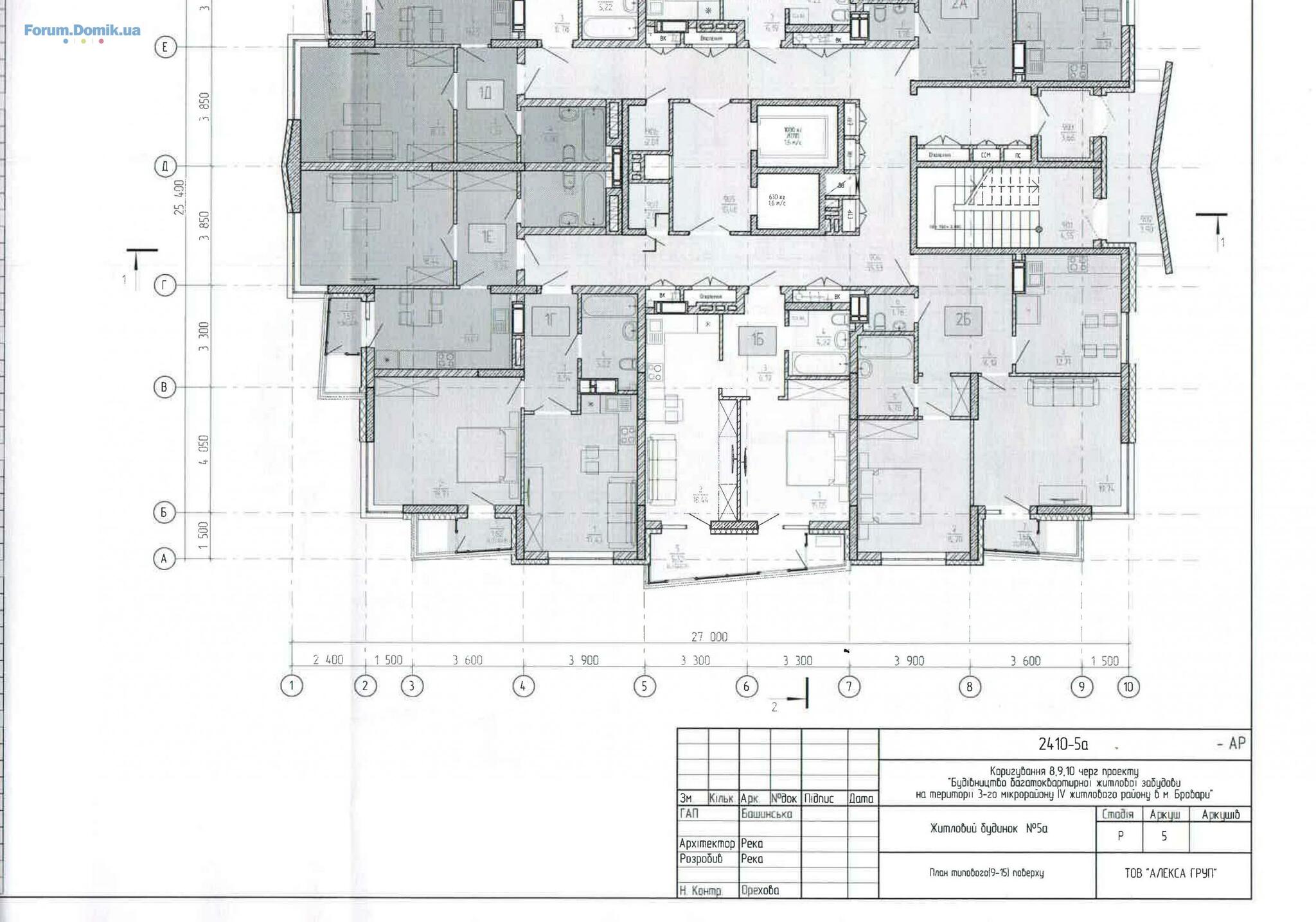
Шматок з промірами. Поверхи 9-15.
Є розміри, згідно з якими можна щось накреслити.

Є розміри, згідно з якими можна щось накреслити.
Gayka
Постійний користувач
183
10 листопада 2017
21 черв 2018 11:35
Спанч за план! Как и в моем случае тут только размеры по осям
Bim Bom
Постійний користувач
123
24 травня 2017
21 черв 2018 13:15
от этого плана толка мало. Только осевые размеры. А нужны именно внутренние. Нужный план - у укладчиков внутренних стен и перегородок. Вот у них нужно добывать план этажа,  который реально будет полезен для проекта перепланировки квартиры.  
  
  
  
  
Ilarion 
Постійний користувач
218
27 травня 2018
29 черв 2018 16:29
29.06.18
Olga_Andrew 
O
Користувач
73
09 листопада 2017
29 черв 2018 16:52
Спасибо за фоточки 😍
Gayka
Постійний користувач
183
10 листопада 2017
29 черв 2018 17:11
Красотища
Shepot_A
Старожил
544
01 лютого 2016
29 черв 2018 23:57
Цитата "Bim Bom":от этого плана толка мало. Только осевые размеры. А нужны именно внутренние. Нужный план - у укладчиков внутренних стен и перегородок. Вот у них нужно добывать план этажа, который реально будет полезен для проекта перепланировки квартиры.![]()
![]()
вы полагаете, его легко раздобыть? Я бы уже покумекала с дизайнером относительно возможной перепланировки.
Shepot_A
Старожил
544
01 лютого 2016
29 черв 2018 23:59
Цитата "Ilarion ":29.06.18
Ой, ну красавчик же) И как и ожидалось - отличается от остальных домов - уже даже на этом этапе видно)
Bim Bom
Постійний користувач
123
24 травня 2017
30 черв 2018 06:43
Цитата "Shepot_A":
вы полагаете, его легко раздобыть? Я бы уже покумекала с дизайнером относительно возможной перепланировки.
Кумекать над перепланировкой, не имея точных внутренних размеров помещения,можно только с декоратором. Тот, кто за это пустое дело берется -не дизайнер вовсе.
В планировке помещения важны каждые 5-10 см... Без точного, актуального плана...проект перепланировки будет неактуальным.
Нужный план, с внутренней разметкой стен, есть у каждого каменщика, который работает на этом доме. Как вариант, можно попросить любого рабочего, кто имеет доступ на стройплощадку, подойти на этот дом, и переговорить с одним из каменщиков. Договориться о копии плана этажа, за денежку, или еще какой презент..Да хотя бы сфотать этот план на телефон, пусть фрагментами по типу квартир, чтобы было читабельно.
С бригадиром, или с другим начальником на этом объекте договориться будет сложнее, но тоже вполне реально. Только не уговаривайте меня это сделать, я не живу в Украине.
  
Gayka
Постійний користувач
183
10 листопада 2017
30 черв 2018 08:40
Позволю себе уточнить кое-какие детали. На самом деле, реальный план- это только тот, который будет сделан по обмеру ваших строителей после сдачи, все остальные планы они будут только плюс-минус приблизительные. По поводу кумекать: чем больше площадь квартиры, тем проще представить принципиальный план. Конечно, архитектурная контора под ним не подпишется, но хозяин квартиры может хотя бы понимать на что ему насчитывать. А вот если квартира 30 квадратов, то там и правда боришься за каждые пять сантиметров.
Купуй квартиру на Domik.ua
Широкий вибір квартир від власників, забудовників та ріелторів
Детальніше
- Київ, вул. Кудряшова, 14а | Київміськбуд (скасовано)04.1126
 - ЖК Sanville Park | Санвиль Групп | Святопетрівське, вул. Богдана04.1141
 - ЖК Chalet | Standard Development | Київ, вул. Львівська, 18-б04.11116
 - ЖК Family and Friends | 2 черга | GEOS | Київ, вул. Новопольова, 203.11531
 - Власники квартир з ЖК Крона парк 2 в будинку 3 (Соборна 23, м. Бровари) - відгукніться!03.111
 - ЖК Дніпровська Мрія | Галжитлобуд | ул. Сосюры, 603.11796
 - ЖК Урлівський-2 | Київміськбуд | Київ, вул. Клеманська, Причальна, Сортувальна02.112 066
 - ЖК Заречный | bUd development | пр-т Н. Бажана, ул. Заречная02.1111 515
 - ЖК Star City | Стар Сіті | bUdCapital, Київміськбуд | Київ, вул. Каунаська, 2702.11458
 - ЖК Poetica, 1-я коллекция | Поэтика | ENSO | ул. Дегтяревская, 25а02.113 104
 
- Дно рынка недвижимости и влияющие факторы04.1115 253
 - Чи варто зараз купувати нерухомість?29.104 723
 - Чи варто купити будинок в спокійному регіоні, в Вінниці?17.092
 - Завышеные тарифы на отопление. Как обжаловать и куда писать?19.082
 - Іпотека від Банків із найкращими умовами | Обговорення кредитів під заставу нерухомості13.08192
 - Краудфандинг - типы группового инвестирования01.083
 - Планую оренду квартири в районі Подолу30.073
 - Про агентство Атлант-А23.0722
 - Допоможіть розібратись з податками08.053
 
- Где найти качественные полотенца?04.092
 - Орхидеи. Как ухаживать за орхидеями29.0818
 - Выбор пылесоса. Отзывы о ваших пылесосах26.0866
 - Відгуки про ортопедичні матраци. Матраци для комфортного сну22.0891
 - Болит спина07.0873
 - Какую выбрать мебель на террасу?04.084
 - Стоит ли покупать кофе-машину13.07154
 - Декоративные элементы в интерьере. Советы и отзывы о их сочетании12.0716
 - Декор окна без штор, варианты и советы12.0746
 
- ЖК Kandinsky Odessa Residence | Кандинский | Одесса, Французский бульвар, 63/6515.10182
 - ЖК Дом у моря | Югінвест | Южный, ул. Иванова10.1017
 - ЖК Sakura | Свалява, пров. Достоєвського, 404.105
 - ЖК Імперіал Парк Авеню | Імперіал Буд | Чернівці, вул. Рівненська, 718.084
 - ЖК Manhattan | Blago developer | Івано-Франківськ, вул. Романа Левицького, вул. Ленкавського04.0815
 - ЖК Зелений двір | Спілка забудівників | Івано-Франківськ, вул. Тисменицька04.089
 
- Кварц виниловая плитка LG Decotile или Berry Alloc29.106
 - Напольные покрытия - чтобы было тепло, красиво и недорого29.1018
 - Яка реальна ціна чорнових робіт в 2025 для будинку08.101
 - Хто планує поїхати на будівельний форум у Львові цього вересня?01.093
 - Тепла підлога, відгуки та поради28.08205
 - Крыша потекла, что делать?25.0818
 - Перепланування | прохання та поради щодо конкретних ситуацій19.082 216
 - Матеріал багатоквартирного будинку. Який найкращий?13.0812
 - Кліматичне обладнання норвезької ТМ Bergen07.082
 
- Продам фонарик шокер ОСА 928 Power plus04.111
 - Пошук обладнання для магазину21.101
 - Как отвечать на How are You?04.102
 - Что подарить мужчине?24.09351
 - Мій сайт не з'являється в результатах пошуку20.093
 - Домик для кота26.085
 - Тренажер в доме. Какой выбрать24.0817
 - Меблі на замовлення | Оголошення про виготовлення меблів18.0899
 - Как уберечь холодильник от перепадов напряжения09.0810
 
Купуй квартиру на Domik.ua
Широкий вибір квартир від власників, забудовників та ріелторів
Детальніше