Перепланировка | тема просьб и советов по конкретным ситуациям
kksyu
k
Пользователь
54
01 октября 2014
02 окт 2015 16:24
Добрый день! Хотим сделать вход в спальню из прихожей, увеличить кухню за счет маленького с/у и сделать из нее небольшую кухню-гостиную. Что посоветуете? Заранее спасибо!
Vincor_2009
Пользователь
46
18 марта 2015
02 окт 2015 16:33
Цитата "EAM78":
Видите ли возможным разместить тут и полноценное спальное место (а не складывающийся диван), и достаточную систему хранения под одежду, и гостевую зону с диваном? У меня пока выходит либо кровать, либо гардероб(( Размеры от застройщика-по факту могут чуть измениться.
Добрый день EAM78 постарались учесть все ваши пожелания )) все получилось)
Vincor_2009
Пользователь
46
18 марта 2015
02 окт 2015 18:14
Цитата "Dolovar":Добрый день.
Помогите, пожалуйста, перепланировать маленькую двушку.
Хотелось, бы расширить кухню, но и сохранить хоть часть балкона. К маленькой комнате примыкает застекленный в пол (от строителей) маленький балкончик. Между всеми комнатами есть кусочки монолита, они шире обычных стен. На фасаде монолита нет.
В квартире будет жить двое взрослых и почти взрослый мальчик.
Добрый день "Dolovar ". Вот вариант с увеличением кухни за счет балкона , но чуть чуть балкона открытого все же оставили .)
Dolovar
D
Постоянный пользователь
301
14 августа 2015
02 окт 2015 18:53
Цитата "Vincor_2009":Добрый день "Dolovar ". Вот вариант с увеличением кухни за счет балкона , но чуть чуть балкона открытого все же оставили .)
И вам доброго дня.
Большое спасибо за интересный взгляд на планировку.
Жене понравился. Особенно сдвиг стенки для увеличения гардеробной.
Муж же хочет кое-что уточнить - чем второй взрослый сможет заниматься дома? Одно рабочее место на балконе, для второго остается или кухня, или кровать.
И почему выход из ванной сделан через туалет, а не напрямую в коридор? Не спора ради, хочется вашу мысль понять.
FaaipDeOiad
Пользователь
76
28 июля 2015
02 окт 2015 20:57
Цитата "Vincor_2009":
Добрый вечер "FaaipDeOiad". Вот по вашим пожеланиям сделали вариант, Большой диван в гостиной, раскладной)
Спасибо большое!
Samir
Гость
4
02 октября 2015
02 окт 2015 21:28
Цитата "Alexei90":
по быстрому Planer 5d
Да, хорошая програмка. Тоже ее юзаю

kc-design
Ветеран
1 644
22 сентября 2015
03 окт 2015 05:53
Цитата "kuba":без барной стойки, а ванная комната только с душем
Новый вариант с вашими пожеланиями, добавил дополнительно биде, в принципе в санузле возможно разместить и ванную и душевую.
Цитата "EAM78":Видите ли возможным разместить тут и полноценное спальное место (а не складывающийся диван), и достаточную систему хранения под одежду, и гостевую зону с диваном? У меня пока выходит либо кровать, либо гардероб(( Размеры от застройщика-по факту могут чуть измениться.
Забыла уточнить-проживать будет один человек
Более того, хотелось бы на лоджию все рабочую зону кухни и вынести (по возможности)). Спальню можно прикрывать символически, на случай прихода гостей
Все получилось, постарался разместить все как можно удобней.
Цитата "FaaipDeOiad":Добрый день!
Посоветуйте, пожалуйста. Есть однокомнатная квартира площадью 33,74. Нас трое - мы с женой и сын 3 года. Хочется сделать так, чтобы была небольшая детская (она в принципе с такой общей площадью и не будет никак большой), а остальное пространство как-то обустроить под гостиную-спальню-кухню. Или то, что в этой планировке наиболее оптимальное решение?
Извините за задержку, в общем получилось сделать изолированную спальню-гостиную, удобную кухню, просторную детскую и достаточно мест хранения.
Kuba, EAM78, FaaipDeOiad оставляйте пожалуйста свои комментарии и отзывы, спасибо.
Цитата "kksyu":Добрый день! Хотим сделать вход в спальню из прихожей, увеличить кухню за счет маленького с/у и сделать из нее небольшую кухню-гостиную. Что посоветуете? Заранее спасибо!
Никаких препятствий не вижу, можете смело осуществлять задуманное.
yurik1987
Ветеран
1 165
24 июня 2014
03 окт 2015 06:24
Здравствуйте!
Если Вас не затруднит, помогите с перепланировкой 1-к квартиры. Черные стены - несущие. Под окнами находятся батареи. Очень хотелось бы иметь отдельную спальную зону и присоединить балкон (из-за этого и брали такую планировку).
Если Вас не затруднит, помогите с перепланировкой 1-к квартиры. Черные стены - несущие. Под окнами находятся батареи. Очень хотелось бы иметь отдельную спальную зону и присоединить балкон (из-за этого и брали такую планировку).
kc-design
Ветеран
1 644
22 сентября 2015
03 окт 2015 06:32
Цитата "Alexs83":Напишите пожалуйста хотя бы примерные обмеры по стенах.
А без обмеров можна, поскольку на обьект еще не пускают и технически сделать это нереально. Хотя бы приблизительно...
Спасибо)[/quote]
А отдел продаж зачем? Запросите письменно копию с проекта, там указаны размеры. Без размеров с такой схематической картинкой я не работаю, такие картинки часто совсем в искаженных пропорциях.
EAM78
E
Новичок
14
01 октября 2015
03 окт 2015 08:14
Цитата "EAM78":Видите ли возможным разместить тут и полноценное спальное место (а не складывающийся диван), и достаточную систему хранения под одежду, и гостевую зону с диваном? У меня пока выходит либо кровать, либо гардероб(( Размеры от застройщика-по факту могут чуть измениться.
Забыла уточнить-проживать будет один человек
Более того, хотелось бы на лоджию все рабочую зону кухни и вынести (по возможности)). Спальню можно прикрывать символически, на случай прихода гостей
[attachment=2]EAM78.png[/attachment]
Все получилось, постарался разместить все как можно удобней.
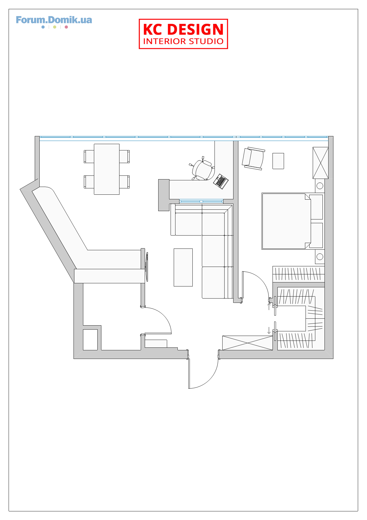
Добрый день. Большое спасибо за Ваши варианты (сразу оговорюсь что второй понравился чуть больше-хоть и не могу понять почему). ОЧЕНЬ полезно было узнать другой (ПРОФЕССИОНАЛЬНЫЙ) взгляд на эту площадь. Скажу честно, даже и не думала ставить стены в студии. Больше искала возможность втиснуть шкафы в приблизительно такой вариант размещения дивана и кровати(извиняюсь за подобную наскальную живопись-сугубо для наглядности;)) - фото прилагаю. Поскольку кровать (рассматриваю даже вариант матраса на подиуме с выдвижными ящиками) нужна только для комфортного сна, а все остальное/основное время будет проходить на/в кухне/гостиной, хотелось бы еще "урвать" сантиметры площади в пользу последней. С радостью пожертвую для этого рабочим/туалетным столиком, тумбочкой и креслом;)). В санузле ТОЧНО не будет ванны, будет душ в строит.исполнении, а вот куда его втиснуть(то ли в нишу вместо унитаза, то ли по стене 1,7м рядом с раковиной) будет ясно после взгляда живьем. Хотелось бы оставить это маленькое пространство максимально светлым и без перегородок, но видимо все же кухню от спальни стоит изолировать (из-за запахов), поэтому к Вашим вариантам обязательно присмотрюсь. Еще раз спасибо за Вашу работу. Правильно ли я поняла, Вы не советуете выносить рабочую зону кухни на лоджию? И еще, думала этот кусок стены между кухней и лоджией несущий(на рисунке обведен красным).
Vincor_2009
Пользователь
46
18 марта 2015
03 окт 2015 08:53
Добрый день. Большое спасибо за Ваши варианты (сразу оговорюсь что второй понравился чуть больше-хоть и не могу понять почему). ОЧЕНЬ полезно было узнать другой (ПРОФЕССИОНАЛЬНЫЙ) взгляд на эту площадь. Скажу честно, даже и не думала ставить стены в студии. Больше искала возможность втиснуть шкафы в приблизительно такой вариант размещения дивана и кровати(извиняюсь за подобную наскальную живопись-сугубо для наглядности;)) - фото прилагаю. Поскольку кровать (рассматриваю даже вариант матраса на подиуме с выдвижными ящиками) нужна только для комфортного сна, а все остальное/основное время будет проходить на/в кухне/гостиной, хотелось бы еще "урвать" сантиметры площади в пользу последней. С радостью пожертвую для этого рабочим/туалетным столиком, тумбочкой и креслом;)). В санузле ТОЧНО не будет ванны, будет душ в строит.исполнении, а вот куда его втиснуть(то ли в нишу вместо унитаза, то ли по стене 1,7м рядом с раковиной) будет ясно после взгляда живьем. Хотелось бы оставить это маленькое пространство максимально светлым и без перегородок, но видимо все же кухню от спальни стоит изолировать (из-за запахов), поэтому к Вашим вариантам обязательно присмотрюсь. Еще раз спасибо за Вашу работу. Правильно ли я поняла, Вы не советуете выносить рабочую зону кухни на лоджию? И еще, думала этот кусок стены между кухней и лоджией несущий(на рисунке обведен красным).[/quote]
У вас отличный вариант). Кусочек который вы обвели красным не несущий его можно убирать ).
У вас отличный вариант). Кусочек который вы обвели красным не несущий его можно убирать ).
kc-design
Ветеран
1 644
22 сентября 2015
03 окт 2015 11:43
Цитата "yurik1987":Здравствуйте!
Если Вас не затруднит, помогите с перепланировкой 1-к квартиры. Черные стены - несущие. Под окнами находятся батареи. Очень хотелось бы иметь отдельную спальную зону и присоединить балкон (из-за этого и брали такую планировку).
Сделал вот такой набросок.
Цитата "EAM78":
Добрый день. Большое спасибо за Ваши варианты (сразу оговорюсь что второй понравился чуть больше-хоть и не могу понять почему). ОЧЕНЬ полезно было узнать другой (ПРОФЕССИОНАЛЬНЫЙ) взгляд на эту площадь. Скажу честно, даже и не думала ставить стены в студии. Больше искала возможность втиснуть шкафы в приблизительно такой вариант размещения дивана и кровати(извиняюсь за подобную наскальную живопись-сугубо для наглядности;)) - фото прилагаю. Поскольку кровать (рассматриваю даже вариант матраса на подиуме с выдвижными ящиками) нужна только для комфортного сна, а все остальное/основное время будет проходить на/в кухне/гостиной, хотелось бы еще "урвать" сантиметры площади в пользу последней. С радостью пожертвую для этого рабочим/туалетным столиком, тумбочкой и креслом;)). В санузле ТОЧНО не будет ванны, будет душ в строит.исполнении, а вот куда его втиснуть(то ли в нишу вместо унитаза, то ли по стене 1,7м рядом с раковиной) будет ясно после взгляда живьем. Хотелось бы оставить это маленькое пространство максимально светлым и без перегородок, но видимо все же кухню от спальни стоит изолировать (из-за запахов), поэтому к Вашим вариантам обязательно присмотрюсь. Еще раз спасибо за Вашу работу. Правильно ли я поняла, Вы не советуете выносить рабочую зону кухни на лоджию? И еще, думала этот кусок стены между кухней и лоджией несущий(на рисунке обведен красным).
Сделал вариант поинтересней.
Спальня изолирована, но не тесная, освещается световым окном под потолком (можно вставить витражи), есть комод, тумбочка а под кроватью может размещаться дополнительный короб для вещей (система подъемный каркас). Санузел с душевой, стиральной машиной и шкафом над ней, пожалуй это самый удобный вариант по расположению. Кухня также изменилась, а гостиная зона увеличилась, сохранил и рабочий столик.
В целом пространство стало более открытым.
По поводу рабочей зоны на лоджии. Если это целесообразно, то выносить можно, только вот мойку туда нельзя выносить. Здесь трудности возникают лишь с высотой подоконника и с самим остеклением лоджии, окна нужно открывать, как то удобно мыть и обогревать зимой "тепловой завесой".
Добавляются разные конструкторские нюансы.
И о спальне, спальня которая закрывается всегда лучше, только вот она должна иметь дополнительный свободный объем, иначе будет душно и тесно.
Кстати радиатор на кухне здесь перемещается под столешницу, справа от варочной поверхности, маленький технический нюанс)
EAM78 подскажите пожалуйста в каком ЖК эта квартира?
EAM78
E
Новичок
14
01 октября 2015
03 окт 2015 12:05
Сделал вариант поинтересней.
Ух ты!!!! Интересно, "стащила", изучаю-спасибо). Первая же мысль-все же смущает такой вход в санузел.... Предыдущий, как по мне, был лучше..... Стиралку думаю можно впихнуть под раковину, а неглубокий шкаф сделать над унитазом(там всё равно будет инсталляция, вот как раз над ней и задействовать место)
Спальня изолирована, но не тесная
Ширина кровати там 140? Плохо ориентируюсь в пропорциях;)
а гостиная зона увеличилась
За это СПАСИБО)
В целом пространство стало более открытым.
И за это))))
EAM78 подскажите пожалуйста в каком ЖК эта квартира?[/quote]
Это Бровары, ЖК Лесной квартал.
Ух ты!!!! Интересно, "стащила", изучаю-спасибо). Первая же мысль-все же смущает такой вход в санузел.... Предыдущий, как по мне, был лучше..... Стиралку думаю можно впихнуть под раковину, а неглубокий шкаф сделать над унитазом(там всё равно будет инсталляция, вот как раз над ней и задействовать место)
Спальня изолирована, но не тесная
Ширина кровати там 140? Плохо ориентируюсь в пропорциях;)
а гостиная зона увеличилась
За это СПАСИБО)
В целом пространство стало более открытым.
И за это))))
EAM78 подскажите пожалуйста в каком ЖК эта квартира?[/quote]
Это Бровары, ЖК Лесной квартал.
kc-design
Ветеран
1 644
22 сентября 2015
03 окт 2015 12:39
Цитата "EAM78":Сделал вариант поинтересней.
Ух ты!!!! Интересно, "стащила", изучаю-спасибо). Первая же мысль-все же смущает такой вход в санузел.... Предыдущий, как по мне, был лучше..... Стиралку думаю можно впихнуть под раковину, а неглубокий шкаф сделать над унитазом(там всё равно будет инсталляция, вот как раз над ней и задействовать место)
Спальня изолирована, но не тесная
Ширина кровати там 140? Плохо ориентируюсь в пропорциях;)
а гостиная зона увеличилась
За это СПАСИБО)
В целом пространство стало более открытым.
И за это))))
EAM78 подскажите пожалуйста в каком ЖК эта квартира?
Это Бровары, ЖК Лесной квартал.[/quote]
Подправил
В санузел можно и через проем в шкафу входить, а сверху антресоль, так даже вроде и лучше.
Машинку под раковину не рекомендую, это и неудобно и ее надо малюсенькую на 4кг, сбоку от душевой самое ее место, можно и бойлер сверху повесить. Над инсталляцией скорей всего сантехнический шкаф будет у вас. Фоток из санузла у вас нет?
Кровать 120, меньше уже не комфортно.
EAM78
E
Новичок
14
01 октября 2015
03 окт 2015 13:19
[attachment=0]EAM78-3v.png[/attachment]
Подправил
Фоток из санузла у вас нет?
.[/quote]
Нет, к сожалению нет. И за этот вариант спасибо. Только, пожалуй, узкий проход в ванной получается... Можно стиралку под дух.шкаф (как в пред.вариантах), а раковину к душу на ее место. Тогда проход освобождается, но тогда минус вместительный шкаф под всякие хоз нужды... Останутся полки под раковиной и разве что узенький стеллаж вдоль пустой стены.
Подправил
Фоток из санузла у вас нет?
.[/quote]
Нет, к сожалению нет. И за этот вариант спасибо. Только, пожалуй, узкий проход в ванной получается... Можно стиралку под дух.шкаф (как в пред.вариантах), а раковину к душу на ее место. Тогда проход освобождается, но тогда минус вместительный шкаф под всякие хоз нужды... Останутся полки под раковиной и разве что узенький стеллаж вдоль пустой стены.
kc-design
Ветеран
1 644
22 сентября 2015
03 окт 2015 13:36
Цитата "EAM78":[attachment=0]EAM78-3v.png[/attachment]
Подправил
Фоток из санузла у вас нет?
.
Нет, к сожалению нет. И за этот вариант спасибо. Только, пожалуй, узкий проход в ванной получается... Можно стиралку под дух.шкаф (как в пред.вариантах), а раковину к душу на ее место. Тогда проход освобождается, но тогда минус вместительный шкаф под всякие хоз нужды... Останутся полки под раковиной и разве что узенький стеллаж вдоль пустой стены.[/quote]
Там можно стенку санузла передвинуть на 20 см в сторону кухни, тогда будет попросторнее, я делал варианты в существующих габаритах, там 50 см проход.
FaaipDeOiad
Пользователь
76
28 июля 2015
03 окт 2015 13:50
Цитата "kc-design":
[attachment=2]kuba.png[/attachment]
Новый вариант с вашими пожеланиями, добавил дополнительно биде, в принципе в санузле возможно разместить и ванную и душевую.
[attachment=1]EAM78.png[/attachment]
Все получилось, постарался разместить все как можно удобней.
[attachment=0]FaaipDeOiad.png[/attachment]
Извините за задержку, в общем получилось сделать изолированную спальню-гостиную, удобную кухню, просторную детскую и достаточно мест хранения.
Kuba, EAM78, FaaipDeOiad оставляйте пожалуйста свои комментарии и отзывы, спасибо.
Никаких препятствий не вижу, можете смело осуществлять задуманное.
Мне нравится, спасибо. Думаю, может только стойку на кухне убрать, чтобы было больше общее пространство, когда перегородка открыта
allana
a
Пользователь
44
02 ноября 2014
03 окт 2015 16:49
Добрый вечер! Vincor_2009, спасибо Вам за помощь.не думала, что может быть сколько вариантов.ходила целую неделю обдумывала увиденное. извините, что не сразу поблагодарила. очень-очень приятно и большое спасибо за потраченное время и проделанную работу.сама бы точно так не смогла.больше всего по душе вариант 3.хотела по нему уточнить, если можно6 в кухне у нас окна практически в пол, так что рабочая поверхность возле окна не очень то получится, разве что барная стойка, так? и самый главный вопрос: если все же в этом варианте сделать более изолированную гостинную, т.е.от монолитной колонны продлить стену, но угла уже не делать, типа арку оставить или что-то в этому роде.чтоб было более изолированное пространство: например муж себе в отдельном кабинете, а я в отдельном.а не на кухне.как считаете или это уже такого эффекта иметь не будет.
и еще раз спасибо.действительно помогли: вселили идею в голову.
и еще раз спасибо.действительно помогли: вселили идею в голову.
Ckopik
C
Постоянный пользователь
288
20 июня 2015
03 окт 2015 18:43
Ломаем голову как лучше перепланировать квартиру, см. Вложение. Пока идёт строительство дома строители за умеренные деньги это могут сделать и утвердить в БТИ.
Увы, из-за бетонных колон не особо получается что-то выдумать.
Семья из 2х молодых с карапузом, предпочитаем комфортный и современный минимализм с максимально эффективным использованием пространства. Часто друзья заходят в гости, поэтому важна просторная гостиная-столовая. Хотелось бы увеличить ванную. Может разделить санузел? И небольшая дилемма - как-то разместить 2 велосипеда с запасными колёсами (сейчас висят на стойке и занимают площадь 1800*900 мм)
Буду очень признателен за советы.
Увы, из-за бетонных колон не особо получается что-то выдумать.
Семья из 2х молодых с карапузом, предпочитаем комфортный и современный минимализм с максимально эффективным использованием пространства. Часто друзья заходят в гости, поэтому важна просторная гостиная-столовая. Хотелось бы увеличить ванную. Может разделить санузел? И небольшая дилемма - как-то разместить 2 велосипеда с запасными колёсами (сейчас висят на стойке и занимают площадь 1800*900 мм)
Буду очень признателен за советы.
yurik1987
Ветеран
1 165
24 июня 2014
03 окт 2015 18:58
Цитата "kc-design":
Сделал вот такой набросок.
Спасибо.
Авторський канал ріелтора в Іспанії
Знайомтесь з Бенідормом, нерухомістю та стилем життя. Новобудови регіону, аналітика, інвестиції
Подробнее
- ЖК Poetica, 1-я коллекция | Поэтика | ENSO | ул. Дегтяревская, 25а27.033 124
- ЖК Зіркова Вежа | Элит-Фасад Групп | Вышгород, ул. Шолуденко, 2626.03415
- ЖК Diadans | Диаданс | ENSO | ул. Евгения Коновальца26.03273
- ЖК Paradise Avenue | ZIM Group | Крюківщина, вул. Чорновола26.032 505
- ЖК Fjord | Фьорд | ENSO | Киев, Военный проезд, 826.03161
- ЖК Family and Friends | 2 очередь | GEOS | Киев, ул. Новополевая, 225.03537
- ЖК Maxima Residence | РіЕЛ, Bosphorus Development | Київ, вул. Євгена Коновальця, 3025.032
- ЖК Урловский-1 | Киевгорстрой, bUdCapital | Киев, ул. Причальная, 1125.033 813
- ЖК Mirax | Київміськбуд, BudCapital | Київ, вул. Глубочицька, 4324.034 427
- ЖК Utlandia 2,3 | Tomin Family | Ирпень, ул. Украинская, 1-а,б24.03100
- Стоит ли сейчас покупать недвижимость?15.035 027
- Rivne Invest Forum у Рівному — дводенна подія04.031
- Нужны или не нужны риэлторы? Не понимаю!03.021 503
- Lviv Build Forum | Декілька слів з власного досвіду30.011
- Планирую аренду квартиры в районе Подола27.014
- Купівля квартири в новобудові коли сусудні квартири не будуть заселені16.012
- Двоповерхові квартири в новобудовах, переваги та недоліки, враження?30.1213
- Походження грошей на купівлю квартири при її продажу27.126
- Застройщик предлагает только дарственную вместо купли-продажи. Насколько это популярно?23.1210
- Пруд на даче20.0221
- Отзывы о кондиционерах. Какой кондиционер лучше19.02281
- Болит спина11.0274
- Выбор ноутбука. Отзывы о ноутбуках24.0180
- Постройка бани20.1218
- Кухонные столешницы. Отзывы о практичных и неубиваемых вариантах13.11111
- Где найти качественные полотенца?04.092
- Орхидеи. Как ухаживать за орхидеями29.0818
- Выбор пылесоса. Отзывы о ваших пылесосах26.0866
- Апарт-комплекс Тиса Renovation | Ужгород. вул. Сергія Мартина, 429.013
- Львів, вул. Бережанська, 54 | Інтергал-Буд26.0133
- ЖК Grand Palace | Хмельницький, вул. Подільська, 11521.0116
- ЖК Sakura | Свалява, пров. Достоєвського, 418.016
- Львів, вул. Трускавецька | Галжитлобуд11.016
- ЖК Lazur Sky | Львів, вул. Зелена, 115д02.013
- Как не снимая старую эмаль покрасить сверху акриловой (латексной) краской?17.033
- Выбираю акриловую краску17.0320
- Выбираю краску по металлу. Поделитесь советом и опытом17.032
- Какую выбрать грунтовку и шпатлевку17.0314
- Диммерний блок для сценічних софітів постійно вимикається14.033
- Установка насоса для решения проблем с водой07.039
- Отклеилась краска вместе с малярной лентой. В чем проблема?25.0215
- Шпаклевка трескается под обоями25.022
- Плесень на стене - как с этим бороться25.0264
- Продаж 1-кімнатна Квартира Ірпінь , ЖК Молодість, вул. Соборна 2К/2525.031
- Клиника урологии в Николаеве02.031
- Мебельная фурнитура, скидки производителям мебели18.021
- Мебель под заказ | Объявления об изготовлении мебели18.02100
- Клінінг Київ: професійне прибирання від Partner Clean (20+ років досвіду)10.021
- Как можно избавиться от запаха сигарет в квартире?01.025
- Как удалить различные пятна с пола из ламината23.0115
- Как вернуть хороший вид деревянной посуде14.014
- Уборка квартиры при помощи натуральных средств07.0145
Авторський канал ріелтора в Іспанії
Знайомтесь з Бенідормом, нерухомістю та стилем життя. Новобудови регіону, аналітика, інвестиції
Подробнее