ЖК "Кристер Град", ул. Маршала Гречко, пр. Правды - "ДБК-4"
Ваше общее впечатление об Объекте и Компании:
Можно выбрать 1 вариант ответа. Можно менять ответы. Всего голосов: 256.
| 13/5% | ||
| 8/3% | ||
| 67/26% | ||
| 118/46% | ||
| 50/20% |
angelochek12
a
Постоянный пользователь
147
13 февраля 2016
08 март 2016 18:40
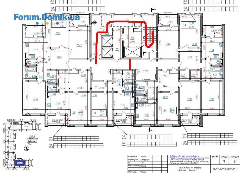
Цитата "22 этаж":единственное новенькое на плане для меня - вот эти кладовые, которые открываются в парадном, и благодаря которым поуменьшали холлы квартир...
Может кладовки будут продавать
di_mon
d
Пользователь
39
18 февраля 2016
08 март 2016 18:41
Ищу соседей 1-й дом 6-я секция 21 этаж


mutineer
m
Старожил
716
22 сентября 2014
08 март 2016 18:42
я думал это ниши для труб
22 этаж
2э
Постоянный пользователь
495
01 февраля 2016
08 март 2016 18:43
Цитата "angelochek12":
Может кладовки будут продавать
сомневаюсь...раньше вот эти штуки входили в стоимость квартиры, какой смысл их выделять??? Вероятно там какие-то технологические кладовки будут...интересно просто что это?
22 этаж
2э
Постоянный пользователь
495
01 февраля 2016
08 март 2016 18:45
Цитата "mutineer":я думал это ниши для труб
я в этом не спец...мне в ОП говорили, что усовершенствовали вроде как разводу труб в санузле - они там раньше были по-дебильному расположены...полдома их переваривали стояки в угол туалета...Вроде сказали, что теперь их не будет...и переваривать не нужно будет...Неужели эти коморки для труб??? Интересно
di_mon
d
Пользователь
39
18 февраля 2016
08 март 2016 18:46
Цитата "22 этаж":
сомневаюсь...раньше вот эти штуки входили в стоимость квартиры, какой смысл их выделять??? Вероятно там какие-то технологические кладовки будут...интересно просто что это?
Может это телепорт

22 этаж
2э
Постоянный пользователь
495
01 февраля 2016
08 март 2016 18:47
что такое телепорт??? Телеантенны что ли? И это в век т2, смарта, вайфай? не, навряд ли
di_mon
d
Пользователь
39
18 февраля 2016
08 март 2016 18:53
Цитата "22 этаж":что такое телепорт??? Телеантенны что ли? И это в век т2, смарта, вайфай? не, навряд ли
Точно это комната для wifi

22 этаж
2э
Постоянный пользователь
495
01 февраля 2016
08 март 2016 18:55
Цитата "di_mon":
Точно это комната для wifi
Вы это серьезно?
22 этаж
2э
Постоянный пользователь
495
01 февраля 2016
08 март 2016 18:58
Еще такой момент из практики - секции где меньшее количество квартир за отопление платят чуть больше при условии, что квартира имеет теплосчетчик, так как оплата МОП делиться на меньшее количество квартир...
Но для таких секций есть и плюс - лифтом пользуется меньшее количество квартир...
Но для таких секций есть и плюс - лифтом пользуется меньшее количество квартир...
di_mon
d
Пользователь
39
18 февраля 2016
08 март 2016 19:01
Нет конечно 

22 этаж
2э
Постоянный пользователь
495
01 февраля 2016
08 март 2016 19:03
Цитата "di_mon":Нет конечно
ну я ж и думаю...вопрос с кладовками остается открытым...они конечно здорово подпортили холлы квартир, раньше в 2а был более функциональный холл...самые классные углы, в которых мог стать диван и напротив шкаф порезали...Теперь там вход в квартиру...

angelochek12
a
Постоянный пользователь
147
13 февраля 2016
08 март 2016 19:04
Цитата "22 этаж":
ну я ж и думаю...вопрос с кладовками остается открытым...они конечно здорово подпортили холлы квартир, раньше в 2а был более функциональный холл...самые классные углы, в которых мог стать диван и напротив шкаф порезали...Теперь там вход в квартиру...
Так если потом сменить вход , передвинуть
22 этаж
2э
Постоянный пользователь
495
01 февраля 2016
08 март 2016 19:06
Цитата "angelochek12":
Так если потом сменить вход , передвинуть
дак некуда - там теперь кладовка...
di_mon
d
Пользователь
39
18 февраля 2016
08 март 2016 19:09
Цитата "22 этаж":
ну я ж и думаю...вопрос с кладовками остается открытым...они конечно здорово подпортили холлы квартир, раньше в 2а был более функциональный холл...самые классные углы, в которых мог стать диван и напротив шкаф порезали...Теперь там вход в квартиру...
Я не знаю,что это за кладовки,но думаю надо их сразу приватизировать, чтобы гаражники не отжали

22 этаж
2э
Постоянный пользователь
495
01 февраля 2016
08 март 2016 19:10
вот так было - на сландо нашла план...Теперь часть холла уменьшили и кусочек отрезали для кладовки в парадное...что за кладовка...
22 этаж
2э
Постоянный пользователь
495
01 февраля 2016
08 март 2016 19:10
так раньше было
angelochek12
a
Постоянный пользователь
147
13 февраля 2016
08 март 2016 19:12
Цитата "22 этаж":так раньше было
А сейча с
di_mon
d
Пользователь
39
18 февраля 2016
08 март 2016 19:15
Цитата "22 этаж":так раньше было
да двушки немного порезали
22 этаж
2э
Постоянный пользователь
495
01 февраля 2016
08 март 2016 19:16
а теперь как тут 2а - кусок холла отжала кладовка...печаль...
Авторський канал ріелтора в Іспанії
Знайомтесь з Бенідормом, нерухомістю та стилем життя. Новобудови регіону, аналітика, інвестиції
Подробнее
- ЖК Sanville Park | Санвиль Групп | Святопетровское, ул. Богдана Хмельницкого, 25а26.1037
- Дом №17, ЖК "Эврика"25.10742
- ЖК Poetica, 1-я коллекция | Поэтика | ENSO | ул. Дегтяревская, 25а23.103 100
- ЖК Урловский-1 | Киевгорстрой, bUdCapital | Киев, ул. Причальная, 1121.103 797
- Будинок на Вавилових | Ковальська | Київ, вул. Вавилових, 9-1120.10116
- ЖК Київські Зорі 2 | Оникс Билд | Вышгород, ул. Кургузова, 1-б20.105
- Житловий квартал Еврика | Київ, вул. Академика Глушкова19.1022 491
- ЖК Chehov Парк Квартал | Чехов | Орлан Инвест | Ирпень, ул. Чехова, 2718.103 429
- ЖК "Захисник", ул. Бориспольская, 1916.107
- ЖК Wood Park 1,2 | Вуд Парк| Киев, ул. Радистов, 18, 2416.1039
- Стоит ли сейчас покупать недвижимость?25.104 715
- Чи варто купити будинок в спокійному регіоні, в Вінниці?17.092
- Завышеные тарифы на отопление. Как обжаловать и куда писать?19.082
- Ипотека от Банков с лучшими условиями | Обсуждение кредитов под залог недвижимости13.08192
- Краудфандинг - типы группового инвестирования01.083
- Планирую аренду квартиры в районе Подола30.073
- Про агентство Атлант-А23.0722
- Допоможіть розібратись з податками08.053
- Дно рынка недвижимости и влияющие факторы31.0315 244
- Где найти качественные полотенца?04.092
- Орхидеи. Как ухаживать за орхидеями29.0818
- Выбор пылесоса. Отзывы о ваших пылесосах26.0866
- Отзывы об ортопедических матрацах. Матрасы для комфортного сна22.0891
- Болит спина07.0873
- Какую выбрать мебель на террасу?04.084
- Стоит ли покупать кофе-машину13.07154
- Декоративные элементы в интерьере. Советы и отзывы о их сочетании12.0716
- Декор окна без штор, варианты и советы12.0746
- ЖК Kandinsky Odessa Residence | Кандинский | Одесса, Французский бульвар, 63/6515.10182
- ЖК Дом у моря | Югінвест | Южный, ул. Иванова10.1017
- ЖК Sakura | Свалява, пров. Достоєвського, 404.105
- ЖК Імперіал Парк Авеню | Імперіал Буд | Чернівці, вул. Рівненська, 718.084
- ЖК Manhattan | Blago developer | Івано-Франківськ, вул. Романа Левицького, вул. Ленкавського04.0815
- ЖК Зелений двір | Спілка забудівників | Івано-Франківськ, вул. Тисменицька04.089
- Яка реальна ціна чорнових робіт в 2025 для будинку08.101
- Хто планує поїхати на будівельний форум у Львові цього вересня?01.093
- Тёплый пол, отзывы и советы28.08205
- Крыша потекла, что делать?25.0818
- Перепланировка | тема просьб и советов по конкретным ситуациям19.082 216
- Материал многоквартирного дома новостройки. Какой лучше?13.0812
- Климатическое оборудование норвежской ТМ Bergen07.082
- Как можно прочистить или улучшить вентиляцию в квартире?06.086
- Пол на кухне – ламинат или плитка?30.0720
- Пошук обладнання для магазину21.101
- Как отвечать на How are You?04.102
- Что подарить мужчине?24.09351
- Мій сайт не з'являється в результатах пошуку20.093
- Домик для кота26.085
- Тренажер в доме. Какой выбрать24.0817
- Мебель под заказ | Объявления об изготовлении мебели18.0899
- Как уберечь холодильник от перепадов напряжения09.0810
- Пол, тёплый пол, паркет, ламинат, плитка. Продажа напольных покрытий26.0728
Авторський канал ріелтора в Іспанії
Знайомтесь з Бенідормом, нерухомістю та стилем життя. Новобудови регіону, аналітика, інвестиції
Подробнее