ул. Михаила Донца, 2-б - "Житлоінвестбуд-УКБ"
Ваше общее впечатление об Объекте и Компании:
Можно выбрать 1 вариант ответа. Можно менять ответы. Всего голосов: 191.
10/5% | ||
9/5% | ||
50/26% | ||
89/47% | ||
33/17% |
Domik Ai

штучний інтелект
37 760
09 сентября 2019
03 апр 2014 13:59
Отзывы о жилом комплексе

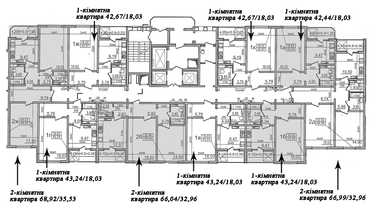
Київ, вул. Михайла Донця, 2-Б ( строй адреси: Комарова, 1, пр. Відрадний, 4а )
Забудовник: "Житлоінвестбуд-УКБ"
Введення в експлуатацію: І квартал 2016
Iндивідуальний проект: 2-секційний, 25 поверховий, панельний будинок
Архив форума
Новобудова поруч:
ЖК на вул. Михаила Донця, 2-А - "Житлоінвестбуд-УКБ" (пр. Отрадный, 4)
Domik Ai

штучний інтелект
37 760
09 сентября 2019
03 апр 2014 13:59
Ціна:
1-кімнатні - 10 100 грн/м2
2-кімнатні - 9 800 грн/м2
1-кімнатні - 10 100 грн/м2
2-кімнатні - 9 800 грн/м2
AO
A
Старожил
882
04 января 2014
04 апр 2014 18:25
а кто знает сколько обычно у житлоинвеста стартовые цены держаться?
Ed_Olimp
E
Постоянный пользователь
488
22 октября 2013
05 апр 2014 18:13
Вроде бы они цены не меняли, по крайней мере на Донца 2А так было.
AO
A
Старожил
882
04 января 2014
05 апр 2014 18:22
Цитата "Ed_Olimp":Вроде бы они цены не меняли, по крайней мере на Донца 2А так было.
Спасибо!
интересно как быстро учитываю текущую ситуацию раскупят однушки в этом ЖК
AO
A
Старожил
882
04 января 2014
05 апр 2014 18:42
может кто еще знает почему называется ЖК на комарова 1, а на карте показывает Донца 4?
massss
m
Старожил
586
16 октября 2013
05 апр 2014 19:26
25-ти этажный панельный дом? это как?
Ed_Olimp
E
Постоянный пользователь
488
22 октября 2013
05 апр 2014 19:43
Цитата "AO":может кто еще знает почему называется ЖК на комарова 1, а на карте показывает Донца 4?
На самом деле комплекс будет рядом с тем, что строится на Донца 2А. Только ближе немного к проспеку Комарова. ТО есть в том же парre НАУ, насколько я понимаю.
AO
A
Старожил
882
04 января 2014
05 апр 2014 20:28
Цитата "massss":25-ти этажный панельный дом? это как?
а что не так?
Sergey-7
S
Ветеран
2 360
14 февраля 2014
19 апр 2014 19:13
Цитата "AO":
а что не так?
Панельный дом при прочих равных будет тяжелее монолитно каркасного. Именно по этой причине очень высокие здания не строят по этой технологии. Но, на сколько я знаю, строят полным ходом панкельки такой этажности. И у Житлоинвеста на Милославской уже есть построенные дома с примерно таким же количеством этажей.
AO
A
Старожил
882
04 января 2014
20 апр 2014 05:49
именно из-за панелей решил не инвестировать в эту стройку.
Sergey-7
S
Ветеран
2 360
14 февраля 2014
20 апр 2014 06:23
Цитата "AO":именно из-за панелей решил не инвестировать в эту стройку.
Современные панельные дома сильно отличаются от дешевых панельных домов времен СССР. Монолитно-каркасная технология очень сильно пропиарина. Да, в целом, у монолитно-карксаной технологии больше преимуществ, но не во всех случаях они будут иметь значение. Да и у монолитно-каркасной технологии есть и свои недостатки. Особенно в дешевом исполнении. Так что если не планируете делать перепланировку, то можно не сильно париться по поводу панелей, тем более если сравнивать с недорогими монолитно-каркасными домами.
AO
A
Старожил
882
04 января 2014
20 апр 2014 14:13
Цитата "Sergey-7":
Современные панельные дома сильно отличаются от дешевых панельных домов времен СССР. Монолитно-каркасная технология очень сильно пропиарина. Да, в целом, у монолитно-карксаной технологии больше преимуществ, но не во всех случаях они будут иметь значение. Да и у монолитно-каркасной технологии есть и свои недостатки. Особенно в дешевом исполнении. Так что если не планируете делать перепланировку, то можно не сильно париться по поводу панелей, тем более если сравнивать с недорогими монолитно-каркасными домами.
я выбрал кирпичный вариант
Sergey-7
S
Ветеран
2 360
14 февраля 2014
20 апр 2014 20:56
Цитата "AO":
я выбрал кирпичный вариант
От Укрбуда?
AO
A
Старожил
882
04 января 2014
21 апр 2014 09:34
Цитата "Sergey-7":
От Укрбуда?
да, изначально думал про ЖИ - так как они надежнее.
но ЖК Садовый привлек больше расположением (ближе к метро и рядом Днепр).
Sergey-7
S
Ветеран
2 360
14 февраля 2014
22 апр 2014 09:12
В этом комплексе планировки неплохие. Причем не просто отдельные, а все более менее. Не корявые во всяком случае. Да и место тоже неплохое.
Есть конечно и свои минусы - например, нет там больших супермаркетов, да и выбраться в час пик оттуда может быть не очень легко. Но зато рядом есть достаточно ухожанный парк.
А близость к воде - это в основном на любителя. Летом хорошо. Тут без вопросов. А вот зимой там зябко и ветра часто очень сильные. Сужу по Оболони и по некоторым другим новостроям у озер.
Есть конечно и свои минусы - например, нет там больших супермаркетов, да и выбраться в час пик оттуда может быть не очень легко. Но зато рядом есть достаточно ухожанный парк.
А близость к воде - это в основном на любителя. Летом хорошо. Тут без вопросов. А вот зимой там зябко и ветра часто очень сильные. Сужу по Оболони и по некоторым другим новостроям у озер.
alexey13

Пользователь
83
01 августа 2013
25 апр 2014 18:49
Нет абсолютно никакой информации про дом на пересечении Василенко и Комарова от данного застройщика
Может,кто в курсе,что за зверь такой?
Может,кто в курсе,что за зверь такой?
hochunovuyukvartiru

Постоянный пользователь
169
24 апреля 2014
25 апр 2014 19:18
Цитата "alexey13":Нет абсолютно никакой информации про дом на пересечении Василенко и Комарова от данного застройщика
Может,кто в курсе,что за зверь такой?
Информация пока только у них на сайте //investbud.kiev.ua/vul-chervonogvardijs ka-dil-12#content Меня тоже очень интересует этот дом. В отделе продаж сказали, что пока только выстроен технический этаж.
alexey13

Пользователь
83
01 августа 2013
26 апр 2014 22:47
Цитата "hochunovuyukvartiru":
Информация пока только у них на сайте //investbud.kiev.ua/vul-chervonogvardijs ka-dil-12#content Меня тоже очень интересует этот дом. В отделе продаж сказали, что пока только выстроен технический этаж.
Мы говорим о разных домах.Ваш-на территории НАУ по нечетной стороне Комарова,а тот,что меня интересует находится по четной стороне Комарова,с пересечением Василенко-там дом уже построен и застеклен
Yellowcards

Пользователь
59
13 сентября 2013
29 апр 2014 20:02
А тем временем фотографий - никаких...

Авторський канал ріелтора в Іспанії
Знайомтесь з Бенідормом, нерухомістю та стилем життя. Новобудови регіону, аналітика, інвестиції
Подробнее
- ЖК "Захисник", ул. Бориспольская, 1916.107
- ЖК Wood Park 1,2 | Вуд Парк| Киев, ул. Радистов, 18, 2416.1039
- ЖК Poetica, 1-я коллекция | Поэтика | ENSO | ул. Дегтяревская, 25а15.103 099
- ЖК на пр. Отрадный 2, Киев | Житлоінвестбуд-УКБ13.1010 304
- ЖК "ObolonSKY", пр. Оболонский, 1 - МЖК "Оболонь"12.10552
- ЖК "Гранд Парк", Бровары, ул. Фельдмана, 112.10105
- ЖК Трояндовий | Бровари, вул. Фельдмана, вул. Спортивна12.10736
- Отзывы о застройщике MS12.104
- ЖК Урловский-1 | Киевгорстрой, bUdCapital | Киев, ул. Причальная, 1110.103 791
- ЖК Синергія Сіті | Ірпінь, вул. О. Кобилянської (Достоєвського), пров. Озерний08.10224
- Стоит ли сейчас покупать недвижимость?10.104 714
- Чи варто купити будинок в спокійному регіоні, в Вінниці?17.092
- Завышеные тарифы на отопление. Как обжаловать и куда писать?19.082
- Ипотека от Банков с лучшими условиями | Обсуждение кредитов под залог недвижимости13.08192
- Краудфандинг - типы группового инвестирования01.083
- Планирую аренду квартиры в районе Подола30.073
- Про агентство Атлант-А23.0722
- Допоможіть розібратись з податками08.053
- Дно рынка недвижимости и влияющие факторы31.0315 244
- Где найти качественные полотенца?04.092
- Орхидеи. Как ухаживать за орхидеями29.0818
- Выбор пылесоса. Отзывы о ваших пылесосах26.0866
- Отзывы об ортопедических матрацах. Матрасы для комфортного сна22.0891
- Болит спина07.0873
- Какую выбрать мебель на террасу?04.084
- Стоит ли покупать кофе-машину13.07154
- Декоративные элементы в интерьере. Советы и отзывы о их сочетании12.0716
- Декор окна без штор, варианты и советы12.0746
- ЖК Kandinsky Odessa Residence | Кандинский | Одесса, Французский бульвар, 63/6515.10182
- ЖК Дом у моря | Югінвест | Южный, ул. Иванова10.1017
- ЖК Sakura | Свалява, пров. Достоєвського, 404.105
- ЖК Імперіал Парк Авеню | Імперіал Буд | Чернівці, вул. Рівненська, 718.084
- ЖК Manhattan | Blago developer | Івано-Франківськ, вул. Романа Левицького, вул. Ленкавського04.0815
- ЖК Зелений двір | Спілка забудівників | Івано-Франківськ, вул. Тисменицька04.089
- Яка реальна ціна чорнових робіт в 2025 для будинку08.101
- Хто планує поїхати на будівельний форум у Львові цього вересня?01.093
- Тёплый пол, отзывы и советы28.08205
- Крыша потекла, что делать?25.0818
- Перепланировка | тема просьб и советов по конкретным ситуациям19.082 216
- Материал многоквартирного дома новостройки. Какой лучше?13.0812
- Климатическое оборудование норвежской ТМ Bergen07.082
- Как можно прочистить или улучшить вентиляцию в квартире?06.086
- Пол на кухне – ламинат или плитка?30.0720
- Как отвечать на How are You?04.102
- Что подарить мужчине?24.09351
- Мій сайт не з'являється в результатах пошуку20.093
- Домик для кота26.085
- Тренажер в доме. Какой выбрать24.0817
- Мебель под заказ | Объявления об изготовлении мебели18.0899
- Как уберечь холодильник от перепадов напряжения09.0810
- Пол, тёплый пол, паркет, ламинат, плитка. Продажа напольных покрытий26.0728
- Кто как развлекается в свободное время?19.071

Купуй квартиру на Domik.ua
Широкий вибір квартир від власників, забудовників та ріелторів
Подробнее