ЖК "Кристер Град", ул. Маршала Гречко, пр. Правды - "ДБК-4"
Ваше общее впечатление об Объекте и Компании:
Можно выбрать 1 вариант ответа. Можно менять ответы. Всего голосов: 256.
13/5% | ||
8/3% | ||
67/26% | ||
118/46% | ||
50/20% |
yagodka1
y
Пользователь
35
20 января 2016
25 янв 2016 21:09
в общем всех уже замучала я...
DiHLoS

Постоянный пользователь
346
26 августа 2015
25 янв 2016 21:27
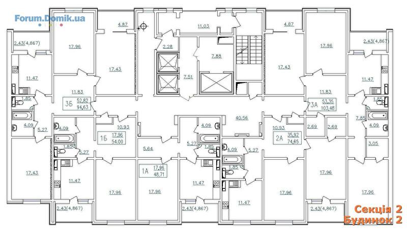
Цитата "yagodka1":вот огомное спасибо...А такого же нет плана и по второму дому? Очень Вам буду благодарна
Такого же нет... Вот планы с сайта ДБК4:
1. Общий план дома №2

2. Планы типовых этажей






yagodka1
y
Пользователь
35
20 января 2016
25 янв 2016 21:31
а по поводу двушки 71,43 в 4 секции можете подсказать куда окна выходят - на пустыь или во двор?
DiHLoS

Постоянный пользователь
346
26 августа 2015
25 янв 2016 21:37
Цитата "yagodka1":DiHLoS
подскажите, то еть 71,43 в 4 секции окна выходят не на пустырь, а во двор на восток? Правильно мы разобрались?
Как раз наоборот. Квартира 2А S=71,43м2 в 3-й и 4-й секции дома №1 выходят как Вы говорите "на пустырь", т.е скорее на запад
yagodka1
y
Пользователь
35
20 января 2016
25 янв 2016 21:39
ясно...снова ушла изучать план
Lenochka12
L
Пользователь
81
27 августа 2015
26 янв 2016 12:52
Цитата "DiHLoS":
Имелась ввиду 2Б 76.53м2 двухсторонняя во 2й и 5й секции
[attachment=1]76.53_5c_2B_Krister_site.j pg[/attachment]
2А - окна выходят на одну сторону
[attachment=0]74.65_1c_2A_Krister_site.j pg[/attachment]
Смотрите планы на странице прайсов https://dbk4.com.ua/ua/94#Krister
А вот в квартире 74,65 получается окна комнаты и кухни выходят на балкон? Темновато наверное будет?
mmx

Постоянный пользователь
234
19 ноября 2014
26 янв 2016 13:02
есть такая, весьма немалая, вероятность.Цитата "Lenochka12":А вот в квартире 74,65 получается окна комнаты и кухни выходят на балкон? Темновато наверное будет?
DiHLoS

Постоянный пользователь
346
26 августа 2015
26 янв 2016 13:04
Цитата "Lenochka12":
А вот в квартире 74,65 получается окна комнаты и кухни выходят на балкон? Темновато наверное будет?
Да нет, только окна одной комнаты выходят на балкон...
Ой, это я про 2А 71,43м2 показал...
Lenochka12
L
Пользователь
81
27 августа 2015
26 янв 2016 13:11
Цитата "DiHLoS":
Да нет, только окна одной комнаты выходят на балкон...
Ой, это я про 2А 71,43м2 показал...
А есть такое же только на 76,.. двухстороннюю
DiHLoS

Постоянный пользователь
346
26 августа 2015
26 янв 2016 13:14
Цитата "DiHLoS":
Да нет, только окна одной комнаты выходят на балкон...
Ой, это я про 2А 71,43м2 показал...
Вот 2А 74,65м2 (в 1й и 6й секции)
iren0
i
Пользователь
46
06 ноября 2015
26 янв 2016 13:33
Цитата "mmx":есть такая, весьма немалая, вероятность.
окна, в 1 секции 2А выходят на юг (все), с учетом не больших по размерам окнам у ДБК, считаю это +
Lenochka12
L
Пользователь
81
27 августа 2015
26 янв 2016 13:34
Цитата:
Хотіли вікна у двір, а таких двокімнатних лише дві: двостороння 2Б у 2 і 5 секції і 2А (74,65 кв.м) у 6 сек. Вибрали двосторонню, сподобалась ще й велика лоджія, мінус в ній - трохи темна кухня, а решта нас влаштовує:)
Так кухня буде темноватою, але ми теж на цьому варіанті спинились
Lenochka12
L
Пользователь
81
27 августа 2015
26 янв 2016 13:39
Хто вже оформив договір, скажіть Ви його юристам показували?
DiHLoS

Постоянный пользователь
346
26 августа 2015
26 янв 2016 13:39
Цитата "Lenochka12":
А есть такое же только на 76,.. двухстороннюю
Ну как-то так:

Lenochka12
L
Пользователь
81
27 августа 2015
26 янв 2016 13:42
Цитата "DiHLoS":
Ну как-то так:
[attachment=0]2Б.png[/attachment]
большое спасибо))) Этажность не велика в пятой секции)
Talisman2005
T
Пользователь
70
16 ноября 2015
26 янв 2016 13:54
Цитата "Lenochka12":Хто вже оформив договір, скажіть Ви його юристам показували?
показывали. Правок практически не было, кроме грамматических ошибок
DiHLoS

Постоянный пользователь
346
26 августа 2015
26 янв 2016 13:54
Цитата "Lenochka12":
большое спасибо))) Этажность не велика в пятой секции)
Ну это, чтоб Вам виднее было

На прошлую пятницу 5-6 секции были такими:

DiHLoS

Постоянный пользователь
346
26 августа 2015
26 янв 2016 14:00
А вот общий вид нашего ЖК "Кристер Град"


Lenochka12
L
Пользователь
81
27 августа 2015
26 янв 2016 14:01
Цитата "DiHLoS":
Ну это, чтоб Вам виднее было
На прошлую пятницу 5-6 секции были такими:
[attachment=0]2016_01_22 (5-6).jpg[/attachment]
А спасибо, остановилась на этом варианте, так, что теперь только ждать пока достроят)
mmx

Постоянный пользователь
234
19 ноября 2014
26 янв 2016 14:03
Я о 2Б (76,53), у которой одна угловая лоджия для кухни и комнаты. Находится во внутренних углах дома.Цитата "iren0":
окна, в 1 секции 2А выходят на юг (все), с учетом не больших по размерам окнам у ДБК, считаю это +

Купуй квартиру на Domik.ua
Широкий вибір квартир від власників, забудовників та ріелторів
Подробнее
- ЖК Poetica, 1-я коллекция | Поэтика | ENSO | ул. Дегтяревская, 25а15.103 099
- ЖК на пр. Отрадный 2, Киев | Житлоінвестбуд-УКБ13.1010 304
- ЖК "ObolonSKY", пр. Оболонский, 1 - МЖК "Оболонь"12.10552
- ЖК "Гранд Парк", Бровары, ул. Фельдмана, 112.10105
- ЖК Трояндовий | Бровари, вул. Фельдмана, вул. Спортивна12.10736
- Отзывы о застройщике MS12.104
- ЖК Урловский-1 | Киевгорстрой, bUdCapital | Киев, ул. Причальная, 1110.103 791
- ЖК Синергія Сіті | Ірпінь, вул. О. Кобилянської (Достоєвського), пров. Озерний08.10224
- ЖК Рідний | Гатне, вул. Покровська, 207.1062
- ЖК Sanville Park | Санвиль Групп | Святопетровское, ул. Богдана Хмельницкого, 25а07.1036
- Стоит ли сейчас покупать недвижимость?10.104 714
- Чи варто купити будинок в спокійному регіоні, в Вінниці?17.092
- Завышеные тарифы на отопление. Как обжаловать и куда писать?19.082
- Ипотека от Банков с лучшими условиями | Обсуждение кредитов под залог недвижимости13.08192
- Краудфандинг - типы группового инвестирования01.083
- Планирую аренду квартиры в районе Подола30.073
- Про агентство Атлант-А23.0722
- Допоможіть розібратись з податками08.053
- Дно рынка недвижимости и влияющие факторы31.0315 244
- Где найти качественные полотенца?04.092
- Орхидеи. Как ухаживать за орхидеями29.0818
- Выбор пылесоса. Отзывы о ваших пылесосах26.0866
- Отзывы об ортопедических матрацах. Матрасы для комфортного сна22.0891
- Болит спина07.0873
- Какую выбрать мебель на террасу?04.084
- Стоит ли покупать кофе-машину13.07154
- Декоративные элементы в интерьере. Советы и отзывы о их сочетании12.0716
- Декор окна без штор, варианты и советы12.0746
- ЖК Kandinsky Odessa Residence | Кандинский | Одесса, Французский бульвар, 63/6515.10182
- ЖК Дом у моря | Югінвест | Южный, ул. Иванова10.1017
- ЖК Sakura | Свалява, пров. Достоєвського, 404.105
- ЖК Імперіал Парк Авеню | Імперіал Буд | Чернівці, вул. Рівненська, 718.084
- ЖК Manhattan | Blago developer | Івано-Франківськ, вул. Романа Левицького, вул. Ленкавського04.0815
- ЖК Зелений двір | Спілка забудівників | Івано-Франківськ, вул. Тисменицька04.089
- Яка реальна ціна чорнових робіт в 2025 для будинку08.101
- Хто планує поїхати на будівельний форум у Львові цього вересня?01.093
- Тёплый пол, отзывы и советы28.08205
- Крыша потекла, что делать?25.0818
- Перепланировка | тема просьб и советов по конкретным ситуациям19.082 216
- Материал многоквартирного дома новостройки. Какой лучше?13.0812
- Климатическое оборудование норвежской ТМ Bergen07.082
- Как можно прочистить или улучшить вентиляцию в квартире?06.086
- Пол на кухне – ламинат или плитка?30.0720
- Как отвечать на How are You?04.102
- Что подарить мужчине?24.09351
- Мій сайт не з'являється в результатах пошуку20.093
- Домик для кота26.085
- Тренажер в доме. Какой выбрать24.0817
- Мебель под заказ | Объявления об изготовлении мебели18.0899
- Как уберечь холодильник от перепадов напряжения09.0810
- Пол, тёплый пол, паркет, ламинат, плитка. Продажа напольных покрытий26.0728
- Кто как развлекается в свободное время?19.071

Купуй квартиру на Domik.ua
Широкий вибір квартир від власників, забудовників та ріелторів
Подробнее